IG11 7QP - 2 bedroom terraced house for sale in Suffolk Road, Barking,…

View on Property Piper

2 bedroom terraced house for sale in Suffolk Road, Barking, IG11

Summary - 35 SUFFOLK ROAD BARKING IG11 7QP

2 bed 1 bath Terraced

Edwardian two-bed with long private garden and direct links to the City.
Two double bedrooms with period features
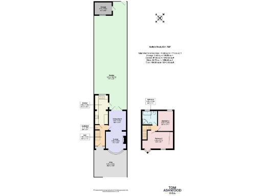
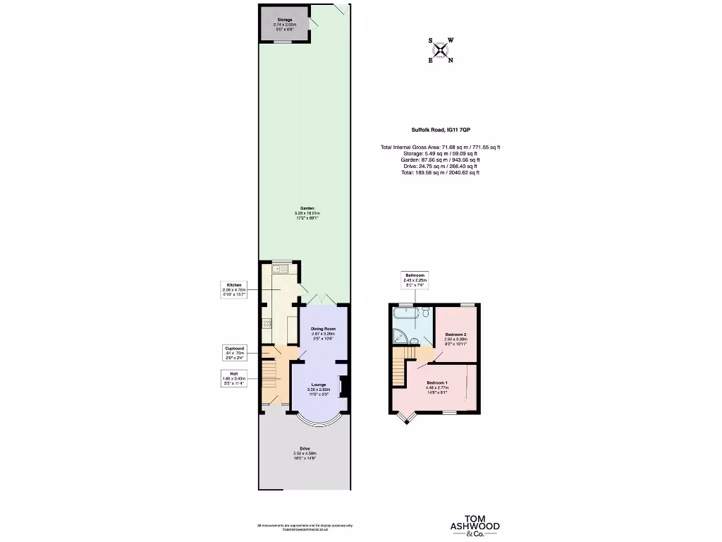
This bay-fronted Edwardian mid-terrace offers 772 sq ft of traditional living in Barking, a short walk from Barking station and local amenities. The home has two double bedrooms, a bay-fronted lounge, separate dining room and a fitted kitchen with direct access to a private rear garden reportedly extending over 59 feet — a rare outdoor space for the area.

The property suits first-time buyers looking for transport links (direct services to the City) and families who value nearby good schools, parks and everyday amenities. The house retains period character such as a bay window, fireplace and high ceilings, giving scope to create a stylish home while keeping original features.

Buyers should note material points: official listing data records one bathroom but promotional text refers to a second bathroom — this should be checked. The terrace is solid brick with assumed no wall insulation, and double glazing install date is unknown. The area has above-average crime levels and is classified as deprived, so consider security and running-costs when viewing.

Overall, this freehold Edwardian terrace presents an affordable entry to the borough with strong transport connectivity, a substantial private garden and clear potential for improvement. It will particularly appeal to buyers wanting period character and outdoor space who are prepared to update insulation, confirm sanitary arrangements, and consider safety measures given local crime statistics.

Property Details

Image Descriptions

Floorplan Description

Rooms

Textual Property Features

Target Audience

AI Tags

Detected Visual Features

EPC Details

Nearby Schools

Nearest Bars And Restaurants

,,,,}

Nearest General Shops

,,}

Nearest Grocery shops

,,}

Nearest Supermarkets

,,}

Nearest Religious buildings

,,}

Nearest Medical buildings

,,,}

Nearest Airports

,}

Nearest Leisure Facilities

,,,,}

Nearest Tourist attractions

,,}

Nearest Train stations

,,,,}

Nearest Bus stations and stops

,,,,}

Nearest Hotels

,,}

Tags

Local Market Stats

AirBnB Data

Similar Properties

Meta

High Res Images

Compatible Images

Low res Images

Thumbnails

Raw Images

High Res Floorplan Images

Compatible Floorplan Images

Low res Floorplan Images

FloorplanImages Thumbnail

Raw Floorplan Images