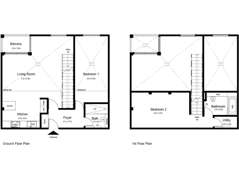
Spacious two-bedroom home with balcony and allocated parking.
Two double bedrooms and two bathrooms in a penthouse layout
Large open-plan living area with double-height ceiling and balcony
Allocated covered off-street parking space included
Long lease remaining (978 years)
Estimated rental potential ~£1,000 pcm
Average service charge £2,764 and ground rent £150 pa
Located near M62 with fast broadband and excellent mobile signal
Local area classified as more deprived; crime levels average
Top-floor living with double-height ceilings and large windows gives this two-bedroom penthouse a bright, airy feel. At about 1,009 sq ft the apartment offers generous living space, an open-plan kitchen/living area, and a private balcony — ideal for first-time buyers seeking modern, low-maintenance accommodation or professionals wanting commuter convenience.
Practical benefits include an allocated covered parking space, secure entry and a very long lease (978 years). The building sits close to Huddersfield town centre with straightforward access to the M62, fast broadband and excellent mobile signal — useful for commuting or working from home. The current rental estimate of around £1,000 pcm highlights clear investor appeal.
Buyers should note the property is leasehold with an average service charge of £2,764 and a small ground rent of £150 per year. The surrounding area scores as more deprived than average and local crime levels are average; prospective purchasers should view in person to assess the neighbourhood and finish. There is no chain and the flat is offered ready to occupy, though some may wish to adapt decor to personal taste.
Overall this is a spacious, modern penthouse that suits first-time buyers or buy-to-let investors who want a low-maintenance home with strong transport links and rental potential. An internal inspection is recommended to appreciate the scale and loft-style features firsthand.
2 bedroom penthouse for sale in Equilibrium, Lindley, Huddersfield, HD3 — £170,000 • 2 bed • 1 bath • 991 ft²
2 bedroom flat for sale in Equilibrium, Lindley, Huddersfield, HD3 — £120,000 • 2 bed • 2 bath • 619 ft²
2 bedroom apartment for sale in Drysdale Fold, HUDDERSFIELD, HD2 — £95,000 • 2 bed • 1 bath • 543 ft²
2 bedroom apartment for sale in Apartment 20, Stile 24, 75 Newsome Road, Huddersfield, HD4 6NH, HD4 — £125,000 • 2 bed • 1 bath • 696 ft²
2 bedroom apartment for sale in Equilibrium, Lindley, Huddersfield, HD3 — £110,000 • 2 bed • 1 bath • 591 ft²
2 bedroom apartment for sale in Plover Road, Lindley, Huddersfield, HD3 — £135,000 • 2 bed • 1 bath • 668 ft²










































