Established holiday let with income and scenic Lakeland views.
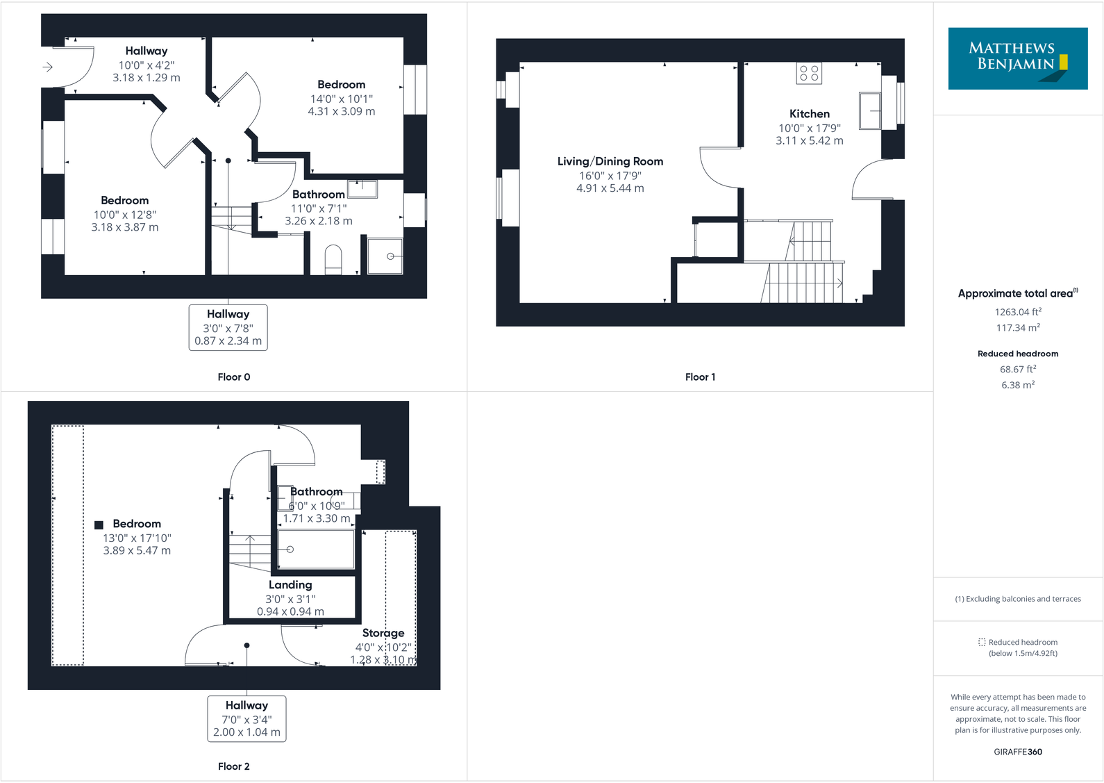
Three double bedrooms including vaulted master with ensuite
Generates over £30,000 pa; sold with forward bookings and most contents
Parking for two cars plus one additional space at nearby Rocky Brow
Traditional features: exposed beams, oak floors, granite worktops
Low-maintenance rear terrace; small plot, limited garden space
Restriction prevents permanent residency — not suitable for full-time home
Shared private drainage; purchasers should review arrangements
Built early 2000s conversion; generally well presented throughout
Rose Barn is a well-presented three-bedroom barn conversion set within a small Lakeland development on the edge of Hawkshead. Converted in the early 2000s using traditional materials, the house combines exposed beams, oak floorboards and granite finishes with modern fittings. The vaulted master suite on the top floor captures elevated country views towards Coniston Old Man and Wetherlam.
Currently run as a successful holiday let, the property generates an annual income in excess of £30,000 and is sold with forward bookings and most contents included. Practical features include off-street parking for two cars (plus an additional space nearby), mains gas central heating with Hive controls, alarm system and convenient village access for walkers and visitors.
Important restrictions apply: the property cannot be used as a permanent residence, which is material for owner-occupiers but suits investors or holiday-letting buyers. Services include mains water, gas and shared private drainage; prospective purchasers should note the shared drainage arrangement.
Low-maintenance outside space comprises a rear terrace and gravelled forecourt. The freehold title, favourable location inside the Lake District National Park and documented trading history give clear appeal to buyers seeking an established holiday business or an income-producing rural bolt-hole.
Barn for sale in Marigold Barn, Satterthwaite Ulverston LA12 8LN, LA12 — £475,000 • 2 bed • 1 bath • 837 ft²
3 bedroom detached house for sale in Tock How View, Outgate, Ambleside LA22 0NH, LA22 — £875,000 • 3 bed • 3 bath • 1424 ft²
3 bedroom semi-detached house for sale in Kirkley Bank, Pull Woods, Ambleside, Cumbria, LA22 0HZ, LA22 — £695,000 • 3 bed • 2 bath • 1123 ft²
4 bedroom barn conversion for sale in No. 15 Helsington Laithes, Helsington, Kendal, LA9 5RN, LA9 — £675,000 • 4 bed • 3 bath • 2063 ft²
4 bedroom semi-detached house for sale in Rosehill, Lake Road, Ambleside, LA22 0DF, LA22 — £795,000 • 4 bed • 2 bath • 1748 ft²
3 bedroom end of terrace house for sale in Haverthwaite, Ulverston, LA12 — £325,000 • 3 bed • 2 bath • 947 ft²






























































































