Versatile extended layout with generous garden and off-street parking.
Three-bedroom detached home with converted integral garage
Set on a quiet cul-de-sac in desirable Borrowash, this three-bedroom detached house offers roomy family living with clear potential to personalise. The extended layout includes a converted integral garage providing flexible additional space for a home office, playroom or guest room, while a generous rear garden and wide driveway deliver useful outdoor and parking space.
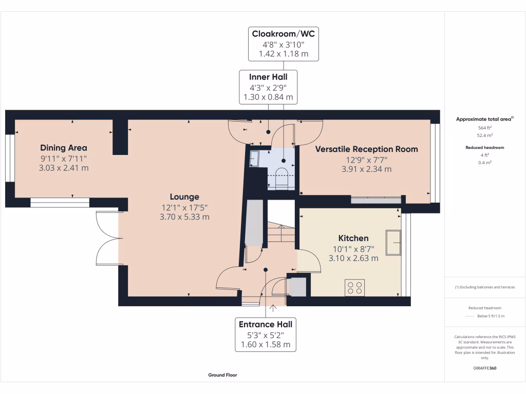
The ground floor hosts a bright lounge with twin French doors opening to the patio, an extended dining area and a well-proportioned kitchen suitable for everyday family life. Upstairs are two double bedrooms, a good single with built-in storage, a three-piece bathroom and an extra separate WC — practical for busy households.
The property is of standard 1970s construction with double glazing and mains gas central heating. It has an EPC rating D and cavity walls that appear to lack insulation, so buyers should budget for energy-efficiency upgrades. There is also a medium flood risk in the area to consider when reviewing insurance and mitigation options.
Location is a strong selling point: easy access to local shops, Elvaston Castle Country Park, good road links via the A52 and a range of nearby amenities. Local primary schools are close by (one rated Good and two currently requiring improvement), making this a sensible choice for families seeking space and convenience with scope to modernise.
Internal viewings are recommended to appreciate the flexible layout and garden. The freehold tenure and affordable council tax band add practical appeal for long-term family ownership.
4 bedroom detached house for sale in Belmont Drive, Borrowash, DE72 — £315,000 • 4 bed • 2 bath • 973 ft²
3 bedroom detached house for sale in Flint Street, Derby, DE24 — £175,000 • 3 bed • 1 bath • 891 ft²
3 bedroom detached house for sale in Derby Road, Borrowash, DE72 — £275,000 • 3 bed • 1 bath • 904 ft²
3 bedroom detached house for sale in Maylands, Borrowash, Derby, DE72 — £289,950 • 3 bed • 1 bath • 957 ft²
3 bedroom semi-detached house for sale in Field Close, Borrowash, Derby, DE72 — £270,000 • 3 bed • 1 bath • 1041 ft²
3 bedroom detached house for sale in Nottingham Road, Spondon, DE21 — £230,000 • 3 bed • 2 bath • 1055 ft²










































































