Refurbished top-floor flat with quay views, garage and long lease—ideal coastal downsizers..
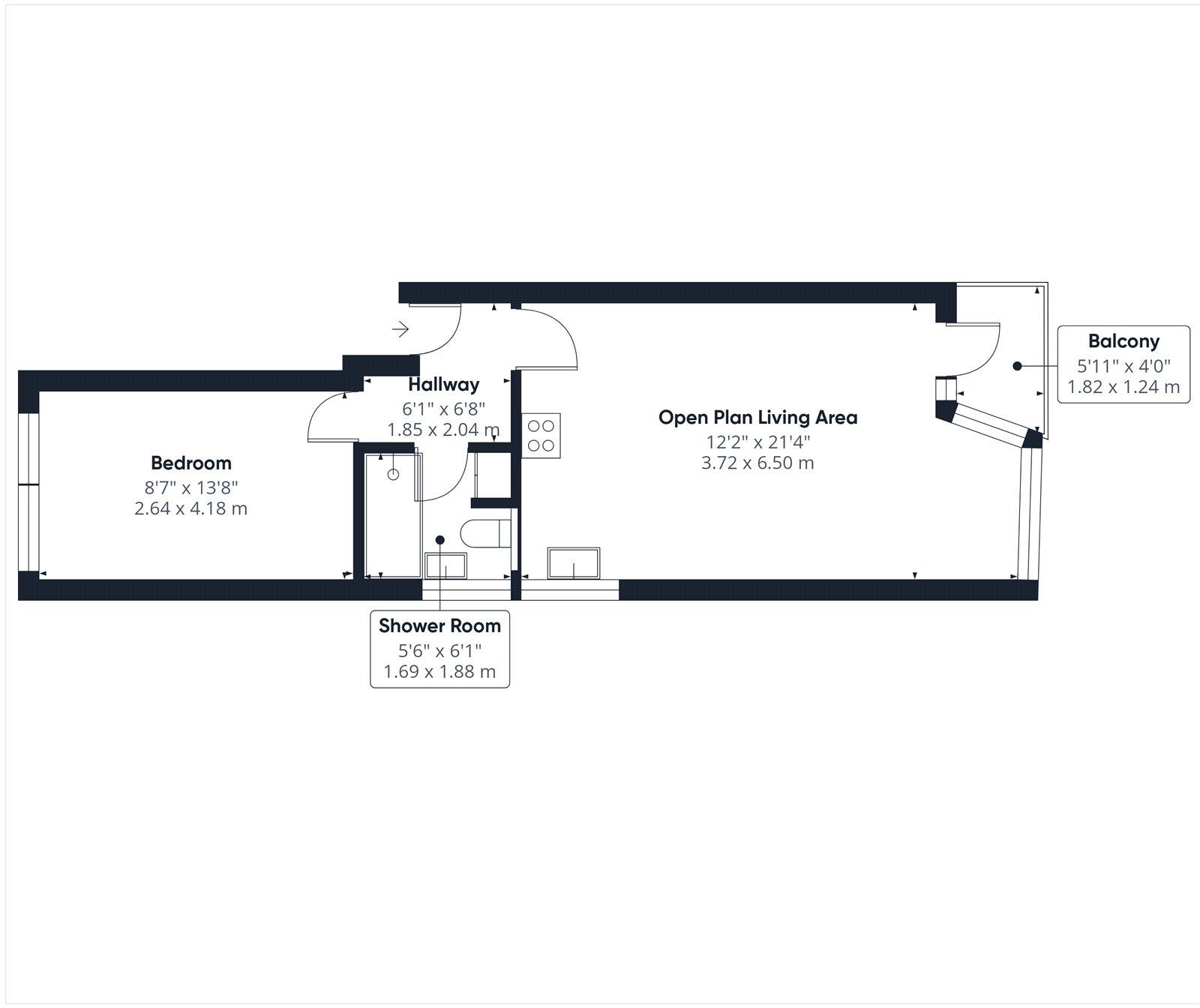
- Top-floor apartment with balcony and views towards Mudeford Quay
- Recently refurbished; move-in ready interior
- Long lease (c.981 years) and share of freehold tenure
- Garage plus residents' parking; good storage for watersports gear
- Small overall size (c.410 sq ft), best for one or two people
- Electric storage heaters only; consider heating costs and comfort
- Service charge approximately £1,262 per year
- No lift (access via communal stairs); building of 1967–75, potential damp risk
This recently refurbished top-floor apartment occupies a sought-after spot just a short walk from Mudeford Quay, Stanpit Nature Reserve and Avon Beach. The open-plan living area leads to a balcony with lovely views across the quay, bringing coastal light into the flat. A garage and residents' parking add practical convenience and secure storage for bikes, kayaks or a car.
Arranged as a generous bedroom, separate shower-room and bright open-plan living/kitchen, the layout suits a single occupant or couple looking to downsize without compromising on quality. The finish is modern and move-in ready; the long lease (c.981 years) and share of freehold provide tenure security.
Practical considerations are straightforward: heating is by electric storage heaters and the small overall size (c.410 sq ft) suits those seeking low-maintenance living rather than family accommodation. A modest annual service charge of about £1,262 covers communal upkeep and gardens.
Buyers should note this is a top-floor, stair-access apartment with no lift and the building dates from the late 1960s/early 1970s; the exterior has a mid-century style and there is a potential for damp in older buildings of this era so buyers may wish to satisfy themselves on this point. Council Tax Band B and the low local crime rate add to the appeal for downsizers or retirees seeking a calm, convenient coastal base.
1 bedroom apartment for sale in Mudeford Lane, Mudeford, Christchurch, Dorset, BH23 — £225,000 • 1 bed • 1 bath • 430 ft²
2 bedroom apartment for sale in Rushford Warren, Christchurch, Dorset, BH23 — £325,000 • 2 bed • 1 bath • 717 ft²
2 bedroom apartment for sale in Rodney Drive, Mudeford, Christchurch, BH23 — £279,950 • 2 bed • 1 bath • 725 ft²
2 bedroom apartment for sale in Rodney Drive, Christchurch, Dorset, BH23 — £245,000 • 2 bed • 1 bath • 682 ft²
2 bedroom penthouse for sale in Rushford Warren, Christchurch, Dorset, BH23 — £375,000 • 2 bed • 1 bath • 770 ft²
2 bedroom apartment for sale in Rook Hill Road, Friars Cliff, Christchurch, Dorset, BH23 — £515,000 • 2 bed • 1 bath • 920 ft²






































































