Large income-producing property with refurbishment potential in town fringe.
Two ground-floor shops currently tenanted, providing immediate rental income
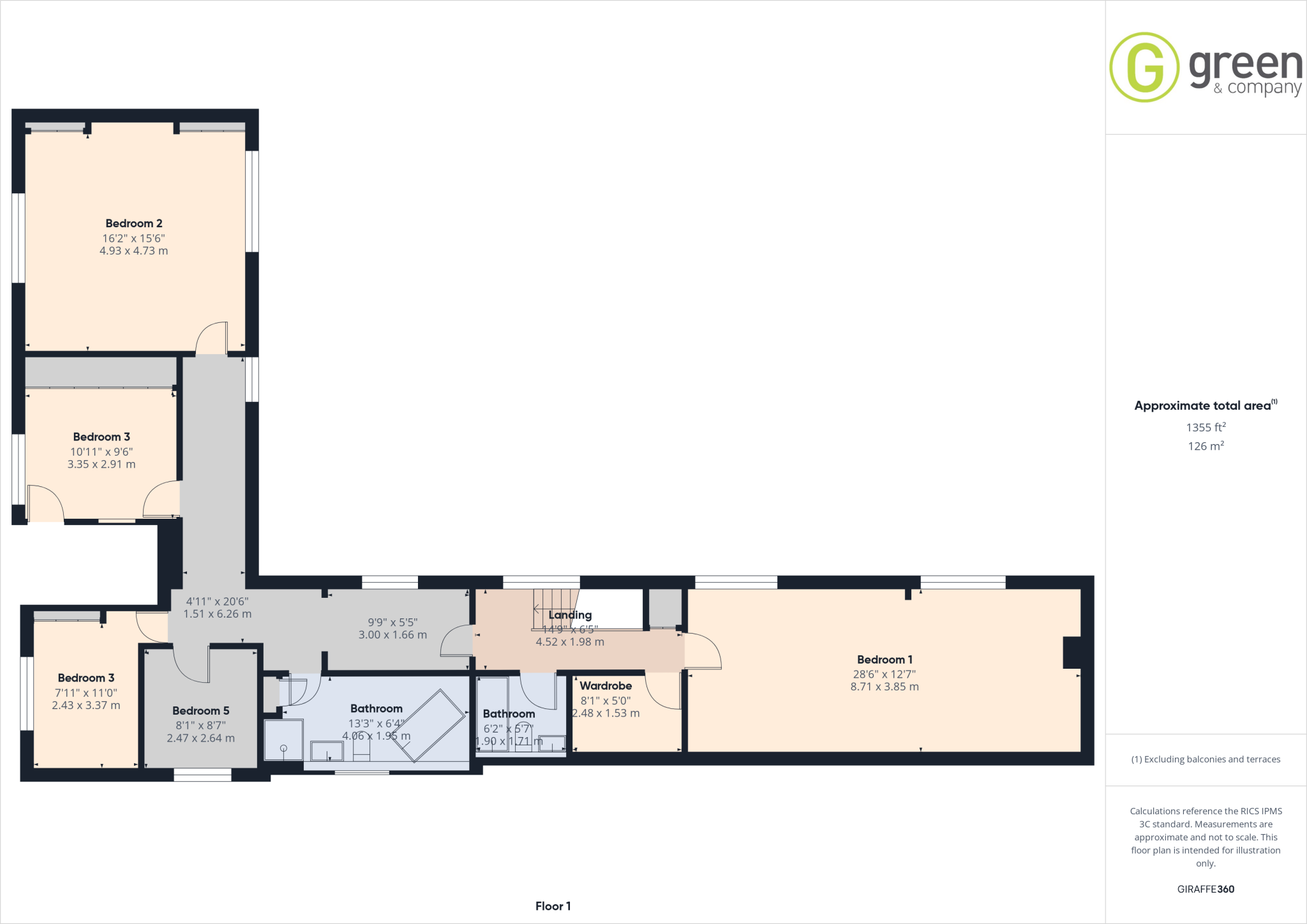
Large five-bedroom house with games room, conservatory and double garage
Extensive gross area approx. 5,079 sq ft — significant scope to reconfigure
Shops and communal areas require modernization and possible redevelopment
Sold at auction — non-refundable reservation fee and 56-day completion period
Medium flood risk — may affect insurance and mortgage terms
Small plot and courtyard garden; limited outdoor amenity space
Fast broadband and excellent mobile coverage, low council tax banding
This substantial mixed-use property combines two ground-floor shops with a large five-bedroom house above and to the rear, creating an immediate income stream and long-term growth potential. The shops are currently tenanted on flexible agreements, offering rental income from day one, while the residential accommodation includes generous reception rooms, a games room, conservatory and a double garage.
The building will be sold at auction under the modern method; the buyer will pay a non-refundable reservation fee and must complete within the reservation period. The commercial units and shop-storage areas need modernization and reconfiguration in places, presenting scope for value-enhancing refurbishment or conversion (subject to consents). A medium flood risk and a small plot are practical constraints to consider.
For investors the predictable rental element, substantial overall floor area (approx. 5,079 sq ft) and detached form give flexibility — continue lettings, refurbish for higher rents, or redevelop parts of the site. For a residential buyer wanting combined income the property provides immediate offset to holding costs, cheap council tax banding and fast broadband. Prospective purchasers should budget for shop refurbishment, check flood insurance implications and note the auction reservation costs and timescale.
High street retail property for sale in Bridge Street, Polesworth, B78 — £850,000 • 1 bed • 1 bath • 5079 ft²
4 bedroom terraced house for sale in Long Street, Dordon, B78 — £245,000 • 4 bed • 2 bath • 1409 ft²
3 bedroom terraced house for sale in Greatmead, Kettlebrook, B77 — £180,000 • 3 bed • 1 bath • 930 ft²
5 bedroom detached house for sale in Melford, Riverside, B79 — £340,000 • 5 bed • 2 bath • 1132 ft²
9 bedroom detached house for sale in Chester Road, Sutton Coldfield, B73 — £700,000 • 9 bed • 3 bath • 4639 ft²
4 bedroom detached house for sale in Comberford Road, Tamworth, B79 — £430,000 • 4 bed • 2 bath • 1613 ft²






























































































































