Newly renovated family home close to outstanding schools and fast transport links.
Newly renovated, offered in turn-key condition
Period Victorian bay window and feature fireplace
Large through lounge and extended kitchen-diner
Three main bedrooms plus a second-floor room used as fourth
Good-size rear garden with decking and lawn
Freehold; affordable council tax and low crime
Solid-brick construction; no insulation recorded (assumed)
Small plot width; single family bathroom
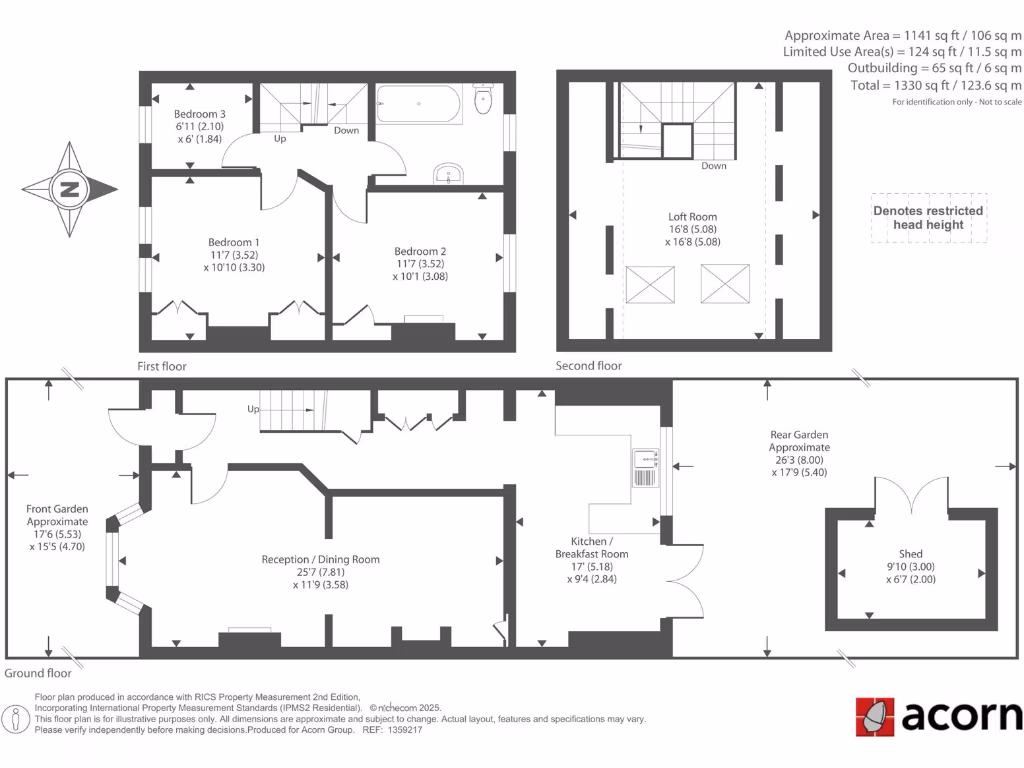
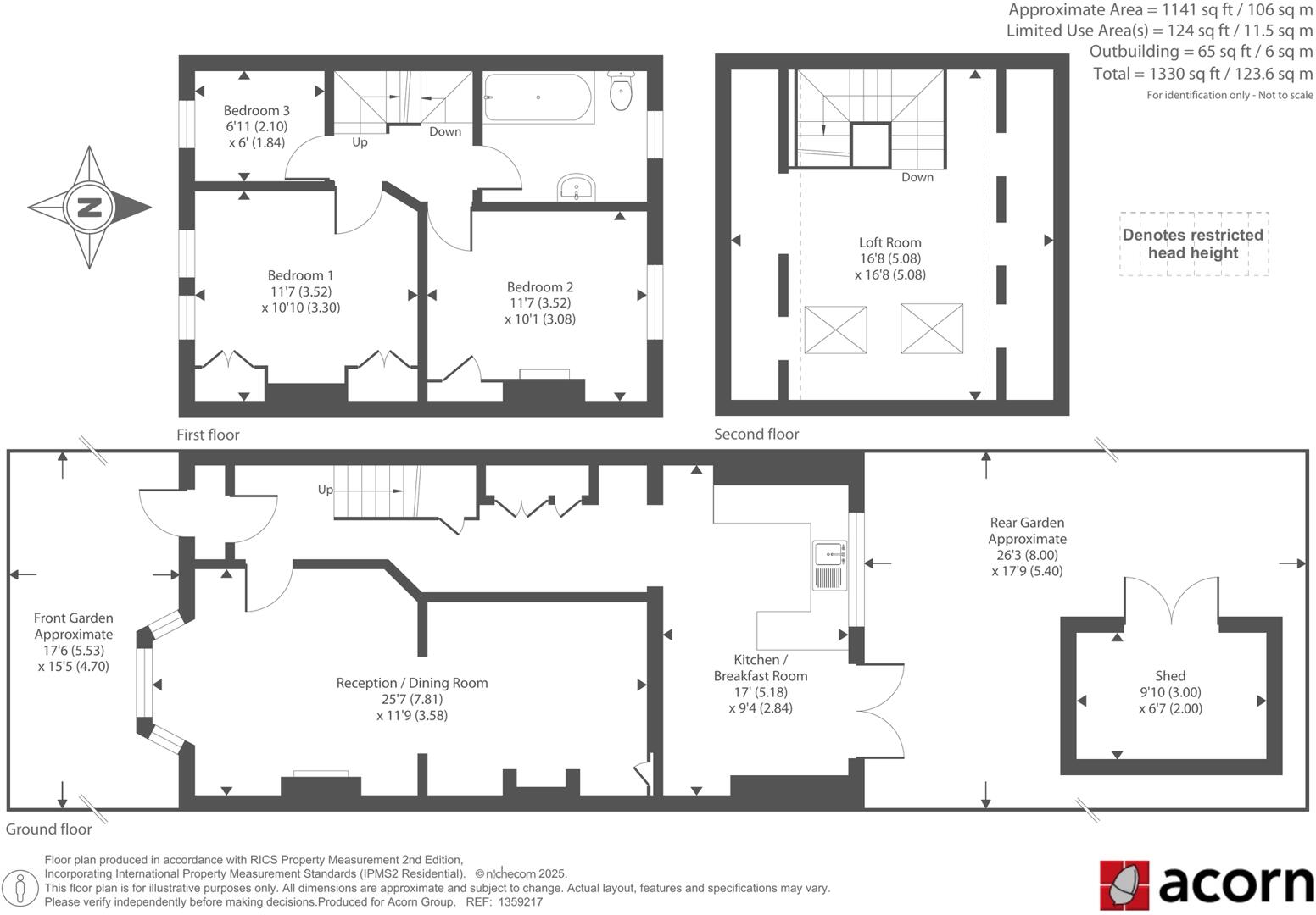
This newly renovated period home sits on a sought-after SE6 street and is offered in turn-key condition. Original Victorian features such as a front bay and fireplace remain, paired with contemporary decor and a modern extended kitchen-diner opening onto the garden.
Arranged over three floors, the property provides comfortable family living: a large through lounge, kitchen-diner with double doors to the rear garden, and three main bedrooms. There is an additional second-floor room currently used as a fourth bedroom/loft room, useful for guests or a home office. The house benefits from double glazing, mains gas central heating and an overall average internal size of about 1,141 sq ft.
Outside there are small front and good-size rear gardens with a decked area and lawn. The freehold tenure, low local crime, excellent mobile signal and fast broadband make this practical for modern family life. Local schools include an Outstanding primary and several Good-rated primaries, and amenities and transport links are within easy reach.
Notes and considerations: the property is solid-brick as built (1930s–40s) and no added cavity insulation is recorded, which could mean future insulation or energy-efficiency works are worth checking. The plot is modest in width, and there is a single family bathroom for the household size.
4 bedroom end of terrace house for sale in Perry Hill, Catford, London, SE6 — £725,000 • 4 bed • 2 bath • 1505 ft²
3 bedroom terraced house for sale in Torridon Road, London, SE6 — £550,000 • 3 bed • 1 bath • 1054 ft²
4 bedroom terraced house for sale in Farley Road, London, SE6 — £700,000 • 4 bed • 3 bath • 1457 ft²
5 bedroom semi-detached house for sale in Bellingham Road, London, SE6 — £700,000 • 5 bed • 1 bath • 2562 ft²
4 bedroom end of terrace house for sale in Polsted Road, London, SE6 — £850,000 • 4 bed • 3 bath • 1925 ft²
3 bedroom end of terrace house for sale in Perry Hill, London, SE6 — £525,000 • 3 bed • 1 bath • 1011 ft²










































































