**Property Highlights:**
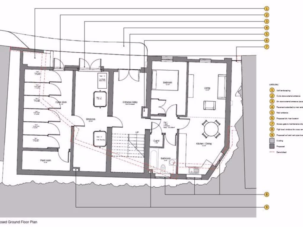
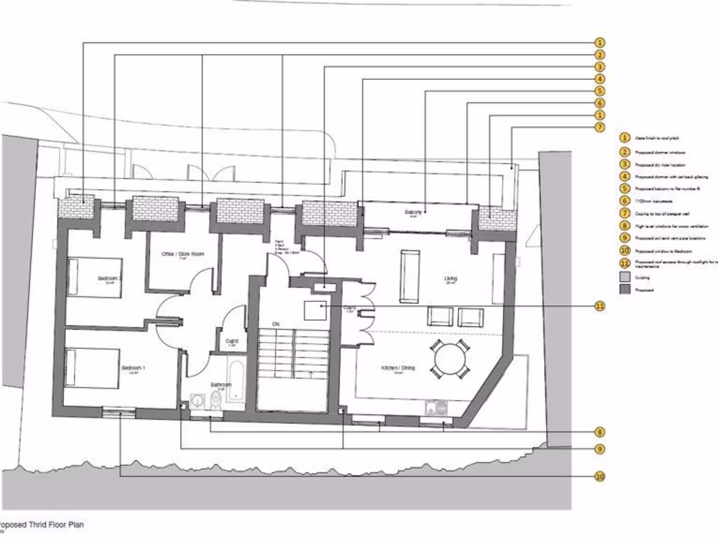
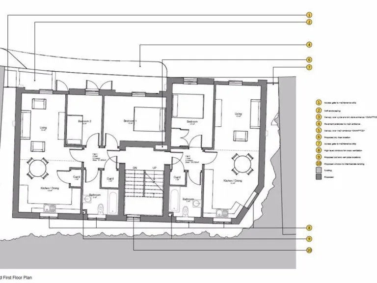
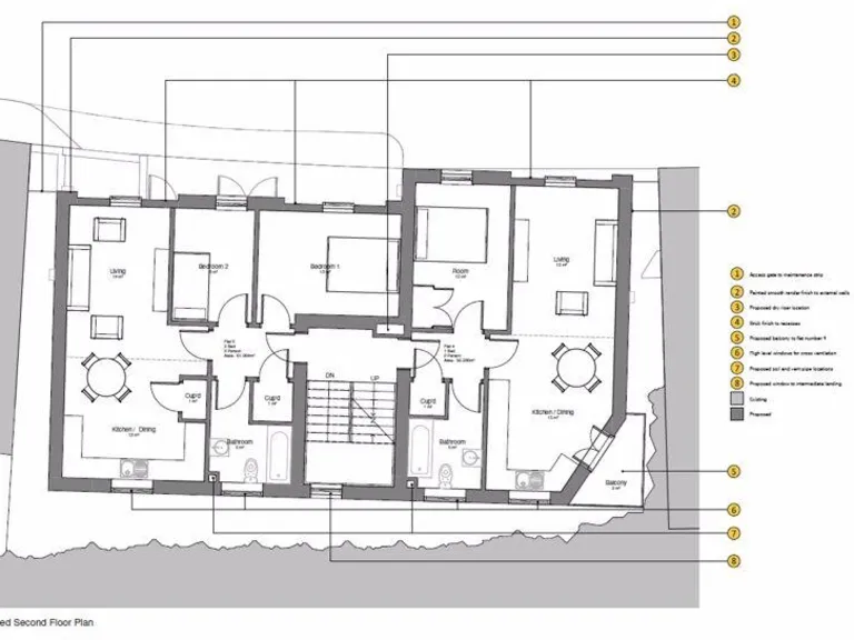
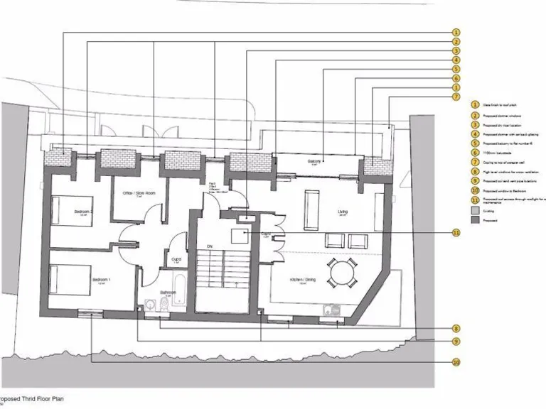
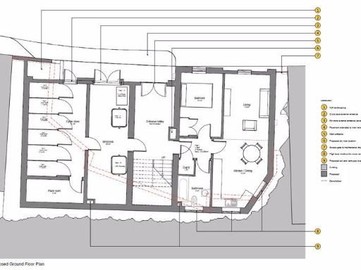
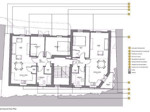
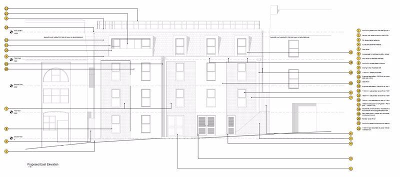
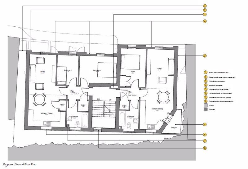
- Planning consent granted for 6 new dwellings (3 one-bed flats, 2 two-bed flats, 1 three-bed flat)
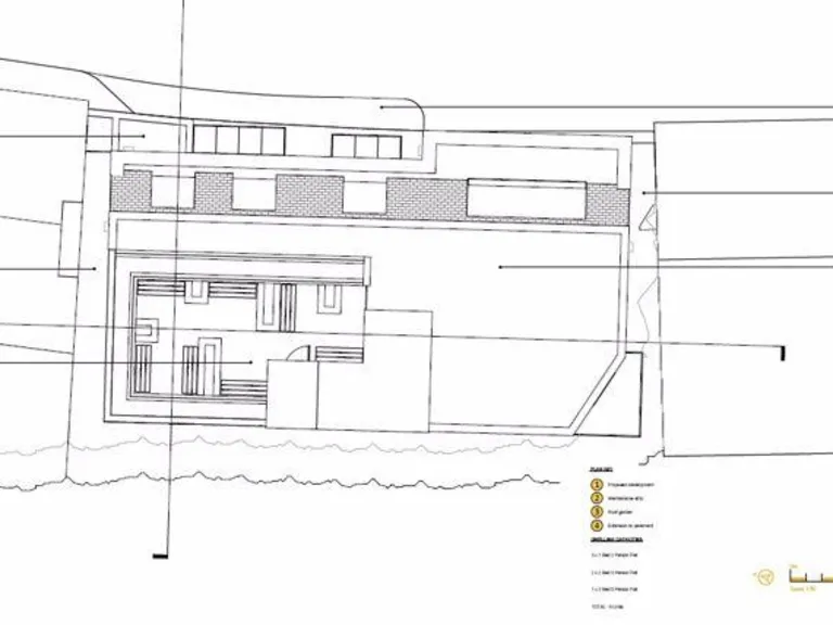
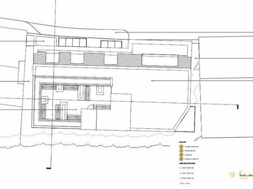
- Cleared site ready for immediate development
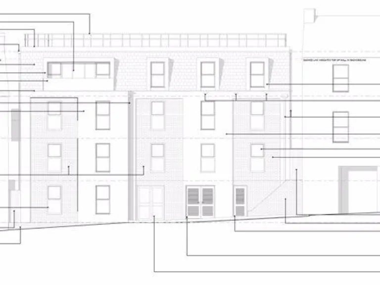
- Prime elevated location with proximity to Torquay town center and harbor
- Two balconies included in the design for select flats
- Freehold tenure provides ownership flexibility
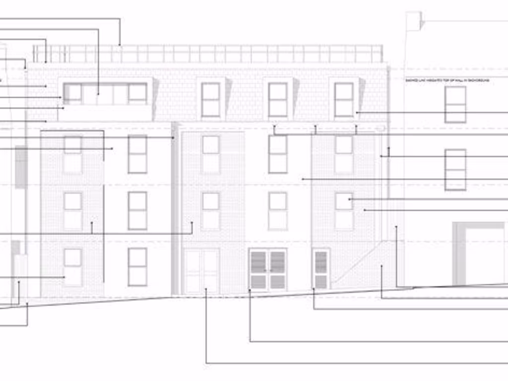
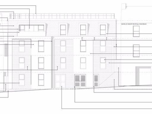
This exceptional building plot in Melville Street, Torquay (TQ2 5SS) offers an exciting opportunity for developers or investors looking to capitalize on the growing demand for urban living. With planning permission already secured for a contemporary apartment building featuring three one-bedroom flats, two two-bedroom flats, and one spacious three-bedroom flat, this site is primed for construction. The project includes modern amenities such as internal bike and refuse storage as well as the extension of pedestrian walkways, promoting a community-oriented lifestyle.
While the area has notable amenities and excellent proximity to the bustling city center and beautiful Torquay harbor, potential buyers should be aware of the high crime rate and the overall deprivation in the vicinity. However, the rich investment potential in this cosmopolitan locale paired with the clear development prospects makes this a rare find in today's market. Don't miss this chance to bring your vision to life in a vibrant community—secure this plot today!
Residential development for sale in Torquay, TQ1 — £45,000 • 1 bed • 1 bath
Residential development for sale in Brixham, TQ5 — £220,000 • 1 bed • 1 bath
Residential development for sale in The Terrace, Torquay, Devon, TQ1 — £495,000 • 1 bed • 1 bath
Residential development for sale in Croft Road, Torquay, Devon, TQ2 — £1,000,000 • 26 bed • 1 bath
Residential development for sale in 48-50 The Terrace, Torquay, Devon, TQ1 — £935,000 • 1 bed • 1 bath
Land for sale in Highcliff Torbay Road Torquay TQ2 6RG, TQ2 — £795,000 • 1 bed • 1 bath






































