DY6 9TU - 4 bedroom detached house for sale in KINGSWINFORD, Cypress…

View on Property Piper

4 bedroom detached house for sale in KINGSWINFORD, Cypress Gardens, DY6

Summary - 3 CYPRESS GARDENS KINGSWINFORD DY6 9TU

4 bed 2 bath Detached

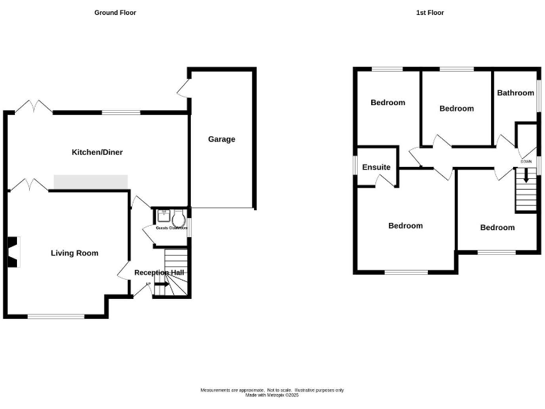
Large four-bedroom cul de sac home with garage, driveway and sunny garden.
Four double bedrooms, principal ensuite shower room
This well-positioned four-bedroom detached house sits at the end of a small cul de sac in desirable Kingswinford. The generous layout includes a large lounge, luxury refitted full-width family dining kitchen with integrated appliances, principal bedroom with ensuite, and a ground-floor WC — practical for family life and entertaining.

Outside, the large block-paved driveway provides ample parking for several vehicles and leads to an integral garage. A private, sunny rear garden with patio and pergola offers pleasant outdoor space. The property benefits from gas central heating, modern double glazing and recent costly improvements, so it is largely ready to move into.

Practical details to note: the house is freehold, EPC rated C and in Council Tax Band F which reflects higher ongoing costs. Constructed in the 1980s, the build and finishes are typical of that era; while well maintained, buyers seeking a newly built specification may wish to update cosmetic elements over time.

Well suited to a growing family looking for space, off-street parking and good local schools, this property combines an established suburban setting with a substantial, flexible internal layout. Viewings will suit buyers who value privacy, a cul de sac location and a ready-to-live-in home with potential to personalise.

Property Details

Brochure Descriptions

Image Descriptions

Rooms

Textual Property Features

Target Audience

AI Tags

Detected Visual Features

EPC Details

Nearby Schools

Nearest Bars And Restaurants

,,,,}

Nearest General Shops

,,}

Nearest Grocery shops

,,}

Nearest Supermarkets

,,}

Nearest Religious buildings

,,}

Nearest Medical buildings

,,,}

Nearest Leisure Facilities

,,,,}

Nearest Tourist attractions

,,}

Nearest Train stations

,,,,}

Nearest Bus stations and stops

,,,,}

Nearest Hotels

,,}

Tags

Local Market Stats

AirBnB Data

Similar Properties

Meta

High Res Images

Compatible Images

Low res Images

Thumbnails

Raw Images

High Res Floorplan Images

Compatible Floorplan Images

Low res Floorplan Images

FloorplanImages Thumbnail

Raw Floorplan Images