Ideal starter home near shops, schools and transport links.
Southfields location near village amenities and transport
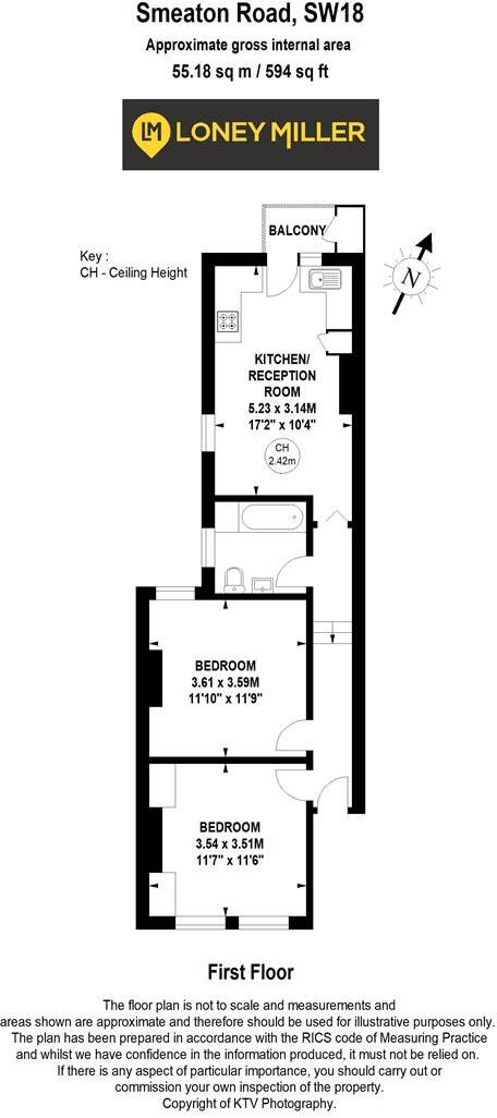
Open-plan kitchen/living/dining with balcony and good natural light
Two double bedrooms; well-proportioned accommodation
Overall size compact at 594 sq ft — limited storage potential
Leasehold with 113 years remaining; sinking fund for major works in place
Ground rent £250/year and moderate council tax
Solid-brick construction; likely no cavity insulation — possible higher heating costs
One bedroom photo uses CGI furniture to indicate room proportions
Set on a tree-lined street in the heart of Southfields, this first-floor purpose-built flat offers practical, well-lit accommodation for a first-time buyer or investor. The open-plan kitchen/living/dining space opens onto a balcony, creating a bright double-aspect reception ideal for everyday living and entertaining. Two double bedrooms and a well-appointed bathroom complete the layout.
The building dates from the early 20th century and benefits from double glazing and a sinking fund in place to cover major works, which reduces near-term maintenance uncertainty. The long lease (113 years) is a strong advantage for buyers concerned about enfranchisement and mortgageability. Ground rent is modest at £250 per year and council tax is moderate.
Be aware this is a relatively small home at 594 sq ft, so consider its storage and space limitations. The property sits in a solid-brick building likely without cavity wall insulation (assumed), so heating costs may be higher than modern-standard walls — the main heating is a mains-gas boiler with radiators. One bedroom photograph includes CGI furniture to illustrate proportions. Overall, this is a well-located, turnkey-feeling flat with sensible long-term ownership terms and genuine rental/resale appeal in Southfields.
2 bedroom flat for sale in Albert Drive, Southfields, London, SW19 — £350,000 • 2 bed • 1 bath • 647 ft²
1 bedroom flat for sale in Swanton Gardens, London, SW19 — £325,000 • 1 bed • 1 bath • 491 ft²
2 bedroom flat for sale in Swanton Gardens, London, SW19 — £385,000 • 2 bed • 1 bath • 709 ft²
1 bedroom apartment for sale in Sutherland Grove, London, SW18 — £360,000 • 1 bed • 1 bath • 495 ft²
2 bedroom flat for sale in Replingham Road, London, SW18 — £499,500 • 2 bed • 1 bath • 767 ft²
2 bedroom flat for sale in Whitlock Drive, London, SW19 — £335,000 • 2 bed • 1 bath • 658 ft²


























