Character-filled first-floor apartment with long lease and low running costs.
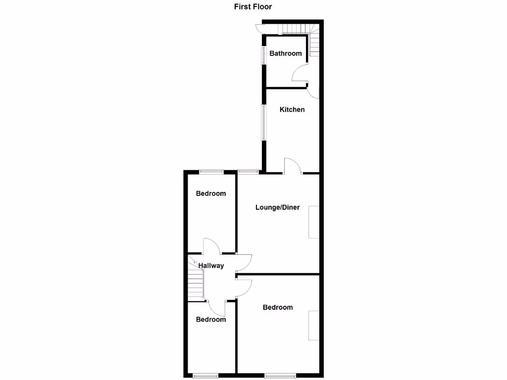
Three bedrooms, approx 937 sq ft of living space
A roomy three-bedroom first-floor flat in a Victorian end-terrace, offering generous living space (approx 937 sq ft) and character features such as high ceilings and a period fireplace. The property feels light and airy and has been well maintained with recent updates including a new roof in 2019 and a bathroom refitted in 2022.
Practical positives include double glazing, mains gas central heating with a boiler and radiators, a long lease (approx. 959 years remaining) and very low council tax (Band A). There is a shared rear yard and the flat sits within easy reach of local amenities, good-rated schools and reliable transport links — also benefitting from fast broadband and excellent mobile signal.
Buyers should note material drawbacks honestly: the building has solid brick walls with assumed no cavity insulation, and the property’s EPC is D, so energy-efficiency improvements would reduce running costs. The area records high crime and significant deprivation, which may concern some purchasers. Tenure is leasehold and the flat is in a densely populated urban area.
This home will suit first-time buyers seeking space and period character with scope to personalise and improve energy performance. It also appeals to those prioritising low council tax and good connectivity over quiet suburban settings. Repairs and modernisation to insulation and finishes would add value and comfort.
3 bedroom apartment for sale in Windsor Avenue, Gateshead, NE8 — £90,000 • 3 bed • 1 bath • 776 ft²
3 bedroom apartment for sale in North Road, Wallsend, NE28 — £99,950 • 3 bed • 1 bath • 681 ft²
3 bedroom flat for sale in Stowell Terrace, Heworth, NE10 — £100,000 • 3 bed • 1 bath • 733 ft²
3 bedroom apartment for sale in Grey Street, North Shields, NE30 — £175,000 • 3 bed • 1 bath • 685 ft²
3 bedroom flat for sale in Seymour Street, North Shields, NE29 — £82,500 • 3 bed • 1 bath • 743 ft²
3 bedroom flat for sale in Coronation Street, Wallsend, NE28 — £80,000 • 3 bed • 1 bath • 587 ft²






















































