CT14 9ZB - 3 bedroom semidetached house for sale in The Brook, Pottery…

View on Property Piper

3 bedroom semi-detached house for sale in The Brook, Pottery Grove, Deal, CT14

Summary - The Brook at Pottery Grove The Brook at Pottery Grove The Brook at Pottery Grove The Brook, Pottery Grove, Deal, CT14 CT14 9ZB

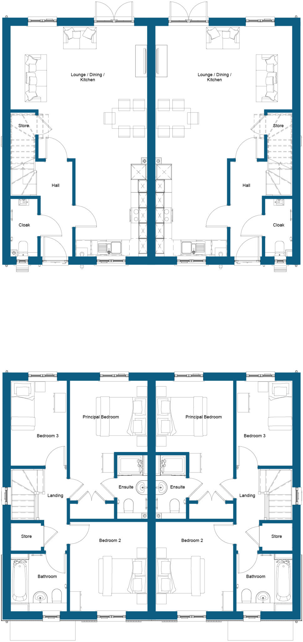
3 bed 1 bath Semi-Detached

**Standout Features:**
- Newly built semi-detached house with contemporary design
- 3 bedrooms, 1 bathroom, and ensuite in the master bedroom
- Spacious open-plan kitchen/dining/living area with large windows for natural light
- Chain-free and backed by a 10-year structural warranty
- Off-street parking and large garden, ideal for relaxation and outdoor activities
- Located in a vibrant area with easy access to the beach, town center, and train station

**Downsides:**
- Average mobile signal; broadband speeds rated as fast
- Some nearby schools with mixed performance ratings

This stunning new build in Deal offers a unique blend of modern living and charming coastal lifestyle. With 1,046 square feet of space, the home features an expansive open-plan living area flooded with natural light, creating a warm and inviting environment perfect for family gatherings or entertaining guests. Enjoy the luxury of an ensuite master bedroom, two additional bedrooms, and a beautifully landscaped large garden that serves as your private oasis.

Situated in one of the most sought-after new developments, you're just a short stroll away from the beach, local amenities, and the bustling town center. With its contemporary design and excellent build quality, this property is perfect for families, first-time buyers, or investors looking for a prime location with growth potential. Don’t miss out on this exclusive opportunity—you can schedule a viewing today and step into your dream home!

Property Details

Image Descriptions

Floorplan Description

Rooms

Textual Property Features

Detected Visual Features

Nearby Schools

Nearest Bars And Restaurants

,,,,}

Nearest General Shops

,,}

Nearest Grocery shops

,,}

Nearest Supermarkets

,,}

Nearest Religious buildings

,,}

Nearest Medical buildings

,,,}

Nearest Leisure Facilities

,,,,}

Nearest Tourist attractions

,,}

Nearest Train stations

,,,,}

Nearest Bus stations and stops

,,,,}

Nearest Hotels

,,}

Tags

Local Market Stats

AirBnB Data

Similar Properties

Meta

High Res Images

Compatible Images

Low res Images

Thumbnails

Raw Images

High Res Floorplan Images

Compatible Floorplan Images

Low res Floorplan Images

FloorplanImages Thumbnail

Raw Floorplan Images