100ft private garden, garage and conservatory ideal for family life.
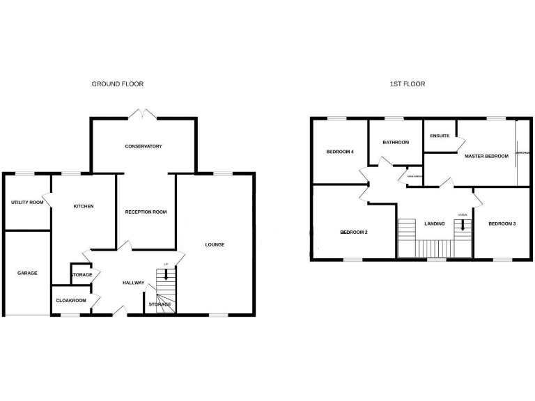
Detached four-bedroom house with ensuite to the master bedroom
Guide price £550,000–£600,000. This detached four-bedroom house on Winstree Road sits on a large, private plot with a long, well-tended 100ft rear garden, attached garage and block-paved driveway for multiple cars. The layout includes a generous lounge, separate dining room, bright conservatory and a fitted kitchen with adjoining utility — practical spaces for family life.
The first floor provides a main bedroom with ensuite plus three further bedrooms and a family bathroom. The property has been well maintained throughout and presents comfortable, versatile accommodation ready for immediate occupation. Nearby amenities, good local schools and easy A12 access make this a convenient family location.
Be aware the advertised internal area is relatively small for a four-bedroom house (total approximately 760 sq ft), so some rooms are compact compared with newer family homes. Council tax is above average. There is clear potential to improve or extend (subject to planning) if you need more internal space or modernisation to suit growing family needs.
Freehold tenure, no flood risk and excellent mobile and broadband connectivity add practical value. Viewings are recommended to assess layout and scope for modest updating or reconfiguration.
3 bedroom semi-detached house for sale in Winstree Road, Stanway, COLCHESTER, CO3 — £450,000 • 3 bed • 2 bath • 765 ft²
4 bedroom detached house for sale in Finch Road, Stanway, Colchester, Essex, CO3 — £450,000 • 4 bed • 2 bath • 1093 ft²
5 bedroom detached house for sale in Martin Hunt Drive, Colchester, CO3 — £475,000 • 5 bed • 2 bath • 1303 ft²
4 bedroom semi-detached house for sale in Woden Avenue, Stanway, CO3 — £400,000 • 4 bed • 3 bath • 1292 ft²
3 bedroom detached house for sale in Shepherds Croft, Colchester, CO3 — £400,000 • 3 bed • 1 bath
4 bedroom link detached house for sale in Butterfly Trail, Stanway, Colchester, Essex, CO3 — £440,000 • 4 bed • 2 bath • 992 ft²


































































































































