High-floor two-bedroom with concierge and strong rental potential.
18th-floor apartment with large wrap-around balcony and water views
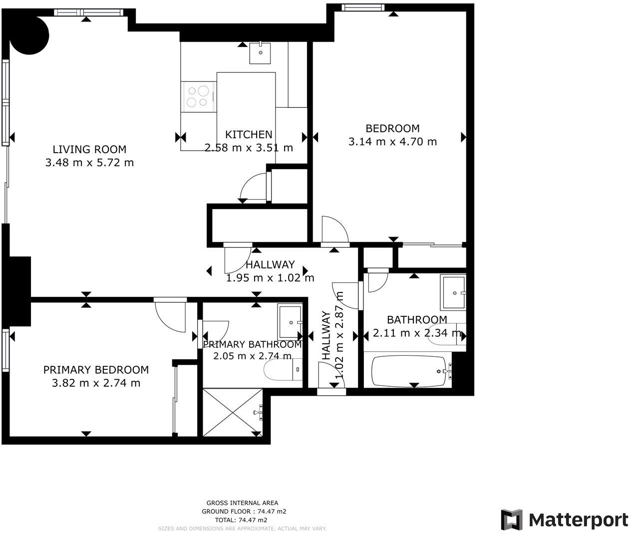
Set high on the 18th floor of The Lightbox, this two-bedroom, two-bath apartment offers striking waterside views and a large wrap-around balcony. Floor-to-ceiling glazing floods the open-plan living and dining area with light, while contemporary finishes and integrated appliances keep the interior low-maintenance and immediately lettable or move-in ready.
Residents benefit from 24-hour concierge, secure fob entry and easy access to MediaCityUK’s cafés, theatres and transport links, with Metrolink services into Manchester city centre nearby. The apartment’s layout, two bathrooms and generous glazing make it well-suited to professionals or investors seeking a high-spec city-base with strong rental appeal.
Practical points to note: the lease has 243 years remaining, and the annual service charge is £4,112.68 (ground rent £346.24pa). Heating is via a community scheme, and broadband speeds in the building are reported as very slow — factors to consider for owner-occupiers who prioritise independent heating control or fast home internet.
Overall this is a modern, low-upkeep apartment in a vibrant, affluent media quarter. It will appeal to buyers looking for waterside city living or investors targeting busy rental demand around MediaCity and Manchester.
2 bedroom apartment for sale in The Lightbox, Blue Media City UK M50 — £290,000 • 2 bed • 2 bath • 776 ft²
2 bedroom apartment for sale in The Lightbox Media City UK M50 — £250,000 • 2 bed • 2 bath • 743 ft²
1 bedroom apartment for sale in Blue, Media City UK, Salford, M50 — £165,000 • 1 bed • 1 bath • 394 ft²
2 bedroom apartment for sale in Lightbox, Blue, Media City UK, Salford, M50 — £259,000 • 2 bed • 2 bath • 730 ft²
2 bedroom apartment for sale in Lightbox, M50 — £250,000 • 2 bed • 2 bath • 742 ft²
2 bedroom apartment for sale in Blue, Media City UK, Salford, M50 — £270,000 • 2 bed • 2 bath • 709 ft²






















































