Spacious period property with versatile outbuildings and stunning national-park location.
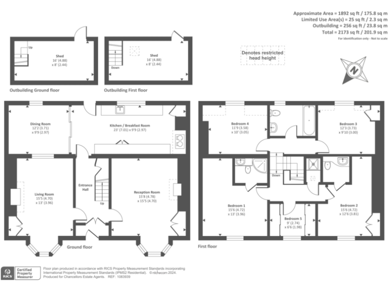
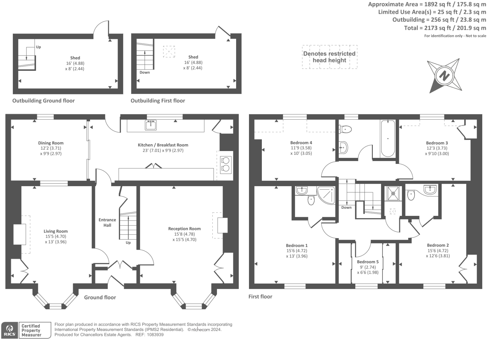
Five bedrooms and three bathrooms (listing describes five bedrooms)
Two reception rooms with restored fireplaces and wood-burning stoves
Recently replaced front and rear roofs; renovated kitchen and bathrooms
Secondary glazing throughout; efficient Grant condensing boiler installed
Renovated two-storey granary offering workshop or storage potential
Very large plot with courtyard, lawn and rear double-gate access
Rear bedrooms have lower ceilings; some rooms show period wear
Area is very deprived; broadband speeds average despite excellent mobile signal
Set in the heart of the Brecon Beacons National Park, this sympathetically restored Victorian home combines period character with modern upgrades. Large reception rooms with restored fireplaces and wood-burning stoves sit alongside a refurbished kitchen and contemporary bathrooms, offering comfortable family living and strong holiday-let potential.
Significant recent works include new front and rear roofs, secondary glazing throughout, and an efficient Grant condensing boiler, reducing immediate maintenance worry. The impressive two-storey granary has been renovated and provides versatile workshop, studio or storage space, while the very large plot and courtyard offer scope for gardens, parking or further outbuildings.
Practical considerations are factual: the property sits in a very deprived local area despite excellent road and bus links, mobile signal is excellent but broadband speeds are average, and council tax is moderate. Rear bedrooms have lower ceilings and some rooms show remnants of wear that may suit buyers wanting character rather than fully contemporary proportions.
This home will suit families or buyers seeking a spacious period house in a National Park, and those wanting a ready-to-enjoy property with scope to personalise. Viewing is recommended to appreciate the mix of historic detail, recent renovation and the property's rural setting close to local amenities and transport routes.
5 bedroom semi-detached house for sale in Camden Road, Brecon, Powys, LD3 — £600,000 • 5 bed • 2 bath • 1797 ft²
4 bedroom semi-detached house for sale in St. Davids Crescent, Brecon, Powys., LD3 — £399,950 • 4 bed • 1 bath • 1314 ft²
5 bedroom house for sale in Llanddew, Brecon, Powys, LD3 — £720,000 • 5 bed • 3 bath • 3000 ft²
3 bedroom detached house for sale in High Street, Sennybridge, Brecon, Powys., LD3 — £299,950 • 3 bed • 1 bath • 1906 ft²
4 bedroom terraced house for sale in Watton, Brecon, LD3 — £330,000 • 4 bed • 1 bath • 1016 ft²
3 bedroom semi-detached house for sale in High Street, Sennybridge, Brecon, LD3 — £199,950 • 3 bed • 1 bath • 1445 ft²






























































































