Compact, commuter-friendly four-bedroom semi with modern finishes and garden.
Four well-proportioned bedrooms in a newly refurbished interior
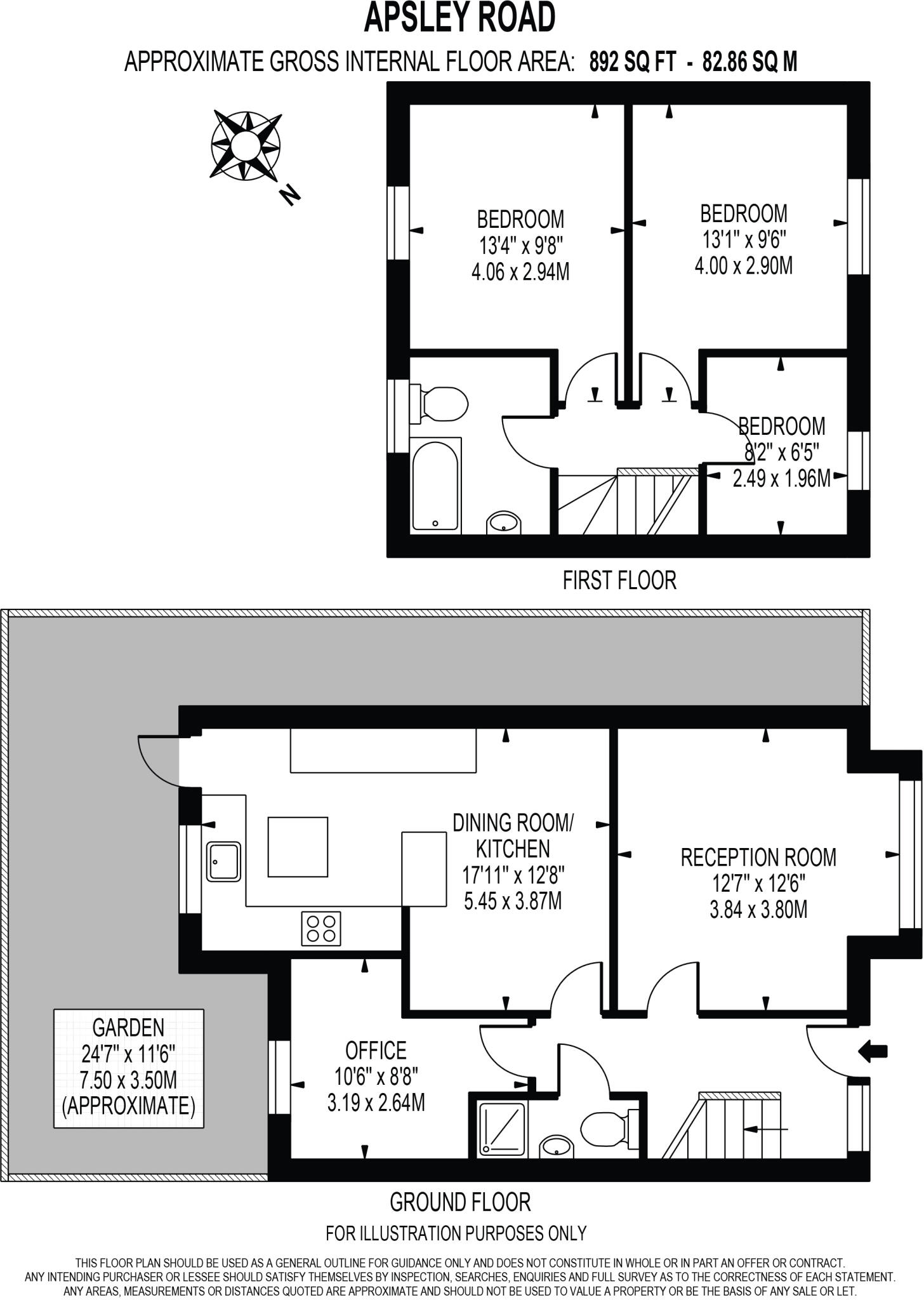
This newly refurbished four-bedroom semi-detached house on Apsley Road offers compact, well-planned living for commuters and growing families. The interior has been modernised throughout with fresh finishes, double glazing and gas central heating, presenting move-in-ready accommodation across multiple storeys. Chain-free sale makes timing straightforward for buyers.
The property is small (approximately 892 sq ft) with a modest rear garden, so it suits buyers prioritising location and transport links over expansive living space. Norwood Junction and other nearby stations provide fast, frequent services into London Victoria, London Bridge and the Overground network, making daily commuting simple. Local shops, cafés and green spaces such as the Country Park and Norwood Lakes are within easy walking distance.
Practical considerations: the home sits in an area with above-average crime and some wider local deprivation indicators, and the tenure and council tax band are currently unknown. The EPC rated C indicates average energy performance. Overall, this is a compact, contemporary home ideal for commuters or families wanting a low-maintenance base close to amenities, provided buyers accept the small footprint and local area caveats.
3 bedroom semi-detached house for sale in Apsley Road, South Norwood, SE25 — £500,000 • 3 bed • 2 bath • 1192 ft²
2 bedroom house for sale in Apsley Road, South Norwood, SE25 — £475,000 • 2 bed • 1 bath • 1074 ft²
5 bedroom terraced house for sale in Woodside Road, South Norwood, SE25 — £600,000 • 5 bed • 2 bath • 1652 ft²
3 bedroom terraced house for sale in Oakley Road, South Norwood, SE25 — £375,000 • 3 bed • 1 bath • 945 ft²
4 bedroom end of terrace house for sale in Lonsdale Road, South Norwood, SE25 — £515,000 • 4 bed • 2 bath • 1193 ft²
3 bedroom semi-detached house for sale in Cresswell Road, South Norwood, London, SE25 — £525,000 • 3 bed • 2 bath • 1090 ft²


















































