Newly built family home with low running costs and parking for two.
Brand-new semi with 10-year Build Zone warranty
Open-plan living, shaker kitchen, integrated appliances
Underfloor heating downstairs, gas radiators upstairs
Solar panels and on-site car charger for lower energy bills
Private parking for two vehicles, off-street dual driveway
Landscaped fenced garden with Indian sandstone patio
Single family bathroom only — one bath/shower for three bedrooms
EPC rating pending; council tax band currently unknown
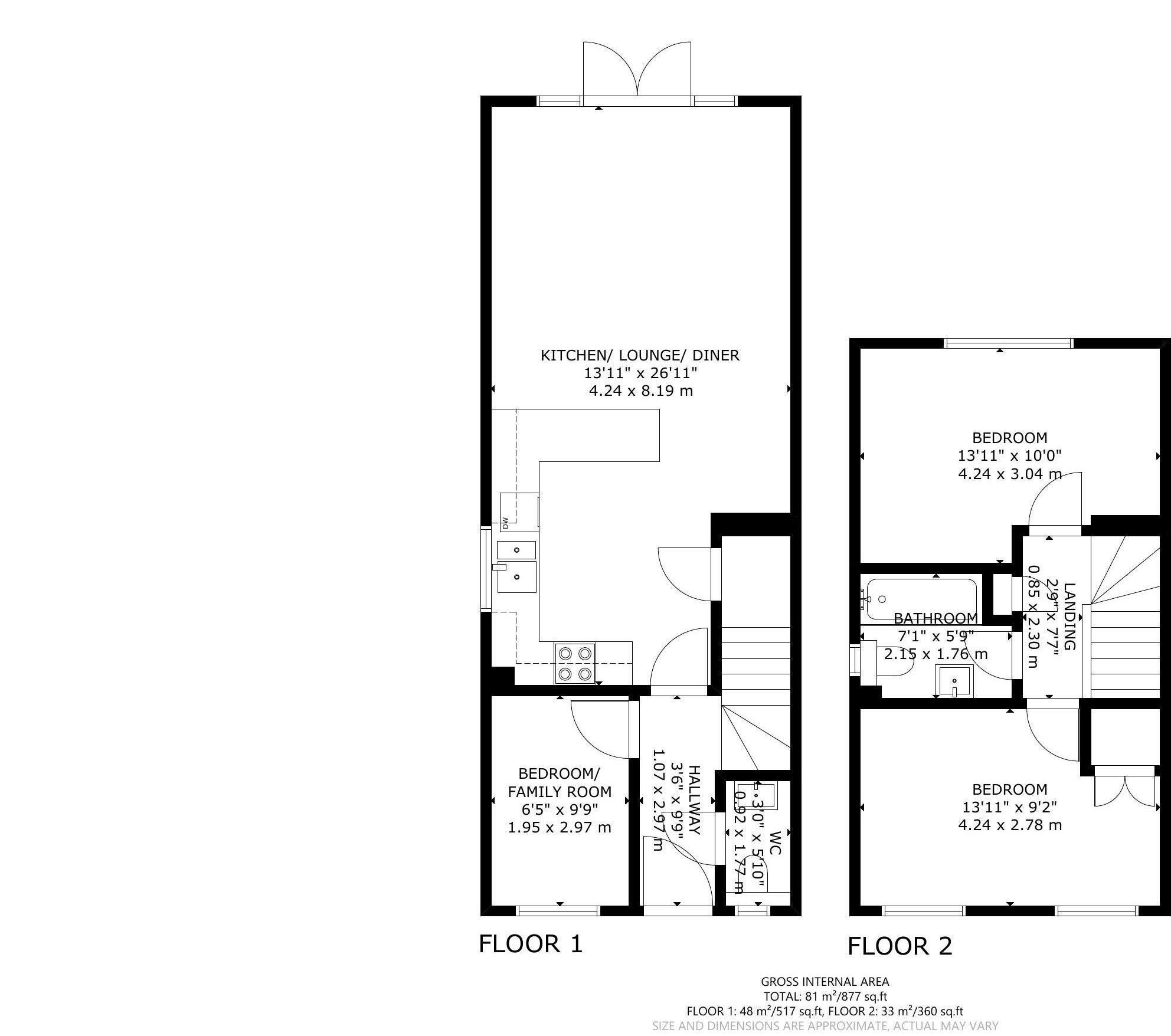
Set on the edge of Manor Park in Uckfield, this brand-new three-bedroom semi-detached home by MJD Designer Homes combines contemporary finishes with energy-efficient features. The house offers open-plan living with an integrated shaker kitchen, underfloor heating downstairs and double glazing, plus solar panels and a car charger for lower running costs. A 10-year Build Zone warranty provides added peace of mind.
The layout works well for families: ground-floor lounge/dining and a flexible third bedroom/family room, with two bedrooms and a family bathroom upstairs. Outside there is private off-street parking for two cars, an Indian sandstone patio and a landscaped, fenced garden – low-maintenance and family-friendly.
Practical points to note: the property has a single family bathroom, and the EPC band is yet to be published. The home is modest in overall size at about 877 sq ft, so buyers seeking very large living spaces should check room dimensions. Excellent local schooling, nearby leisure facilities and rail links to London make this especially suitable for families and first-time buyers looking for a modern, low-maintenance home in an affluent suburb.
3 bedroom semi-detached house for sale in Firle Green, Uckfield, East Sussex, TN22 — £399,950 • 3 bed • 1 bath • 882 ft²
3 bedroom semi-detached house for sale in Firle Green, Uckfield, East Sussex, TN22 — £410,000 • 3 bed • 1 bath • 924 ft²
3 bedroom semi-detached house for sale in Sawmill Close, Uckfield, TN22 — £425,000 • 3 bed • 2 bath • 1007 ft²
3 bedroom semi-detached house for sale in Plot 149 - The Cypress, Meadow View, Crowborough TN6 3RE, TN6 — £449,995 • 3 bed • 2 bath • 1142 ft²
3 bedroom semi-detached house for sale in The Old Sawmill, Ridgewood, TN22 — £425,000 • 3 bed • 2 bath • 1007 ft²
3 bedroom semi-detached house for sale in Selby Rise, Uckfield, TN22 — £450,000 • 3 bed • 1 bath • 1044 ft²






































































