Spacious master suite and south-facing garden for family living.
Newly fitted kitchen/diner opening to conservatory with tiled roof
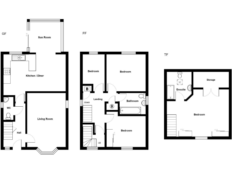
A modern family home arranged over three floors, The Briars offers flexible living, practical storage and contemporary finishes throughout. Built in 2013 and recently upgraded by the owners, the house feels fresh and move-in ready: a newly fitted kitchen/diner flows into a tiled-roof conservatory, and the master bedroom occupies the whole second floor with an ensuite and generous eaves storage.
The property will suit families wanting separate reception space and a private, southerly-facing garden for outdoor time. Practical features include gas central heating, double glazing, a single garage with rafter storage and tandem parking for two to three cars. Nearby schools rated Good and local amenities make the location convenient for everyday family life.
Be aware of the house’s multi-storey layout: three floors mean frequent stair use and may not suit limited mobility. Bedroom four is modest in size and the footprint is described as average — good for those wanting lower-maintenance outdoor space but not for buyers seeking large grounds. Broadband is average for the area; mobile signal is excellent. Overall, this is a well-presented, recently improved detached home offering sensible family accommodation in a prosperous suburban setting.
4 bedroom town house for sale in Broad Lane, Yate, BS37 — £425,000 • 4 bed • 2 bath • 1257 ft²
4 bedroom detached house for sale in Pear Tree Hey, Yate, Bristol, BS37 — £545,000 • 4 bed • 2 bath • 1194 ft²
4 bedroom detached house for sale in Long Croft, Yate, BS37 — £460,000 • 4 bed • 2 bath • 1318 ft²
4 bedroom detached house for sale in Long Croft, Yate, Bristol, BS37 7YW, BS37 — £550,000 • 4 bed • 3 bath • 1170 ft²
3 bedroom terraced house for sale in Bredon, Yate, Bristol, Gloucestershire, BS37 — £285,000 • 3 bed • 1 bath • 860 ft²
4 bedroom detached house for sale in Long Croft, Bristol, BS37 — £450,000 • 4 bed • 2 bath • 1345 ft²


















































































