ME13 8HB - 2 bed victorian two bedroom in Cyprus Road, ME13 8HB

View on Property Piper

2 bedroom terraced house for sale in Cyprus Road, Faversham, Kent, ME13

Summary - 10 CYPRUS ROAD FAVERSHAM ME13 8HB

2 bed 2 bath Terraced

Characterful period home close to park and station for downsizers.
Victorian mid-terrace with period features and high lounge ceilings
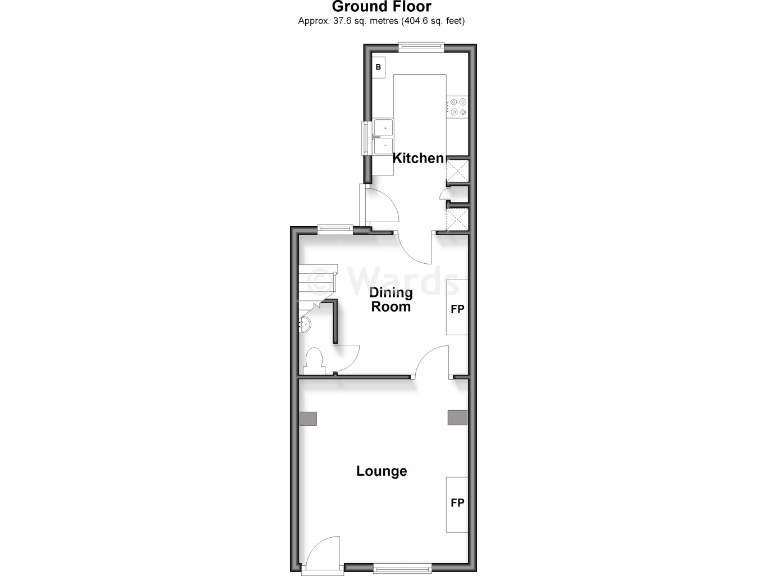
Two bedrooms and two reception rooms; compact but well-proportioned rooms
Private, established rear garden with good privacy
Opposite recreational park; short walk to shops and mainline station
Solid brick walls likely without cavity insulation; possible retrofit costs
Small plot size; rooms and garden are not expansive
Local area: deprived terraces and above-average crime rate
Lifetime Lease option for 60+ buyers — guide price £205,000 (market £310,000)
This well-presented Victorian mid-terrace offers a comfortable, characterful home ideal for someone looking to downsize within easy reach of Faversham town centre. The house has two reception rooms — a generous lounge and separate dining room — plus two bedrooms and two bathrooms, arranged across a practical footprint with period features such as high ceilings, a feature fireplace and mouldings.

A particular strength is the private, established rear garden that feels sheltered and colourful, with a good degree of privacy and direct access from the living spaces. The location is convenient: opposite the town recreational park, a short walk to shops and the mainline station, with fast broadband and standard mobile signal for everyday connectivity.

Important practical details: the property is solid brick (likely no wall insulation), has double glazing fitted after 2002 and gas central heating via boiler and radiators. The overall plot is small and rooms are compact rather than expansive. Local crime is above average for the area and the wider neighbourhood is described as deprived blue-collar terraces, which may affect long-term resale. Council tax is inexpensive and flood risk is low.

Suitable for purchasers aged 60+ who wish to use Homewise’s Home for Life Lifetime Lease: the market price is listed at £310,000 while the Lifetime Lease guide price shown here is £205,000 (average saving c.33%). The Lifetime Lease lets eligible buyers purchase up to a 50% share to safeguard part of the property value; final price depends on age and circumstances. If you are under 60 you can buy at the full market price.

Property Details

Image Descriptions

Rooms

Textual Property Features

Target Audience

AI Tags

Detected Visual Features

EPC Details

Nearby Schools

Nearest Bars And Restaurants

,,,,}

Nearest General Shops

,,}

Nearest Grocery shops

,,}

Nearest Supermarkets

,,}

Nearest Religious buildings

,,}

Nearest Medical buildings

,,,}

Nearest Leisure Facilities

,,,,}

Nearest Tourist attractions

,,}

Nearest Train stations

,,,,}

Nearest Bus stations and stops

,,,,}

Nearest Hotels

,,}

Tags

Local Market Stats

AirBnB Data

Similar Properties

Meta

High Res Images

Compatible Images

Low res Images

Thumbnails

Raw Images

High Res Floorplan Images

Compatible Floorplan Images

Low res Floorplan Images

FloorplanImages Thumbnail

Raw Floorplan Images