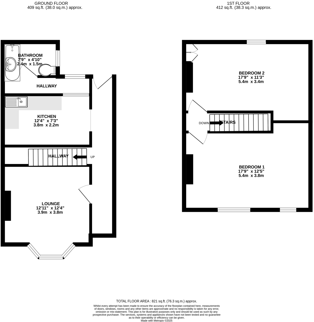
**Standout Features:**
- Two double bedrooms in a Victorian house
- Ground floor bathroom
- Gas central heating & double glazing
- Private garden space
- Excellent transport links to Woolwich, including the Elizabeth Line
- Currently tenanted, making it ideal for investors
**Concerns:**
- Property requires some updating and modernization
- Located in an area with high crime rates
- Small plot size
Discover the charm of this Victorian terraced house, featuring two spacious double bedrooms and a practical ground-floor bathroom. With a high ceiling and bay window in the living room, the property radiates potential waiting to be unlocked. Located in the vibrant SE18 postcode, it offers unrivaled access to Woolwich’s Rail links, making it perfect for commuters and investors alike.
Though the property is currently tenanted and boasts consistent rental income, it is in need of some updating, providing a blank canvas for your design aspirations. The average-sized garden offers a touch of outdoor space amidst urban living. With local amenities, schools rated 'Good', and handy access to shops and services, this home provides a secure base for families or a strategic investment opportunity in a connected area. Don’t miss out on the chance to capitalize on this unique property—schedule your viewing today!
3 bedroom terraced house for sale in Eglinton Road, Woolwich, SE18 — £500,000 • 3 bed • 1 bath • 1214 ft²
3 bedroom terraced house for sale in Whitworth Road, Woolwich, SE18 — £475,000 • 3 bed • 2 bath • 1118 ft²
2 bedroom terraced house for sale in Sandy Hill Road, London, SE18 — £440,000 • 2 bed • 1 bath • 701 ft²
2 bedroom terraced house for sale in Jessup Close, Woolwich, SE18 — £420,000 • 2 bed • 1 bath • 844 ft²
3 bedroom terraced house for sale in Burrage Road, London, SE18 — £600,000 • 3 bed • 1 bath • 1472 ft²
3 bedroom terraced house for sale in Viewland Road, London, SE18 — £565,000 • 3 bed • 2 bath • 1277 ft²


































































































