Characterful four-bed terrace with sea views and courtyard garden, minutes from beach.
- Stunning harbour and sea views from upper floor bedrooms
- Four bedrooms across three levels; flexible family layout
- Bright kitchen/dining room ideal for family meals
- Small enclosed courtyard plus access to communal garden
- Solid brick Victorian build, likely no wall insulation
- Double glazing present; install dates unknown
- Compact plot and modest rooms relative to modern houses
- Located in a high-crime, very deprived area; local amenities nearby
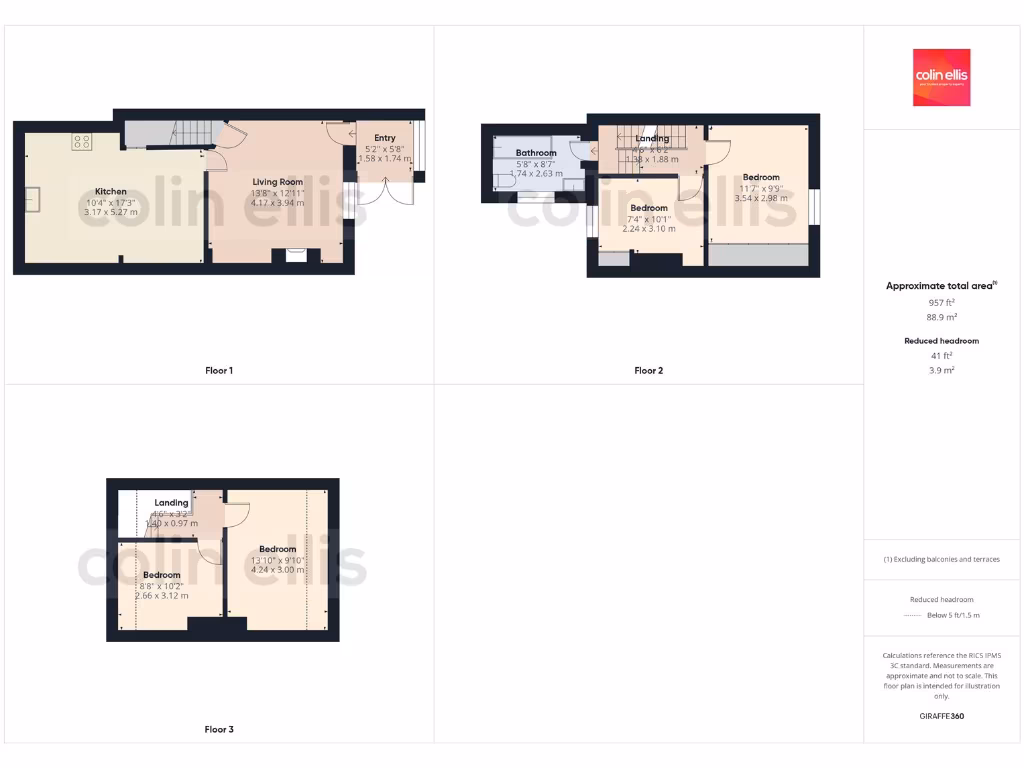
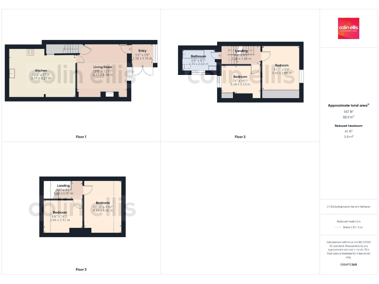
Set in Scarborough’s historic Old Town, this four-bedroom mid-terrace town house combines period character with impressive harbour and sea views. The bright kitchen/dining room and cosy living room with a fireplace create welcoming family spaces, while the top-floor double bedroom enjoys far-reaching coastal outlooks.
The property is arranged over three levels and suits a small family or buyers seeking a seaside base. Accommodation includes two bedrooms on the first floor and two further bedrooms on the second floor, plus a modern family bathroom. A small enclosed courtyard provides private outdoor space and access to a communal garden.
Buyers should note the house is of traditional solid-brick construction (pre-1900) with assumed lack of wall insulation. Although double glazed, the date of installation is unknown. The compact plot and historic location mean space is limited and the property will benefit from targeted updating and possible insulation/energy improvements.
This freehold home is an attractive option for those prioritising location and views: a comfortable permanent residence, holiday retreat, or a lettable investment in a characterful coastal neighbourhood close to the harbour, beach and local amenities.
4 bedroom property for sale in Castlegate, Scarborough, YO11 — £250,000 • 4 bed • 1 bath • 1217 ft²
4 bedroom terraced house for sale in Cooks Row, Scarborough, North Yorkshire, YO11 — £160,000 • 4 bed • 1 bath • 856 ft²
4 bedroom terraced house for sale in Princess Street, Scarborough, YO11 — £290,000 • 4 bed • 2 bath • 1238 ft²
4 bedroom property for sale in Longwestgate, Scarborough, YO11 — £325,000 • 4 bed • 1 bath • 1451 ft²
4 bedroom terraced house for sale in St. Marys Walk, Scarborough, North Yorkshire, YO11 — £220,000 • 4 bed • 1 bath • 1117 ft²
4 bedroom terraced house for sale in Princess Street, Scarborough, North Yorkshire, YO11 — £270,000 • 4 bed • 1 bath • 1174 ft²










































































