Spacious garden and garage in a peaceful suburban cul-de-sac.
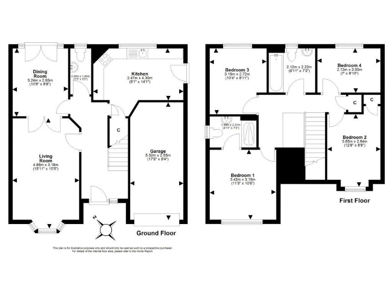
- Four bedrooms including principal with en-suite shower-room
- Bay-front living room providing strong natural light
- Dining room with French doors opening to the rear garden
- Large, fully enclosed child-friendly rear garden and patio/deck
- Integral single garage plus two-car driveway
- Modest total floor area (~870 sq ft) for a four-bed home
- Located in a quiet cul-de-sac within a comfortable suburb
- Wider area classified as very deprived; consider resale implications
This well-presented four-bedroom detached villa is arranged over two storeys and suits families seeking flexible living in a quiet cul-de-sac. The bay-front living room, separate dining room with French doors and a breakfasting kitchen give clear zones for daily life and entertaining. The principal bedroom benefits from an en-suite shower-room, and the home has modern neutral finishes throughout.
Externally the property offers a large, fully enclosed rear garden ideal for children and pets, plus an integral single garage and two-car driveway. Broadband speeds are fast and mobile signal is excellent, supporting home working and family connectivity. The house sits in a comfortable suburban development close to local schools and green spaces.
Buyers should note the overall internal area is modest (about 870 sq ft) for a four-bedroom home; rooms are well configured but not generous. The wider area is classified as very deprived, which may be a consideration for long-term resale or investment. The accommodation is largely move-in ready but offers scope for modest cosmetic updating to personalise the space.
This home will appeal to growing families who prioritise a private garden, off-street parking and well-defined living spaces in a suburban setting. Viewing is recommended to judge how the property’s compact footprint works for your household needs.
4 bedroom detached house for sale in 4 Ellis Street, Mortonhall, Edinburgh, EH17 8GD, EH17 — £450,000 • 4 bed • 2 bath • 1257 ft²
4 bedroom detached villa for sale in 62 Clark Avenue, Musselburgh, EH21 7FE, EH21 — £365,000 • 4 bed • 2 bath • 1017 ft²
4 bedroom semi-detached villa for sale in 37 Gladstone's Gait, Bonnyrigg, EH19 3GA, EH19 — £345,000 • 4 bed • 2 bath • 1474 ft²
4 bedroom detached house for sale in 14 Martin Street, Burdiehouse, Edinburgh, EH17 8GB, EH17 — £370,000 • 4 bed • 2 bath • 1172 ft²
4 bedroom detached house for sale in 4 Rosebank Place, Penicuik, EH26 0GD, EH26 — £365,000 • 4 bed • 3 bath • 1130 ft²
4 bedroom semi-detached house for sale in 29 Gilmerton Dykes Drive, Gilmerton, Edinburgh, EH17 8LD, EH17 — £230,000 • 4 bed • 1 bath • 1118 ft²






























































