**Standout Features:**
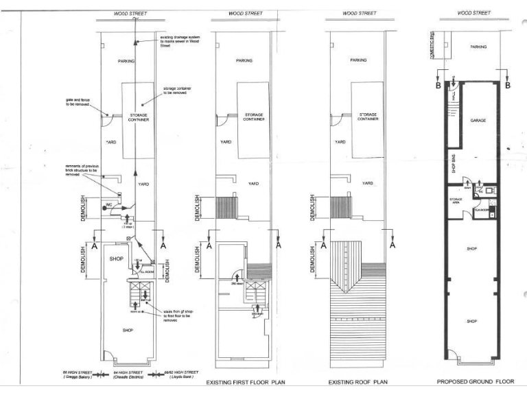
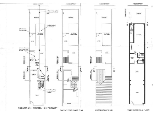
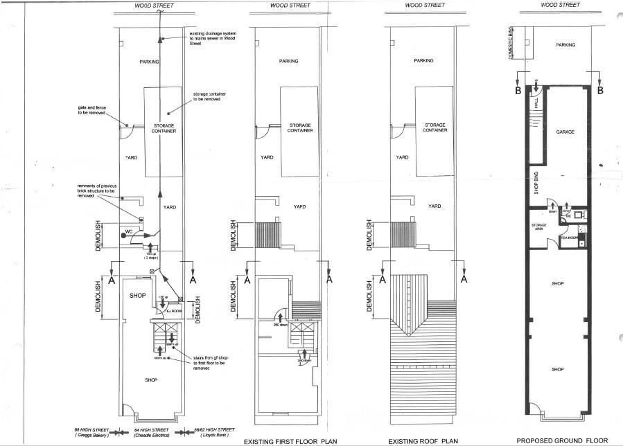
- Freehold retail shop with planning permission for a two-storey extension allowing for a potential two-bedroom flat above.
- Total size of 1,892 sq ft, making it an ample space for various retail ventures with potential living quarters.
- Off-street parking available, enhancing convenience for both customers and residents.
- Low crime area, signaling a safe environment for new families or business owners.
- Located in the vibrant heart of Cheadle Village, ideal for attracting foot traffic.
**Summary:**
Seize this rare investment opportunity in bustling Cheadle Village! This freehold retail shop, now available by auction, boasts planning permission (DC/059365) for a two-storey extension that could incorporate a two-bedroom apartment above the commercial space. Already inspected and with works initiated, it offers potential buyers the chance to revitalize and complete the project, creating a sought-after living and retail space. The ground floor features a spacious shop area, plus plans for essential facilities such as a kitchenette/toilet and storage solutions. Excellent accessibility to Manchester City Centre and major motorways will ensure your venture can thrive.
The property is situated in an affluent neighborhood, close to amenities and well-rated schools, appealing to both families and professionals. While the compact size of the existing retail space and the need for completion could challenge some buyers, this presents a unique chance to cultivate a tailored property in a desirable community. Don't miss out—opportunities like this are rare!



















