Move-in ready three-bed with countryside outlook and private parking.
- Recently modernised and extended to create open-plan kitchen/diner
- Elevated position with far-reaching town and countryside views
- Two double bedrooms plus one single; one family bathroom only
- Long driveway, stone-chipped parking and single garage
- Low-maintenance rear garden and terraced front lawn
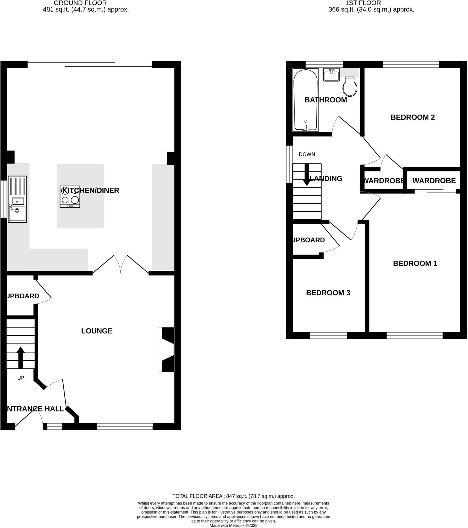
- Small plot size; compact overall at approximately 847 sq ft
- Mains gas heating, double glazing; EPC rated D
- Excellent mobile signal and fast broadband; no flood risk
Occupying an elevated position at the end of a quiet cul-de-sac, this recently modernised three-bedroom semi-detached house combines contemporary living with broad countryside views. The single-storey rear extension creates a bright open-plan kitchen/diner with a central island and sliding doors that connect directly to a low-maintenance garden — ideal for everyday family life and casual entertaining.
The accommodation includes two double bedrooms and a single bedroom served by a sleek three-piece bathroom. Practical features include a long driveway with stone-chipped parking for several vehicles, access to a single garage, mains gas central heating with boiler and radiators, double glazing, and fast broadband with excellent mobile signal — all useful for modern family routines and home working.
Considerations are straightforward: the home sits on a small plot and has a single family bathroom, and the EPC is rated D. The property is compact at around 847 sq ft but has been thoughtfully remodelled to maximise space and natural light. Located close to open fields, Herne Hill nature reserve and local schools, it offers an attractive balance of town convenience and countryside access for families seeking a move-in ready home.
3 bedroom semi-detached house for sale in Lower Meadow, Ilminster, TA19 — £275,000 • 3 bed • 2 bath • 838 ft²
3 bedroom semi-detached house for sale in Adams Meadow, Ilminster, Somerset, TA19 — £285,000 • 3 bed • 2 bath • 783 ft²
3 bedroom end of terrace house for sale in Adams Meadow, Ilminster, Somerset, TA19 — £265,000 • 3 bed • 2 bath • 850 ft²
3 bedroom terraced house for sale in Listers Hill, Ilminster, Somerset, TA19 — £240,000 • 3 bed • 1 bath • 1175 ft²
3 bedroom detached house for sale in Bay Hill, Ilminster, Somerset, TA19 — £895,000 • 3 bed • 3 bath • 2418 ft²
4 bedroom detached house for sale in Herne Rise, Ilminster, TA19 — £425,000 • 4 bed • 2 bath • 1556 ft²


















































































