Chain-free three-bed semi near West Bay — parking, garden and easy coastal access..
Three bedrooms with practical family layout
Short, level walk to West Bay beach and amenities
Rear garden with pedestrian gate to two parking spaces
Freehold and sold chain free
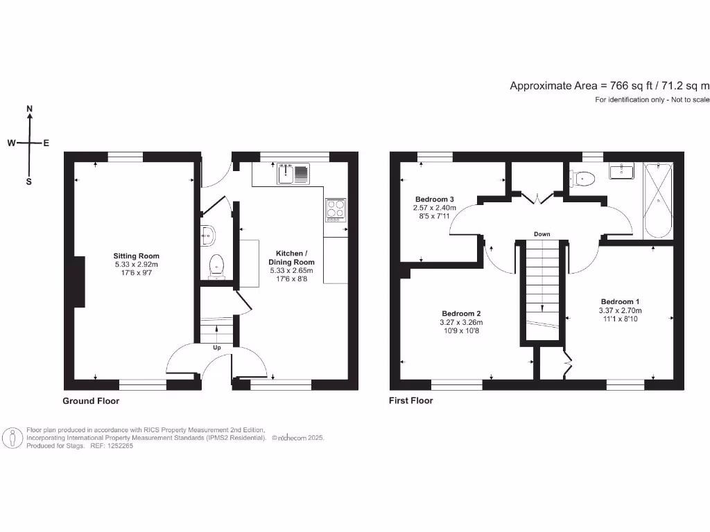
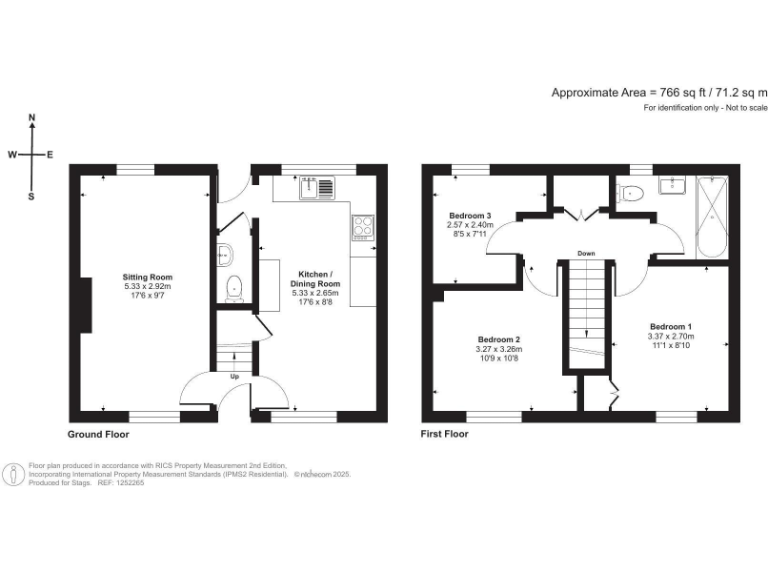
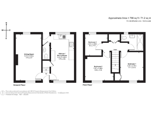
Modest overall size — c.766 sq ft
Single family bathroom — may limit larger families
EPC C; gas central heating and double glazing
Average broadband and mobile signal speeds
Set just a short, level walk from West Bay and local amenities, this three-bedroom semi offers comfortable, modern family living in a quiet residential pocket. Built around 2000, the home benefits from double glazing, gas central heating and an EPC C rating, so running costs are reasonable and upkeep is low. The ground floor features a kitchen/breakfast room, downstairs WC and a welcoming sitting room for everyday family life.
Upstairs are three bedrooms and a single family bathroom — a practical layout for a young family or couple needing flexible space. The rear garden is mainly lawned and has a pedestrian gate opening onto two private off-street parking spaces, a useful convenience in this popular coastal area.
Practical positives include freehold tenure, no onward chain and proximity to schools, shops and the West Bay coast and cycle path. Broadband and mobile signals are average; this will suit most household needs but may not meet specialist home-working demands without checking providers.
Important considerations: the property is modest in total size (about 766 sq ft) with one bathroom, which may feel tight for larger families. The plot and garden are small, and the interior decor is functional rather than recently updated — buyers seeking a turnkey, high-spec finish should factor in updating costs. Overall this is a straightforward, low-maintenance coastal family home with good local facilities.
3 bedroom semi-detached house for sale in Buttercup Way, Bridport, DT6 — £325,000 • 3 bed • 1 bath • 753 ft²
2 bedroom semi-detached house for sale in Bramble Drive, Bridport, Dorset, DT6 — £280,000 • 2 bed • 1 bath • 724 ft²
3 bedroom semi-detached house for sale in West Bay, DT6 — £350,000 • 3 bed • 1 bath • 621 ft²
3 bedroom detached bungalow for sale in West Walk, West Bay, Bridport, DT6 — £475,000 • 3 bed • 1 bath • 932 ft²
3 bedroom detached house for sale in West Bay Road, Bridport, DT6 — £550,000 • 3 bed • 1 bath • 1351 ft²
3 bedroom semi-detached house for sale in West Bay Road, Bridport, Dorset, DT6 — £475,000 • 3 bed • 1 bath • 1122 ft²


































































