Bright conservatory, private garden backing open countryside and double garage.
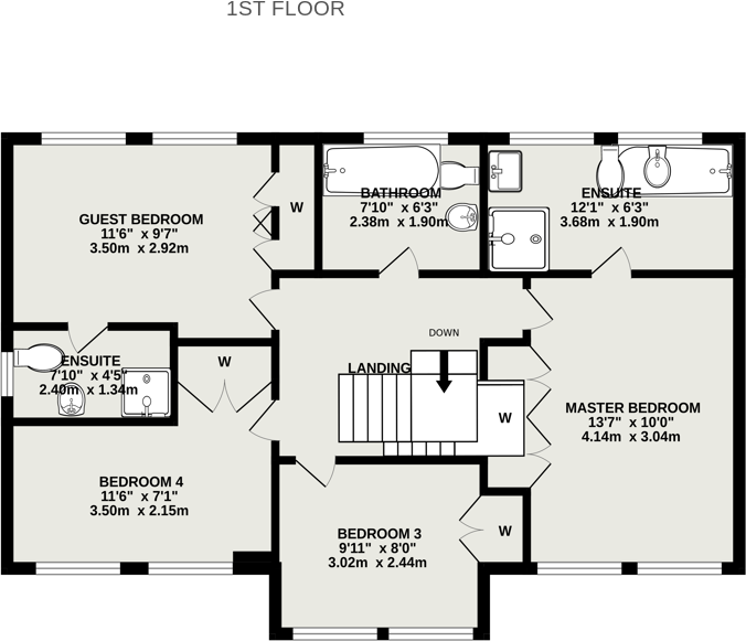
Six bedrooms across three floors, including two ensuite bathrooms
Set at the end of a quiet cul-de-sac in Waterleaze, this three-storey executive detached home offers flexible living across approximately 937 sq ft with six bedrooms and three bathrooms. The dual-aspect lounge opens into a large conservatory, creating bright family living that flows onto an enclosed rear garden backing onto open countryside — ideal for outdoor play and summer entertaining.
The kitchen and adjoining dining area are modern and well fitted, with integrated appliances and good storage. Practical features include two ensuites, a separate ground-floor study, a downstairs WC, double glazing, gas central heating and a double garage with additional driveway parking. The property is offered chain free and benefits from excellent mobile signal and fast broadband for home working and schooling needs.
Notable practical points: the listing records the overall size as small relative to the number of rooms, so rooms may be more compact than the number of bedrooms suggests. Council tax is described as expensive. The house sits in a comfortable suburban area with good primary schools nearby; some local secondary schools have weaker Ofsted outcomes, so check catchment and transport options if that matters.
In short, this home suits a growing family needing multiple bedrooms, flexible downstairs space and a private garden with countryside views. It presents immediate move-in readiness with scope to personalise over time, and its location gives easy access to Taunton’s amenities, the M5 and rail links.
4 bedroom detached house for sale in Kings Close, Taunton, Somerset, TA1 — £750,000 • 4 bed • 3 bath • 2166 ft²
4 bedroom detached house for sale in St. Quintin Park, Bathpool, Taunton, TA2 — £495,000 • 4 bed • 3 bath • 1507 ft²
4 bedroom detached house for sale in Peile Drive - North Taunton, TA2 — £475,000 • 4 bed • 2 bath • 917 ft²
6 bedroom detached house for sale in Healys Meadow, Cotford St. Luke, Taunton, Somerset, TA4 — £525,000 • 6 bed • 3 bath • 2151 ft²
6 bedroom detached house for sale in Hopkins Field, Creech St. Michael, TA3 — £525,000 • 6 bed • 2 bath • 2357 ft²
4 bedroom detached house for sale in Derham Close, Creech St. Michael, Taunton, TA3 — £600,000 • 4 bed • 3 bath • 1679 ft²














































































































