Affordable Harrow flat with private garden and parking, ideal for first-time buyers.
- Two double bedrooms, master with en-suite
- Private south-facing rear patio garden
- Private off-road parking directly to front
- Direct ground-floor front-door access
- Ventilation system, double glazing, gas central heating
- Leasehold with 111 years remaining
- Broadband speeds in area are slow
- Area classified as deprived; average local crime
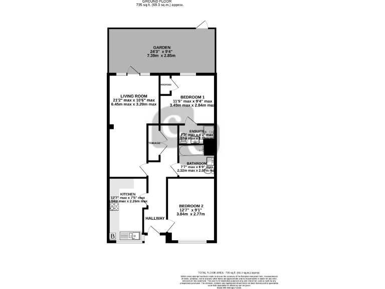
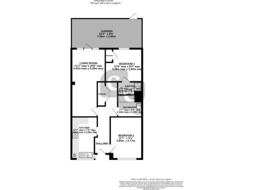
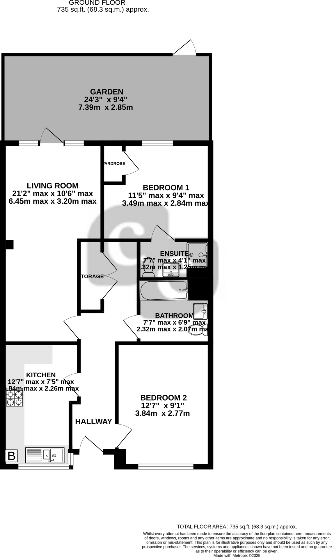
This ground-floor, two-double-bedroom flat offers practical living with direct front-door access and a rare private south-facing patio — a useful outdoor space for morning sun and potted plants. The master bedroom includes an en-suite, and the open-plan living area links to the fitted kitchen for straightforward everyday living or entertaining.
Practical comforts are in place: gas central heating, double glazing, a whole-property ventilation system and private off-road parking to the front. The building provides secure gated communal bike and bin stores, and overall room sizes are average for a modern low-rise block, making upkeep manageable for a first-time buyer.
Important facts to note: the property is leasehold with 111 years remaining and broadband speeds in the area are slow. The immediate neighbourhood scores as a more deprived area with average crime levels — factors to consider for resale or rental prospects. The flat was built in the 1980s and has contemporary external finishes; internal redecoration may be required to personalise the space.
For a buyer seeking an affordable entry into Harrow with private outdoor space and parking, this flat represents straightforward value. It suits those prioritising low-maintenance, direct access living and proximity to local shops, schools and transport links, while accepting the practical limits of footprint, area broadband and the leasehold tenure.
2 bedroom flat for sale in Greenhill Road, Harrow, HA1 — £400,000 • 2 bed • 2 bath • 654 ft²
2 bedroom flat for sale in Collapit Close, Harrow, HA1 — £375,000 • 2 bed • 2 bath • 633 ft²
2 bedroom apartment for sale in Roxborough Avenue, Harrow, HA1 — £350,000 • 2 bed • 1 bath • 535 ft²
2 bedroom apartment for sale in Neptune Road, Harrow, HA1 — £350,000 • 2 bed • 1 bath • 570 ft²
2 bedroom apartment for sale in Langton House, Cottage Close, Harrow, HA2 — £425,000 • 2 bed • 2 bath • 850 ft²
2 bedroom apartment for sale in Lawrie Court, Harrow, Middlesex, HA3 — £300,000 • 2 bed • 1 bath • 603 ft²






































































