**Standout Features:**
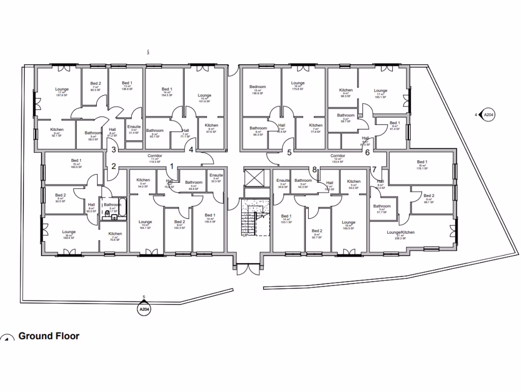
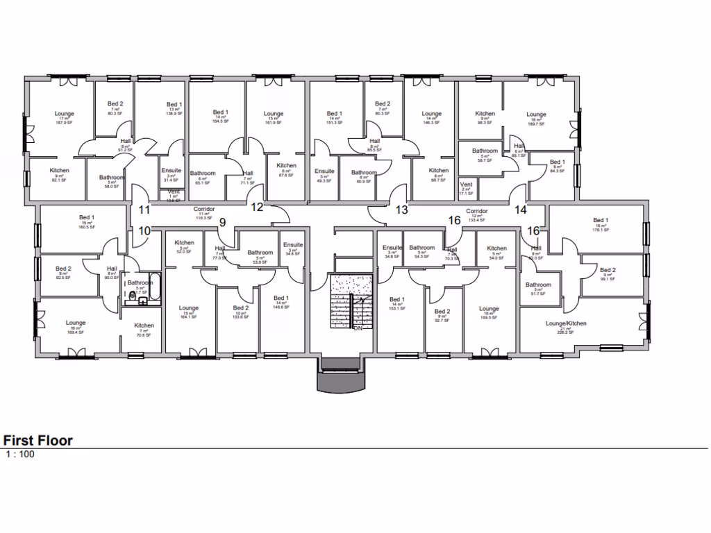
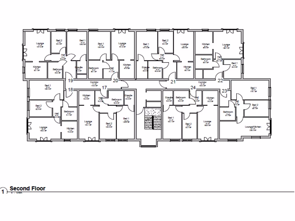
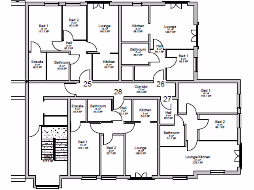
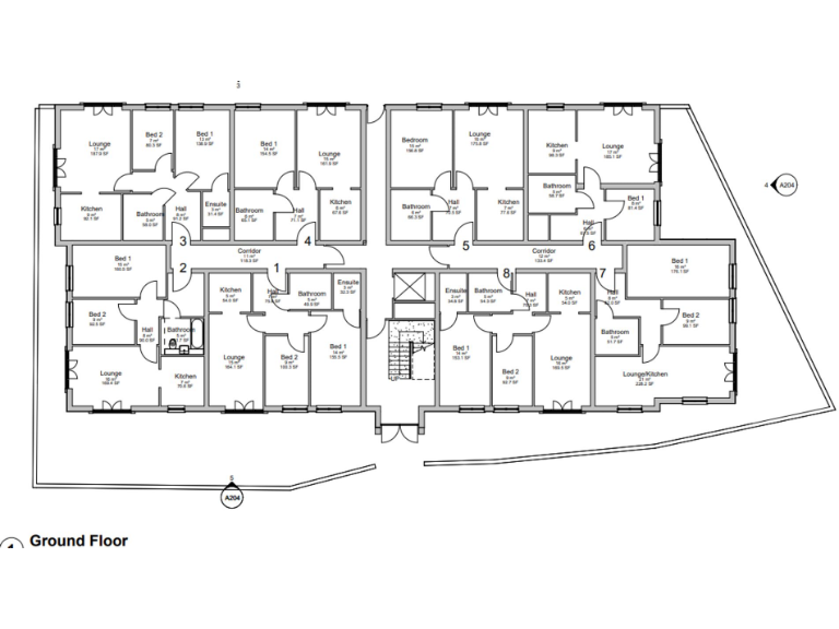
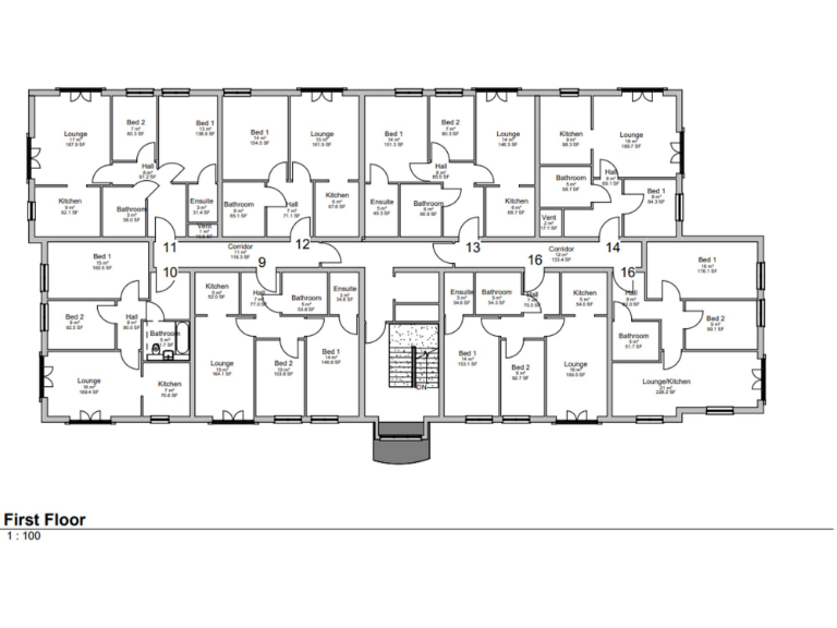
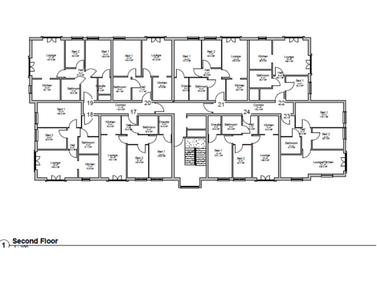
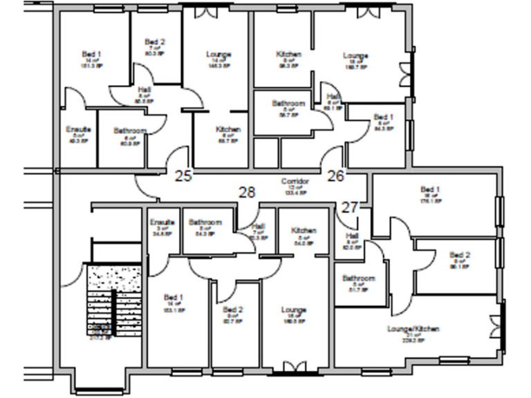
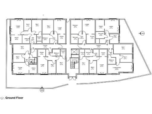
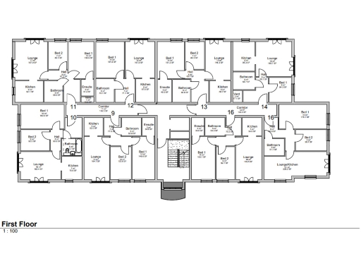
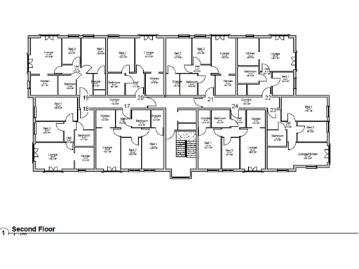
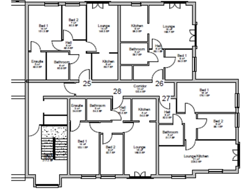
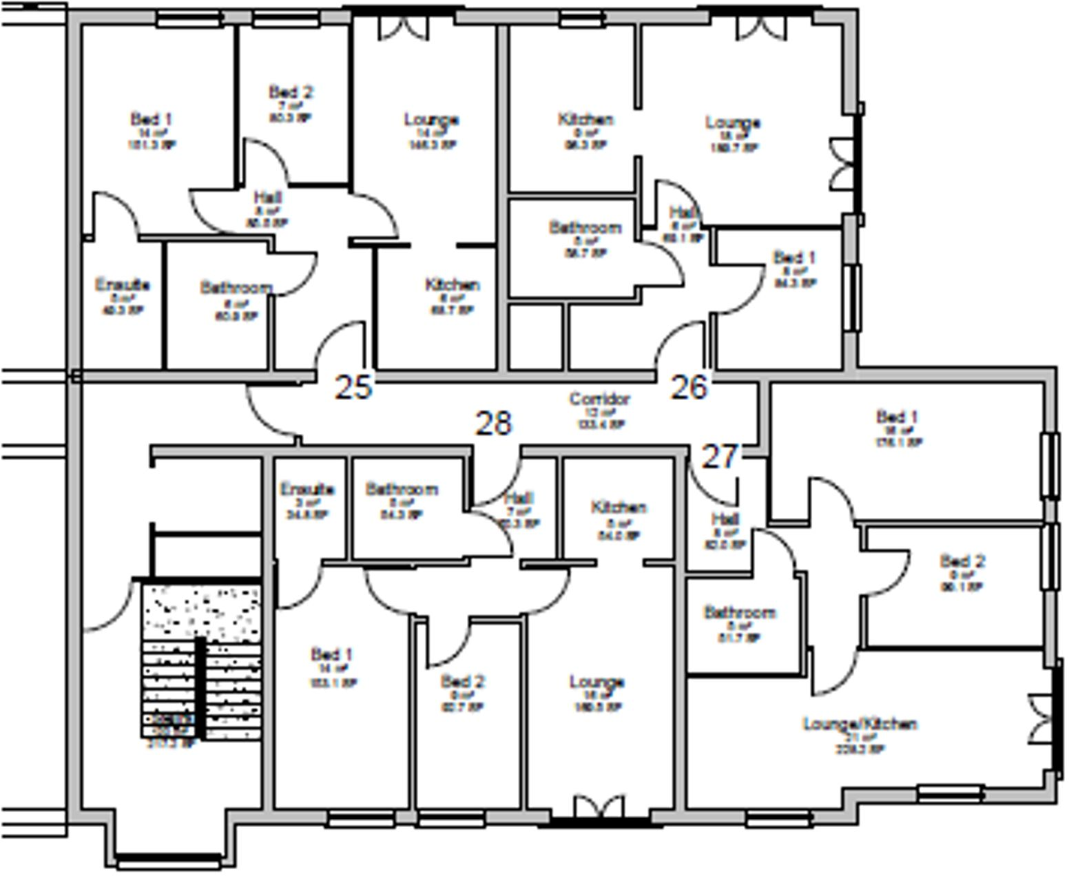
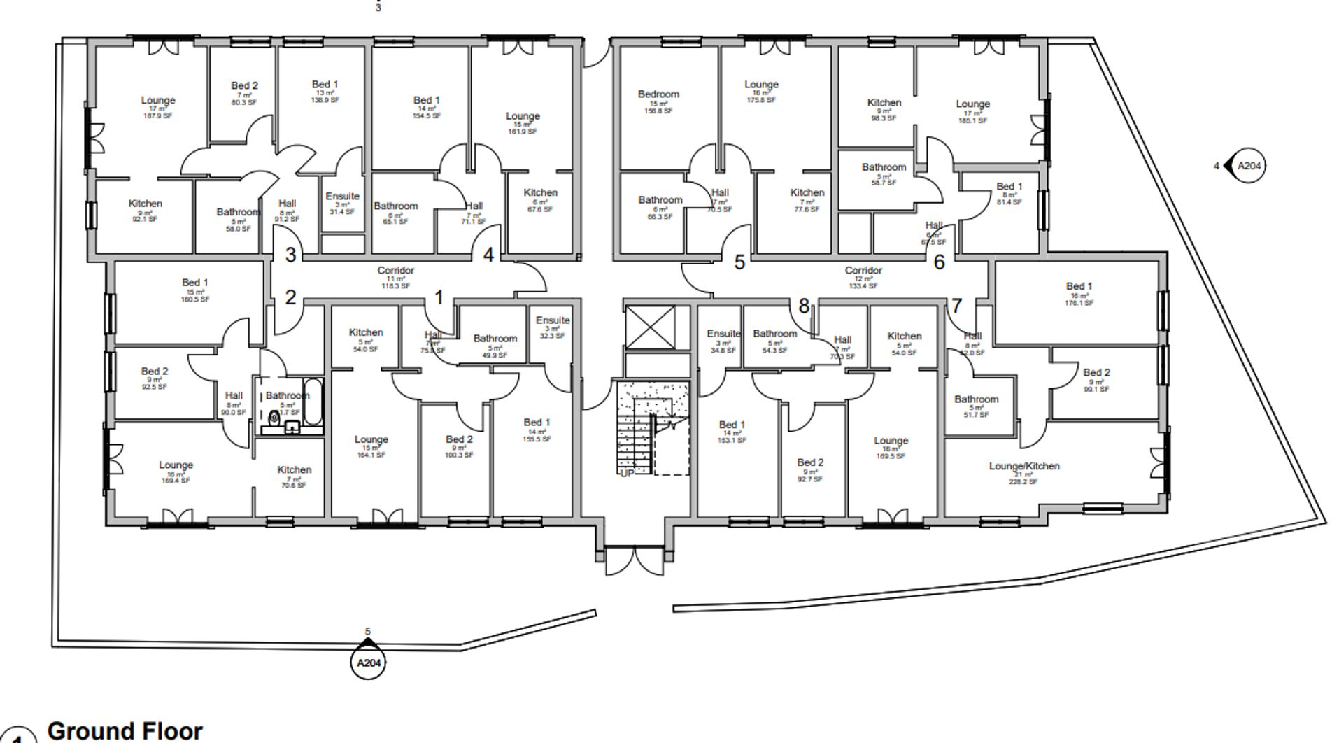
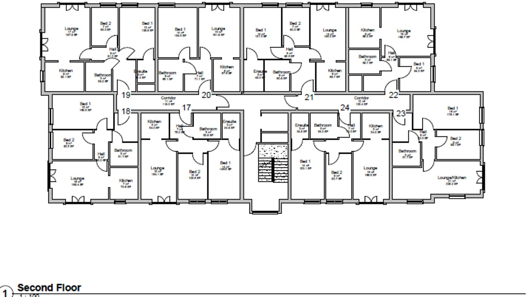
- **Planning Permission:** Approved scheme for 28 new apartments (21 x 2 bedrooms and 7 x 1 bedroom).
- **Freehold Property:** Ownership of the land without ongoing lease obligations.
- **Sizeable Development Potential:** Current site measures approximately 3,101 sq ft.
- **Urban Convenience:** Located within walking distance to the town's commercial center and excellent public transport.
- **Chain-Free Sale:** Quick transaction possible.
**Notable Concerns:**
- **Current Condition:** Site is a redundant warehouse, some demolition has occurred; will require redevelopment.
- **High Crime Rate:** Important for potential investors and families to consider safety.
- **Deprivation Score:** Area classified as very deprived, which may influence rental yields and resale value.
Transform this underutilized warehouse into a lucrative opportunity with granted planning permission for a modern development of 28 residential apartments. Spanning over 3,100 sq ft, this freehold site presents a rare blend of investment potential amid a mixed-use urban area. Envision the possibility of crafting comfortable homes near essential amenities, including schools, restaurants, and leisure facilities. While the local area faces high crime rates and economic challenges, the excellent mobile and broadband connectivity offers a compelling draw for future residents. Don’t miss your chance to be part of a rejuvenation in this vibrant locale—viewings are by appointment only, so act quickly to secure your future in this promising development project.















































