TR2 5LR - 3 bedroom cottage for sale in Roseland Pensinsula, TR2

View on Property Piper

3 bedroom cottage for sale in Roseland Pensinsula, TR2

Summary - ROSE COTTAGE RUAN HIGH LANES TRURO TR2 5LR

3 bed 1 bath Cottage

**Highlights:**
- **Charming Grade II Listed Cottage** in Roseland Peninsula
- **Three spacious bedrooms** with stunning period features
- **Private, expansive gardens** on a quarter-acre plot, perfect for family living
- **Substantial double garage** and off-road parking for multiple vehicles
- **Potential for renovation**, with lapsed planning permission for a garden room
- **Tranquil countryside setting**, just over a mile from the south Cornish coast

Discover the enchanting "Pen Pol," a beautifully presented Grade II listed cottage that marries historic charm with modern conveniences. Tucked away in a serene hamlet of the Roseland Peninsula, this three-bedroom family home features stunning inglenook fireplaces, exposed wooden beams, and solid oak doors throughout. With an impressive 1,680 square feet of living space, the well-proportioned rooms offer ample comfort. The property is surrounded by lush gardens that bask in sunshine and ensure complete privacy, ideal for outdoor entertaining or simply enjoying the tranquil countryside air.

While the cottage is in delightful condition, it does present a unique opportunity for future enhancements, as planning permission was previously granted for a garden room, which could further elevate its appeal and value. Conveniently located near beautiful beaches and charming local amenities, this property balances peaceful rural living with easy access to coastal adventures. With no chain, now is the perfect time to seize this rare opportunity to create your dream home in one of Cornwall's most sought-after areas.

Property Details

Brochure Descriptions

Image Descriptions

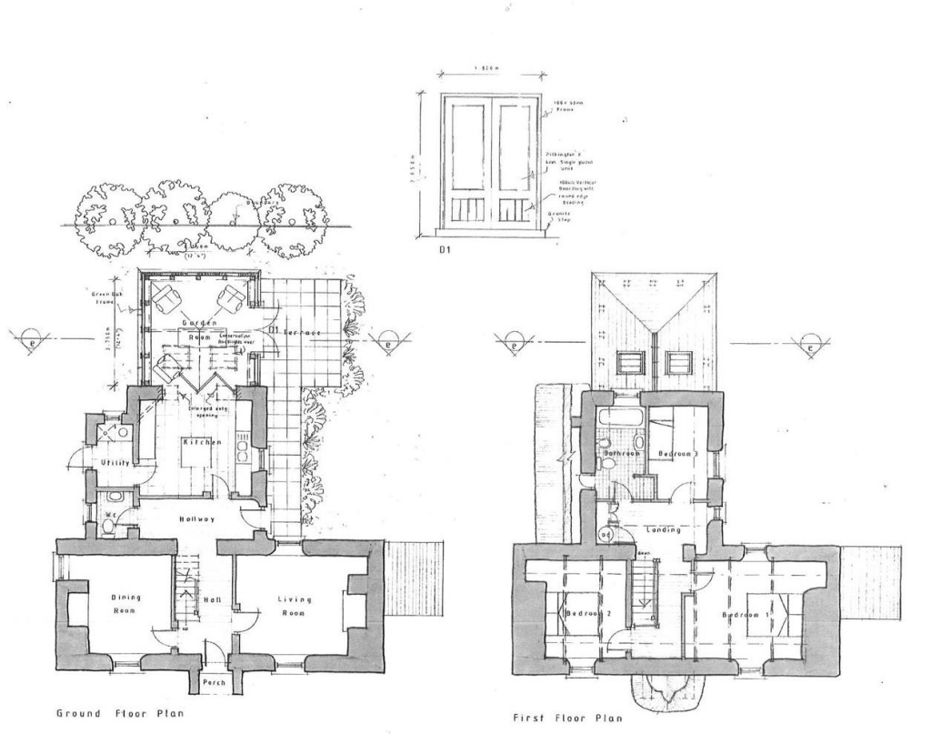
Floorplan Description

Rooms

Textual Property Features

Detected Visual Features

EPC Details

Nearby Schools

Nearest Bars And Restaurants

,,,,}

Nearest General Shops

,,}

Nearest Grocery shops

,,}

Nearest Supermarkets

,,}

Nearest Religious buildings

,,}

Nearest Medical buildings

,,,}

Nearest Leisure Facilities

,,,,}

Nearest Tourist attractions

,,}

Nearest Train stations

,,,,}

Nearest Bus stations and stops

,,,,}

Nearest Hotels

,,}

Tags

Local Market Stats

AirBnB Data

Similar Properties

Meta

High Res Images

Compatible Images

Low res Images

Thumbnails

Raw Images

High Res Floorplan Images

Compatible Floorplan Images

Low res Floorplan Images

FloorplanImages Thumbnail

Raw Floorplan Images