Characterful two-bed home with parking and quick Sunbury station access.
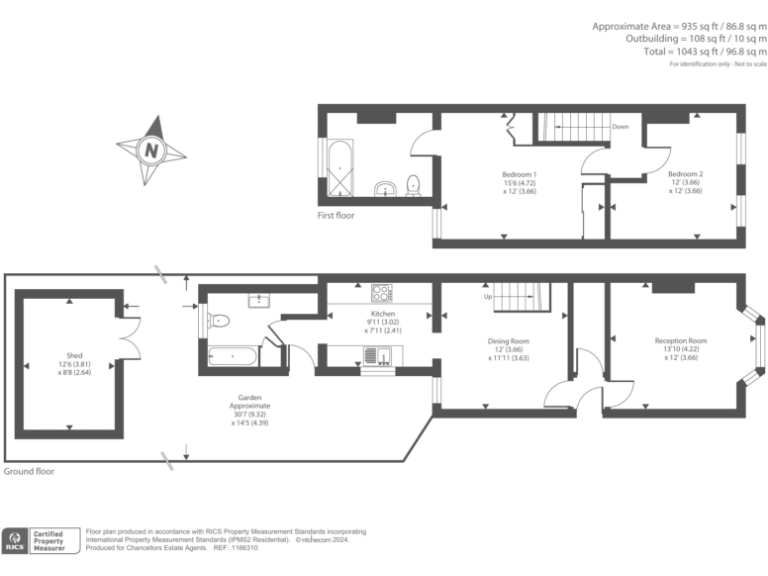
- Two double bedrooms and two bathrooms
- Two reception rooms, traditional Victorian layout
- Approximately 1,043 sq ft of living space
- Off-street parking and private, low-maintenance garden
- Double glazing installed after 2002; mains gas heating
- Solid brick walls with no assumed insulation (energy upgrade likely)
- Small plot size; compact garden and footprint
- Nearby schools mixed; some highly rated, one secondary rated inadequate
A compact Victorian semi-detached cottage offering characterful living in central Sunbury-on-Thames. The house includes two double bedrooms, two reception rooms and two bathrooms across a generous 1,043 sq ft, making it a practical home for first-time buyers or those wanting easy commuter access. Off-street parking and a private, low-maintenance garden add convenience for everyday life.
The property sits close to Sunbury mainline station, local shops, bus routes and a range of primary and secondary schools. Local amenities are plentiful and broadband and mobile signal are strong, supporting home working and family connectivity. Internal double glazing was installed after 2002 and heating is by mains gas boiler and radiators.
Buyers should note a few practical considerations: the house is built with original solid brick walls with no listed insulation (likely lower thermal efficiency), the plot is small, and some updating or insulating work may be required to improve energy performance. School options nearby are mixed—several good primaries and an outstanding secondary are within reach, though Sunbury Manor School is rated inadequate. Tenure is freehold and flood risk is low.
2 bedroom semi-detached house for sale in French Street, Sunbury-On-Thames, TW16 — £499,950 • 2 bed • 2 bath • 1041 ft²
3 bedroom semi-detached house for sale in Sunbury-on-Thames, Surrey, TW16 — £500,000 • 3 bed • 2 bath • 1076 ft²
3 bedroom semi-detached house for sale in Green Lane, Sunbury-on-Thames, Surrey, TW16 — £525,000 • 3 bed • 2 bath • 990 ft²
4 bedroom semi-detached house for sale in Priory Close, Sunbury-On-Thames, TW16 — £585,000 • 4 bed • 2 bath • 1329 ft²
2 bedroom terraced house for sale in Laytons, Sunbury-On-Thames, TW16 — £385,000 • 2 bed • 1 bath • 619 ft²
2 bedroom terraced house for sale in Springfield Grove, Sunbury-On-Thames, TW16 — £560,000 • 2 bed • 1 bath • 786 ft²










































