**Standout Features:**
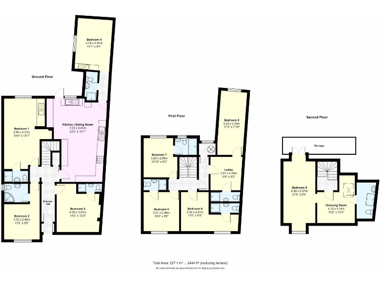
- Substantial HMO property with 9 bedrooms and 9 bathrooms
- Expansive layout over three floors, totaling 2,444 sq ft (227.1 sq m)
- Modern kitchen/dining area with integrated appliances
- Impressive principal bedroom suite with terrace, dressing room, and en suite
- Enclosed rear garden and off-street parking for two vehicles
- NO ONWARD CHAIN—ideal for quick acquisition
- Current rental income: £98,400 per annum
- Located in the desirable Petersfield area, within walking distance to amenities and transport links
This remarkable HMO property, nestled in the desirable Petersfield area of Cambridge, offers an excellent investment opportunity or the potential for conversion back to a traditional family home. Spanning three generous floors, this semi-detached Victorian residence combines modern living with classic charm, featuring an open-concept kitchen/dining area equipped with contemporary appliances, ample space, and the luxurious principal bedroom suite on the second floor.
With nine bedrooms and nine bathrooms, it meets the demands of rental needs while providing future owners with flexibility for renovations and personalization, subject to approvals. The property boasts a well-sized enclosed rear garden, off-street parking for two vehicles, and is conveniently located just 0.5 miles from the city center and 1 mile from the mainline railway station. The absence of a forward chain adds to the appeal, making it an enticing opportunity not to be missed, especially for savvy investors or families looking to relocate to this affluent area. Don’t miss out on the chance to secure this promising property!
7 bedroom town house for sale in Hertford Street, Cambridge, CB4 — £1,000,000 • 7 bed • 5 bath • 2335 ft²
9 bedroom detached house for sale in Brooks Road, Cambridge, CB1 — £1,250,000 • 9 bed • 8 bath • 2259 ft²
7 bedroom house of multiple occupation for sale in Elizabeth Way,Cambridge, CB4 — £800,000 • 7 bed • 5 bath • 1259 ft²
6 bedroom terraced house for sale in Apthorpe Way, Cambridge, CB4 — £425,000 • 6 bed • 2 bath • 990 ft²
5 bedroom terraced house for sale in Elizabeth Way, CB4 — £650,000 • 5 bed • 2 bath • 1451 ft²
House for sale in Chesterton Road, Cambridge, Cambridgeshire, CB4 — £1,100,000 • 1 bed • 1 bath • 2631 ft²


























































