Practical three-bed family home with parking, garden and extension potential (STPP)..
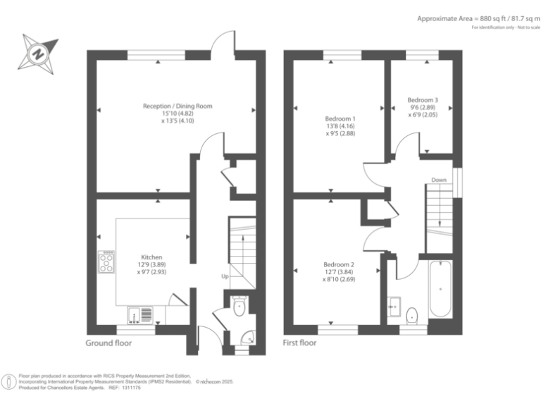
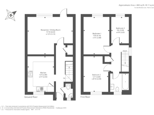
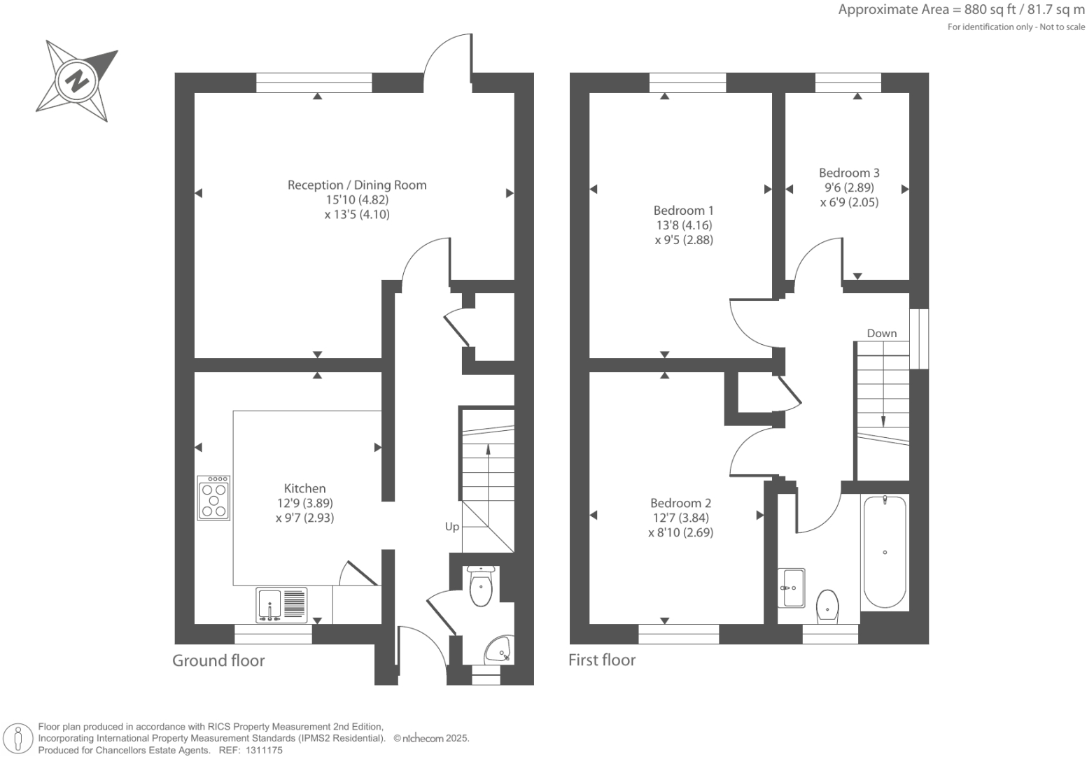
Chain-free three-bedroom end-of-terrace, approx. 880 sq ft
A well-presented three-bedroom end-of-terrace in SL2, offered chain-free and ready for immediate occupation. The property provides practical family living across approximately 880 sq ft with a ground-floor WC, separate reception rooms and a kitchen with breakfast space. A usable loft room adds flexibility for storage or a home office.
Outdoors there is a private rear garden and off-street parking directly to the front — convenient for families or commuters. The house benefits from double glazing, mains gas central heating and fast broadband and mobile signal, making it suitable for modern working-from-home routines.
There is scope to extend subject to planning permission (STPP), which will appeal to buyers wanting more ground-floor living or to add value. Note the plot is small and the property has a single family bathroom, so expanding accommodation may be necessary for larger households.
The local area is an urban cultural mix with good access to nearby schools (several rated Good) and regular bus links. The neighbourhood shows higher deprivation indices; crime is average. Buyers should weigh the location’s affordability and potential for improvement against local area challenges.
3 bedroom end of terrace house for sale in Slough, SL2, SL2 — £475,000 • 3 bed • 2 bath • 1223 ft²
3 bedroom terraced house for sale in Newchurch Road, Slough, SL2 — £415,000 • 3 bed • 1 bath • 947 ft²
3 bedroom terraced house for sale in Cumberland Avenue, SLOUGH, SL2 — £425,000 • 3 bed • 1 bath • 582 ft²
3 bedroom terraced house for sale in Slough, Berkshire, SL3 — £400,000 • 3 bed • 2 bath • 731 ft²
2 bedroom terraced house for sale in Cooper Way, Cippenham, Slough, SL1 — £400,000 • 2 bed • 1 bath • 668 ft²
3 bedroom semi-detached house for sale in Slough, Berkshire, SL2 — £475,000 • 3 bed • 2 bath • 1300 ft²






































































