IP20 9QW - 4 bed rural riverside bungalow in Redenhall, IP20 9QW

View on Property Piper

4 bedroom detached bungalow for sale in Redenhall, Harleston, IP20

Summary - HARROWBY REDENHALL HARLESTON IP20 9QW

4 bed 2 bath Detached Bungalow

Turnkey single-storey home with annexe potential and extensive gardens.
Generous 0.38-acre plot with field and river views
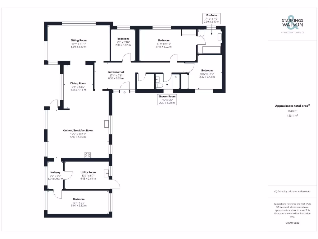
Set on a generous 0.38-acre plot on the edge of Harleston, this newly renovated four-bedroom detached bungalow combines contemporary finish with peaceful rural outlooks. The heart of the home is a large open-plan kitchen, dining and sitting area with quartz worktops, an island breakfast bar and integrated appliances — designed for relaxed family life and entertaining. Dual-aspect living rooms and large windows frame enchanting field and river views to the rear.

Accommodation is flexible: three bedrooms plus a fourth bedroom/reception room, two bathrooms (one ensuite), a substantial utility room and separate entrance points that create clear annexe potential if required. Modern comforts include underfloor heating, gas-fired boiler, recent double glazing and a C-rated EPC. The grounds are fully landscaped and include multiple outbuildings, summer houses, paved terraces and ample driveway parking behind secure five-bar gates.

Practical considerations are straightforward and important to note. The property sits in a rural hamlet with very slow broadband and average mobile signal — worth factoring in for home working. Drainage is private (Klargester) and there is a recorded historic flood event locally in winter 2020 caused by a blocked sluice; the issue has been addressed but the area carries a medium flood risk. Council tax is above average for the area.

This bungalow will suit buyers seeking a spacious, single-storey home with turnkey presentation, countryside privacy and development flexibility. It also offers potential for an investor or multi-generational family looking for an annexe-style arrangement, subject to planning and adaptation where required.

Property Details

Brochure Descriptions

Image Descriptions

Floorplan Description

Rooms

Textual Property Features

Target Audience

AI Tags

Detected Visual Features

EPC Details

Nearby Schools

Nearest Bars And Restaurants

,,,,}

Nearest General Shops

,,}

Nearest Grocery shops

,,}

Nearest Supermarkets

,,}

Nearest Religious buildings

,,}

Nearest Medical buildings

,,,}

Nearest Leisure Facilities

,,,,}

Nearest Tourist attractions

,,}

Nearest Train stations

,,,,}

Nearest Bus stations and stops

,,,,}

Nearest Hotels

,,}

Tags

Local Market Stats

Similar Properties

Meta

High Res Images

Compatible Images

Low res Images

Thumbnails

Raw Images

High Res Floorplan Images

Compatible Floorplan Images

Low res Floorplan Images

FloorplanImages Thumbnail

Raw Floorplan Images