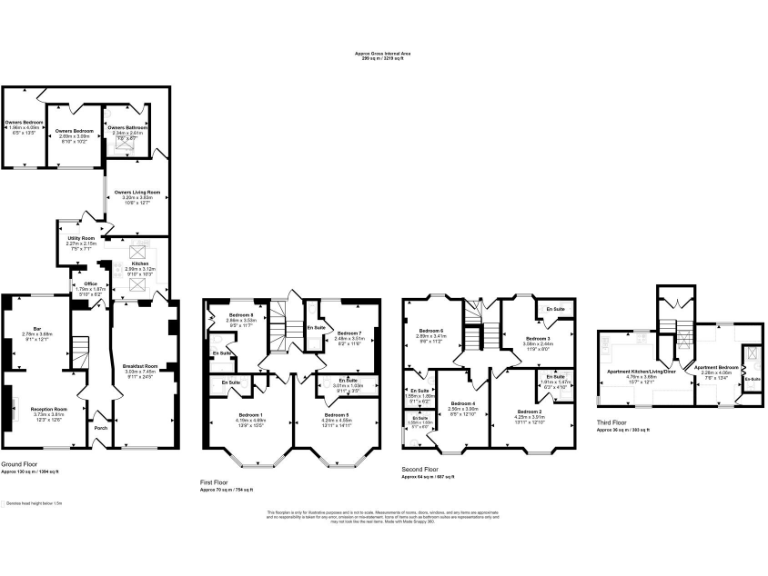
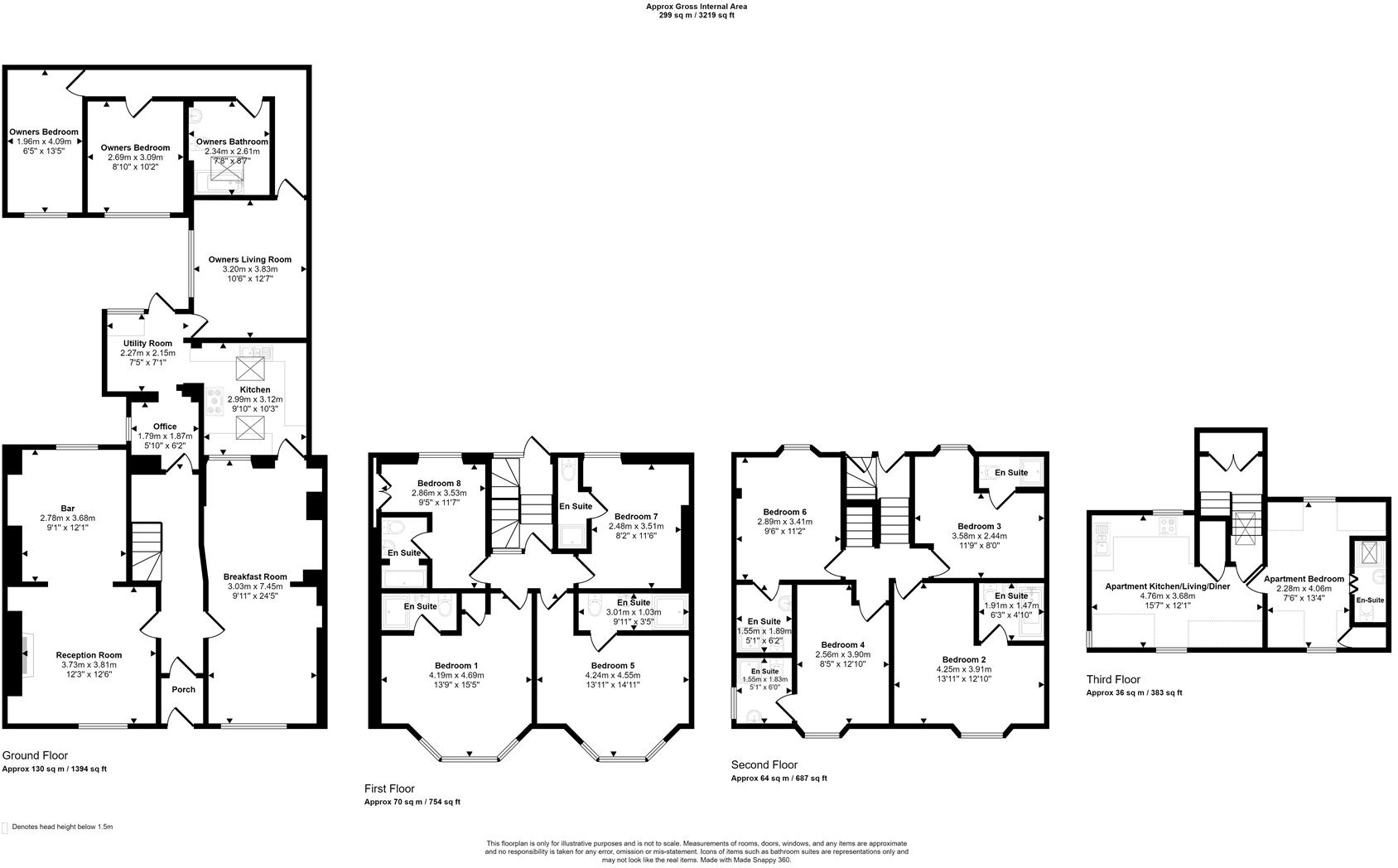
**Standout Features:**
- Eight en-suite letting bedrooms
- Prime location in Tenby, just moments from sandy beaches
- Planning approved for conversion into five residential apartments
- Two separate owners/managers apartments
- Established licensed Bed & Breakfast with loyal repeat clientele
- Characterful period features throughout, including beautiful cornicing and bay windows
- Sea views from select rooms
**Summary:**
Discover Myrtle House Hotel, a charming Grade II listed guest house situated in the heart of Tenby on St. Marys Street. With eight beautifully presented en-suite letting rooms and a successful track record of repeat business, this property offers an exciting opportunity for both seasoned investors and aspiring hospitality entrepreneurs. Its prime coastal location ensures strong seasonal demand, benefiting from the allure of nearby sandy beaches and vibrant local amenities.
The property is tailor-made for expansion, with approved planning permissions for the conversion into five residential apartments, adding to its versatility. Currently, two self-contained owner accommodations provide comfort and privacy, yet ample potential remains for enhancing guest facilities or further development. While the structure is historic and may present some renovation constraints, the charming features, including stunning bay windows and characterful details, promise a unique atmosphere that attracts visitors year-round.
Myrtle House Hotel represents a lucrative lifestyle change or investment opportunity in a sought-after location along Pembrokeshire's stunning coastline. Schedule your internal viewing today to fully appreciate the potential this property has to offer!
12 bedroom guest house for sale in Victoria Street, Tenby, SA70 — £550,000 • 12 bed • 11 bath • 506 ft²
15 bedroom hospitality facility for sale in Tenby, Pembrokeshire - Former Hotel With Scope For Holiday Lets/airbnb In Sought After Village Location, SA70 — £695,000 • 15 bed • 1 bath
29 bedroom hotel for sale in St Brides Hill, Saundersfoot, SA69 — £1,500,000 • 29 bed • 29 bath
4 bedroom character property for sale in High Street, Tenby - Commercial and Residential Building, SA70 — £1,250,000 • 4 bed • 4 bath • 4068 ft²
3 bedroom property for sale in St. Georges Street, Tenby, SA70 — £875,000 • 3 bed • 5 bath • 947 ft²
8 bedroom terraced house for sale in Warren Street, Tenby, SA70 — £445,000 • 8 bed • 2 bath • 1699 ft²














































































































































































