Bright modern flat with balcony and easy transport access for city commuters.
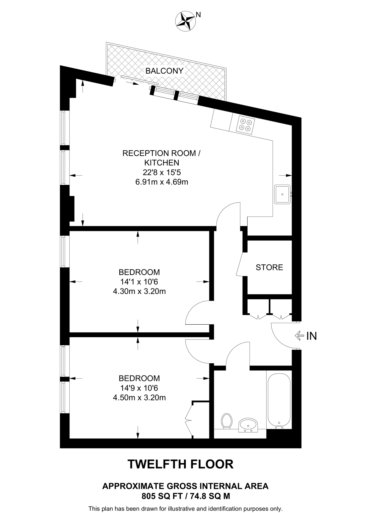
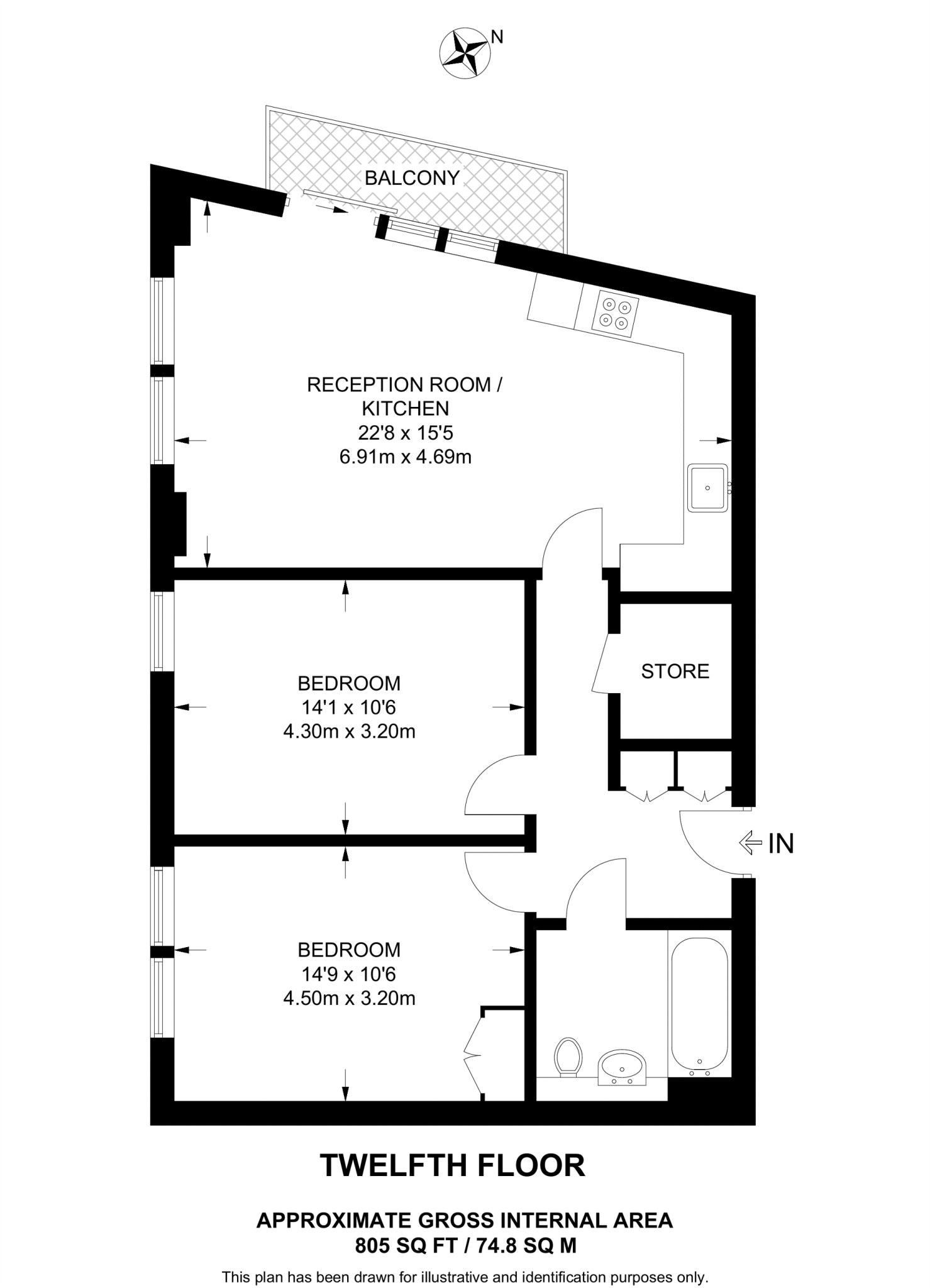
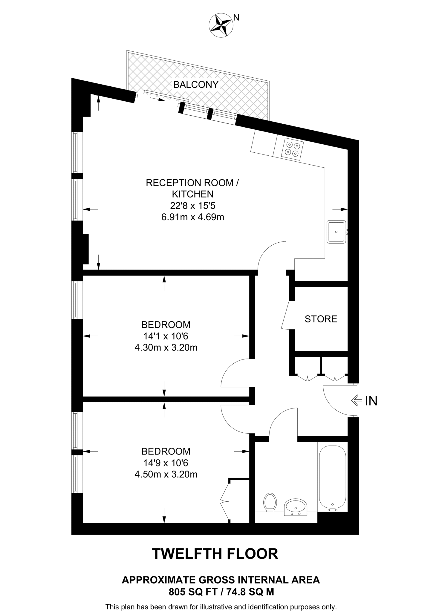
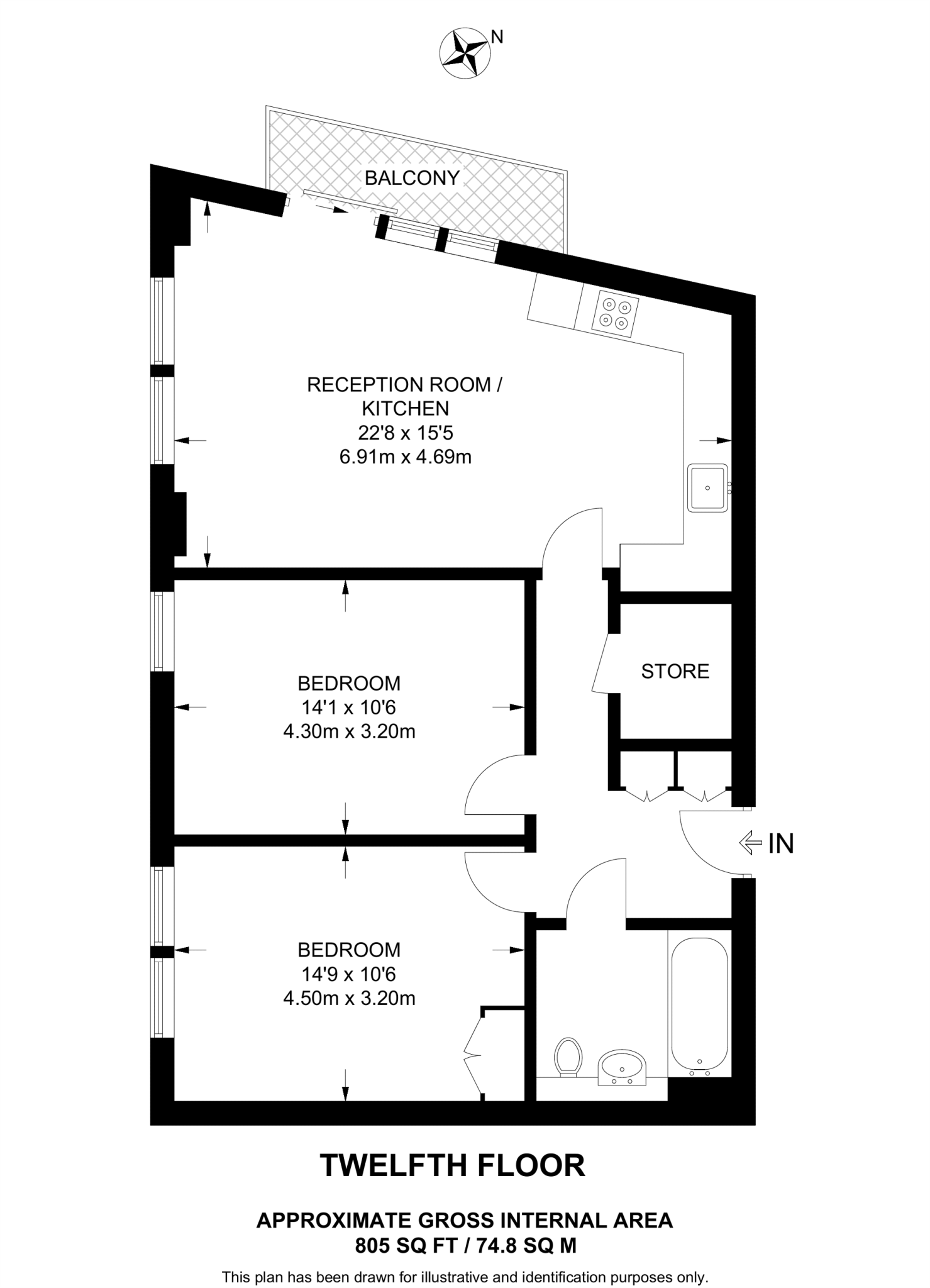
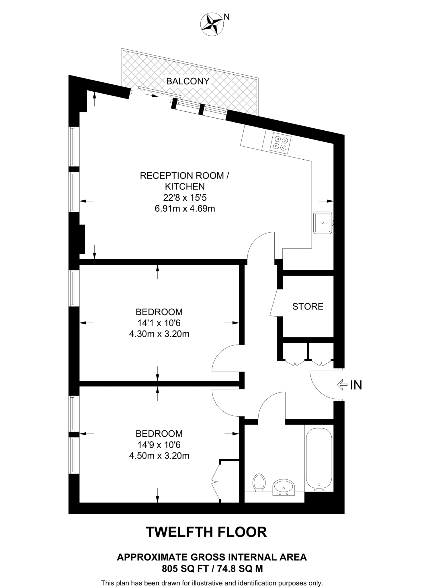
12th-floor flat with private balcony and wide city views
Set on the 12th floor, this bright two-bedroom flat delivers wide city views and a private balcony overlooking the River Thames. The open-plan reception and integrated kitchen create a generous living space with floor-to-ceiling glazing that floods the interior with light.
The principal bedroom includes a built-in wardrobe; a second double bedroom offers flexible use as a home office. The sleek bathroom and double glazing reflect a modern 2012-era build, while secure entry and lifts serve all floors.
Practical points for buyers: the property is leasehold and heated via a community mains-gas scheme, and there is a single bathroom for two bedrooms. The flat is an average-sized 805 sq ft unit in an inner-city area classed as deprived, though local transport links, shops and leisure amenities are close by.
2 bedroom flat for sale in Lombard Wharf, Lombard Road, Battersea, London, SW11 — £800,000 • 2 bed • 1 bath • 779 ft²
2 bedroom flat for sale in Lombard Road, Battersea, London, SW11 — £840,000 • 2 bed • 2 bath • 963 ft²
2 bedroom flat for sale in Gwynne Road, Battersea, LONDON, SW11 — £750,000 • 2 bed • 1 bath • 805 ft²
2 bedroom flat for sale in Bridges Court Road, SW11 — £550,000 • 2 bed • 2 bath • 624 ft²
2 bedroom flat for sale in Coda Residences, Battersea, LONDON, SW11 — £900,000 • 2 bed • 2 bath • 775 ft²
2 bedroom flat for sale in Lombard Wharf, Battersea, London, SW11 — £1,000,000 • 2 bed • 2 bath • 911 ft²






































































































































































































































































































































