**Standout Features:**
- Charming three-bedroom semi-detached cottage
- Sought-after rural village location (Salcott, CM9 8HL)
- Established, enclosed garden
- Chain-free sale, simplifying the purchasing process
- Traditional features with exposed beams and an open fireplace
- Off-road parking available
- Close proximity to schools and local amenities
**Summary:**
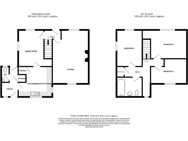
Discover the charm of this three-bedroom semi-detached Grade II listed cottage nestled in the picturesque village of Salcott. With an inviting character, this home offers cozy spaces, including a spacious living room with exposed beams and a traditional brick fireplace, perfect for creating warm family memories. The well-lit kitchen/breakfast room overlooks the established garden, providing a tranquil retreat for outdoor gatherings or gardening enthusiasts.
While the property retains historical significance and unique charm, potential buyers should be aware of its average condition and listed status, which may present future renovation challenges. The spacious layout is ideal for families or those seeking a serene rural lifestyle, and the low crime rate adds to its appeal. This delightful home is conveniently located near Tiptree and Maldon, ensuring schools and essential amenities are just a short drive away. Don’t miss this rare opportunity—schedule your viewing today and imagine the possibilities!
3 bedroom detached house for sale in The Street, Salcott, CM9 — £700,000 • 3 bed • 3 bath
5 bedroom detached house for sale in The Street, Salcott, Maldon, Essex, CM9 — £765,000 • 5 bed • 3 bath • 2587 ft²
2 bedroom end of terrace house for sale in The Street, Salcott, CM9 — £265,000 • 2 bed • 1 bath • 473 ft²
3 bedroom house for sale in The Street, Steeple, CM0 — £500,000 • 3 bed • 2 bath • 1531 ft²
2 bedroom semi-detached house for sale in The Street, Steeple, CM0 — £285,000 • 2 bed • 1 bath • 1170 ft²
3 bedroom detached house for sale in Brook Road, Tillingham, CM0 — £469,500 • 3 bed • 1 bath • 1497 ft²














































































































