**Standout Features:**
- Two-bedroom, leasehold duplex flat in a modern, purpose-built block
- Guide price of £41,000, sold via online auction
- Requires renovation, offering an excellent investment opportunity
- Allocated off-street parking space
- Strong internet connectivity and gas heating
- Located close to Boston town center with various amenities and schools nearby
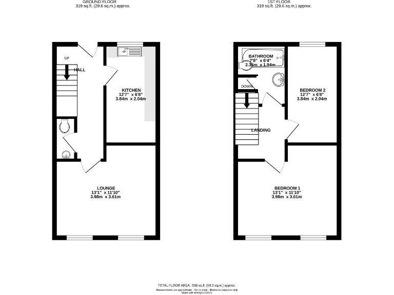
This two-bedroom duplex flat presents a promising project for investors or first-time buyers keen on a renovation opportunity. The property boasts an average size of 638 sq ft and features a lounge, kitchen, and a WC on the ground floor, with two bedrooms and a bathroom upstairs. While the flat requires significant updating, its modern construction allows for well-designed living spaces and the potential for substantial returns on investment after improvements.
Situated in a vibrant transitional neighborhood, it benefits from excellent broadband speeds and off-street parking. The property is conveniently close to a variety of local amenities, including shops, schools with good Ofsted ratings, and recreational facilities. However, potential buyers should note the above-average crime rate in the area and the need to budget for renovations. With a long lease of 982 years, this flat is ready for transformation; don't miss your chance to turn this blank canvas into a dream residence or lucrative rental property. Act quickly as the auction is set for July 15, 2025, and opportunities like this are rare!
1 bedroom flat for sale in 16 Broadfield Lane, Boston, Lincolnshire PE21 8DR, PE21 — £55,000 • 1 bed • 1 bath • 367 ft²
1 bedroom apartment for sale in Emery Lane, Boston, Lincolnshire, PE21 8QA, PE21 — £50,000 • 1 bed • 1 bath • 851 ft²
1 bedroom apartment for sale in Emery Lane, Boston, Lincolnshire, PE21 8QA, PE21 — £50,000 • 1 bed • 1 bath • 657 ft²
2 bedroom apartment for sale in Fydell Street, Boston, PE21 — £50,000 • 2 bed • 1 bath • 668 ft²
1 bedroom flat for sale in Emery Lane, Boston, Lincolnshire, PE21 8QA, PE21 — £50,000 • 1 bed • 1 bath • 1120 ft²
1 bedroom flat for sale in Emery Lane, Boston, Lincolnshire, PE21 8QA, PE21 — £50,000 • 1 bed • 1 bath • 1120 ft²














