**Standout Features:**
- Fully serviced self-build plot with all planning conditions discharged
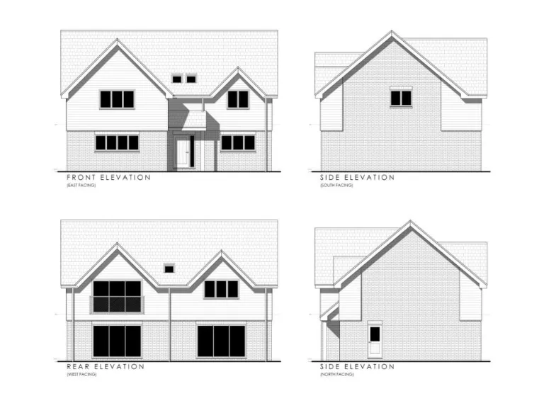
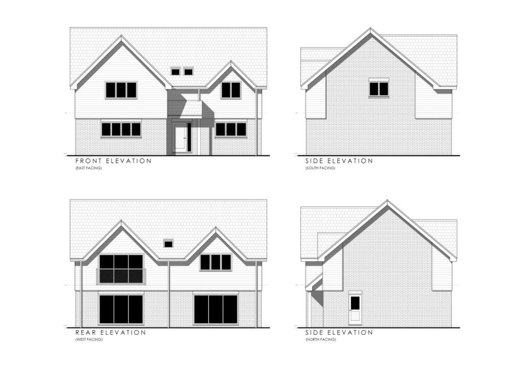
- Approved design for a striking four-bedroom detached home with single garage
- Comprehensive documentation pack available to facilitate the build process
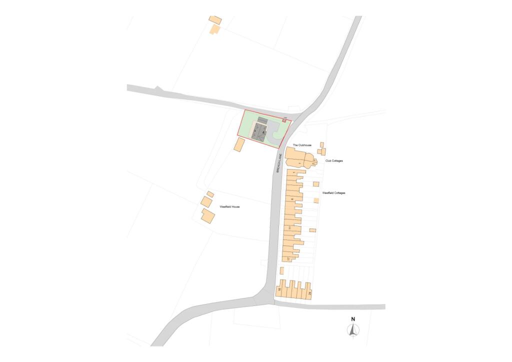
- Located in the charming, community-focused village of Lower Halstow
- Strong transport links with easy access to Newington station and local bus routes
- Close to reputable schools with Good ratings from Ofsted
**Potential Downsides:**
- Plot size is classified as small
- No inquiries about new service connections have been made at this time
**Summary:**
Discover a remarkable self-build opportunity in the idyllic village of Lower Halstow, where a fully serviced plot awaits you with approved plans for a modern four-bedroom detached home. With all pre-commencement planning conditions cleared, you can start construction immediately. The impressive design includes spacious living areas and a single garage, ideal for families seeking comfort and style. Enjoy the charm of rural life combined with excellent local amenities, such as the highly-rated Lower Halstow Primary School and easy access to transport links, ensuring seamless connectivity to Sittingbourne and Medway towns.
This plot not only offers a chance to create your dream home but also provides a supportive framework with documentation to streamline your journey from purchase to build. While the small plot size might require thoughtful exterior arrangements, the potential for a family-oriented lifestyle in a vibrant community makes this an enticing prospect. Don’t miss out on securing this exclusive self-build opportunity!
Plot for sale in The Ultimate Plot Opportunity – 9 Callum Park, ME9 — £680,000 • 5 bed • 4 bath • 3842 ft²
Plot for sale in Fully Serviced Custom-Build Plot with Planning Permission for a 5-Bedroom Home + Two-Storey Studio Garage, ME9 — £614,000 • 5 bed • 3 bath • 3616 ft²
4 bedroom detached house for sale in 4 Callum Park, Lower Halstow - Custom Build Home, ME9 — £850,000 • 4 bed • 2 bath • 1765 ft²
5 bedroom detached house for sale in 8 Callum Park — A New-Build Opportunity in an Exceptional Setting, ME9 — £1,225,000 • 5 bed • 4 bath • 3617 ft²
5 bedroom detached house for sale in 7 Callum Park, Lower Halstow - Custom Build Home, ME9 — £1,250,000 • 5 bed • 4 bath • 3617 ft²
5 bedroom detached house for sale in 1 Callum Park, Lower Halstow - New Build Home, ME9 — £1,335,000 • 5 bed • 3 bath • 3842 ft²


















