Secure, social retirement apartment near Romsey town centre.
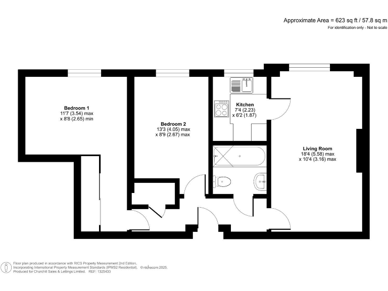
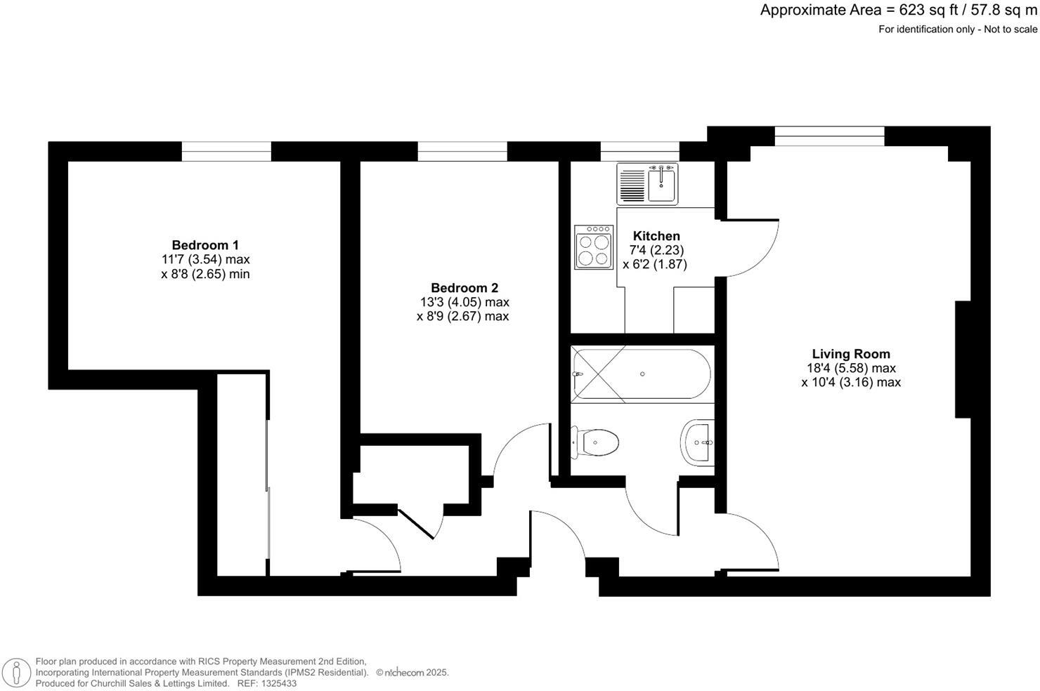
Two double bedrooms, first-floor apartment near lift and stairs
A well-presented two-bedroom first-floor apartment in Mottisfont Lodge, designed specifically for retirement living. The apartment sits close to the lift and stairs, with a bright living/dining room, a fitted kitchen and two comfortable double bedrooms. The development offers communal gardens, owners’ lounge, laundry room and an owners’ car park.
Safety and community are strong selling points: a Lodge Manager is on-site five days a week, a 24-hour Careline system provides continuous monitoring and a Guest Suite is available for visiting family (plus access to Guest Suites at other Churchill developments). The location is convenient — around 500 yards from Romsey town centre with nearby bus stops and local amenities within easy reach.
Be aware of the running costs and tenure details. The property is leasehold with about 101 years remaining; the service charge is relatively high at £4,289.76 per year and the ground rent is £918.24 per year. Heating is via electric storage heaters, which can increase energy bills compared with gas-fired systems.
This apartment will suit a buyer looking to downsize into a managed retirement community who values on-site support, social facilities and proximity to town. It offers a low-maintenance, secure environment but carries ongoing fees and electric heating considerations that should be factored into affordability calculations.
1 bedroom retirement property for sale in Mottisfont Lodge, Romsey, SO51 — £125,000 • 1 bed • 1 bath • 393 ft²
1 bedroom retirement property for sale in Alma Road, Romsey, Hampshire, SO51 — £125,000 • 1 bed • 1 bath • 465 ft²
1 bedroom retirement property for sale in Alma Road, Romsey, Hampshire, SO51 — £150,000 • 1 bed • 1 bath • 598 ft²
2 bedroom retirement property for sale in Glebe Court, Abbotswood Common Road, Romsey, Hampshire, SO51 — £399,000 • 2 bed • 2 bath
2 bedroom retirement property for sale in Bridge Road, Romsey, SO51 — £300,000 • 2 bed • 1 bath • 683 ft²
1 bedroom flat for sale in Middlebridge Street, Romsey Town Centre, Hampshire, SO51 — £120,000 • 1 bed • 1 bath • 450 ft²










































































