Central apartment with premium amenities ideal for commuting professionals.
Open-plan one-bedroom with floor-to-ceiling windows and east-facing balcony
Residents’ amenities: gym, swimming pool, cinema and 24-hour concierge
Approx. 562 sq ft total (52.2 sqm internal plus terrace 20.5 sqm)
Leasehold tenure; communal heating/cooling charges likely apply
Main heating: electric room heaters — potentially higher running costs
Seller has not tested appliances; recommend independent survey and checks
Area shows above-average crime and higher local deprivation indicators
Excellent Zone 1 transport links; fast broadband and strong mobile signal
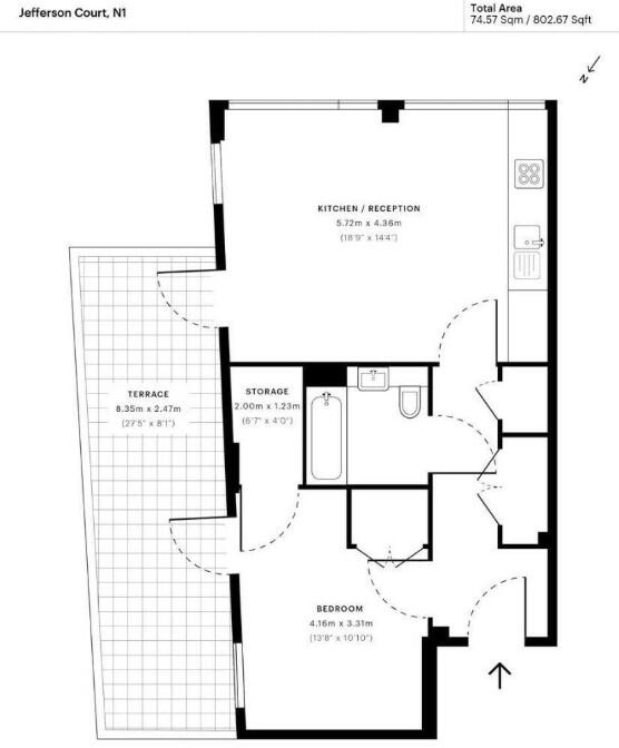
Situated in the Kings Cross Quarter, this one-bedroom apartment offers bright, open-plan living with floor-to-ceiling windows and an east-facing balcony. The development’s on-site facilities — gym, swimming pool, cinema and 24-hour concierge — add convenience and lifestyle appeal, while the property’s 562 sq ft (approx.) footprint provides comfortable space for single professionals or a couple.
Practical features include fitted bedroom wardrobes, wood flooring and communal cooling/heating. The flat is leasehold and heated mainly by electric room heaters; separate communal heating/cooling charges may apply. Broadband and mobile signal are strong, and Zone 1 transport links (Kings Cross and Angel nearby) suit commuters.
Buyers should note material points: the building sits in an area with above-average crime and broader area deprivation indicators. The heating uses electricity and room heaters rather than gas, which can mean higher running costs. The seller has not tested appliances or heating and no survey has been carried out — purchasers are advised to commission independent inspections.
Overall, this apartment suits a first-time buyer or investor seeking a modern, low-maintenance home in a central location with excellent amenities. Expect to budget for communal service charges, possible energy costs from electric heating, and routine checks or upgrades after purchase.
1 bedroom flat for sale in Jefferson Court, 1 Cynthia Street, London, N1 — £780,000 • 1 bed • 1 bath • 803 ft²
1 bedroom apartment for sale in Kings Cross Quarter,N1 9JE, N1 — £825,000 • 1 bed • 1 bath
2 bedroom flat for sale in Rodney Street, King's Cross, N1 — £1,700,000 • 2 bed • 1 bath • 1061 ft²
1 bedroom flat for sale in Jefferson Court, N1 — £750,000 • 1 bed • 1 bath • 569 ft²
1 bedroom flat for sale in Emerson Court, N1 — £650,000 • 1 bed • 1 bath • 488 ft²
1 bedroom apartment for sale in Lewis Cubitt Walk, London, N1C — £625,000 • 1 bed • 1 bath • 486 ft²






























