Characterful rural home with workshop and parking, perfect for downsizers.
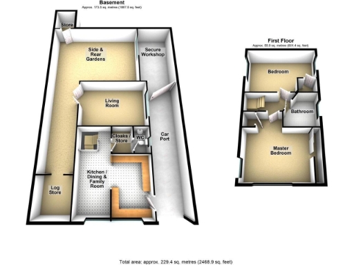
Converted chapel with original beams and feature flagstone farm brick flooring
Master bedroom with countryside and Mendip views
Open-plan kitchen/dining/family room with integrated appliances
Off-street parking for two cars and 28ft x 8ft car port
Secure workshop with LED lighting and 32A power supply
Rear and side gardens with substantial log store; small overall plot
Image notes flag potential roof issues and damp; likely refurbishment needed
Single family bathroom; compact two-bedroom layout best for downsizers
This converted chapel offers a compact, characterful two-bedroom home in the quiet village of Heath House, minutes from Blackford and Wedmore. Exposed beams, original brick flagstone flooring and a working log burner give the house rustic charm, while an open-plan kitchen/dining/family room and front-to-back living area make daily living flexible and bright.
Practical outbuildings are a standout: a 28ft x 8ft car port, secure workshop with LED lighting and a 32A supply, plus off-street parking for at least two cars. Rear and side gardens, a substantial log store and sheltered patio provide low-maintenance outdoor space with countryside views from the master bedroom towards neighbouring fields and the Mendips.
Buyers should note this is a period conversion on a relatively small plot and shows signs of needing maintenance — image notes indicate potential roof issues and damp in places, so some refurbishment may be required. The accommodation is modest in footprint but well laid out, making it suitable for downsizers or buyers seeking a rural retreat with useful workshop space.
Practical benefits include freehold tenure, no flood risk, fast broadband, very low local crime and good nearby schools. Overall the property offers character, useful ancillary space and countryside outlooks, balanced by repair and maintenance considerations that will influence ongoing costs and any renovation plans.
3 bedroom end of terrace house for sale in Street End, Blagdon, BS40 — £625,000 • 3 bed • 2 bath • 1851 ft²
6 bedroom character property for sale in Church Road, East Huntspill, TA9 — £850,000 • 6 bed • 5 bath • 3377 ft²
2 bedroom detached house for sale in Stocks Lane, North Wootton, North Wootton, BA4 — £380,000 • 2 bed • 2 bath • 2190 ft²
4 bedroom barn conversion for sale in May Blossom Barn, Back Lane, Chapel Allerton, BS26 — £540,000 • 4 bed • 2 bath • 1134 ft²
3 bedroom detached house for sale in Chapel Allerton, Nr. Wedmore, BS26 — £450,000 • 3 bed • 2 bath • 1181 ft²
4 bedroom detached house for sale in Old Ford House, Blackford Nr Wedmore, BS28 4NR, BS28 — £490,000 • 4 bed • 2 bath • 1396 ft²














































































































































