**Standout Features:**
- Expansive 2.27-acre plot with planning permission granted
- Proposed luxury home design offering approximately 3,800 sq ft of living space
- Nestled in the idyllic Gordano Valley with stunning countryside views
- Exceptional privacy and tranquility adjoining farmland
- Convenient access to local amenities in Clevedon and Portishead
**Potential Concerns:**
- Planning covenants may restrict outdoor structures without prior consent
- Broadband speeds are currently very slow
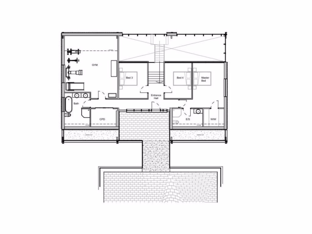
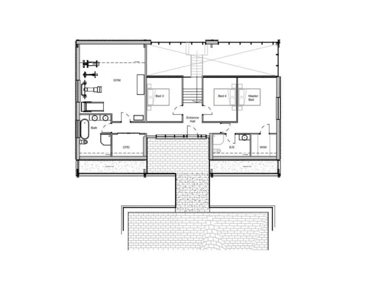
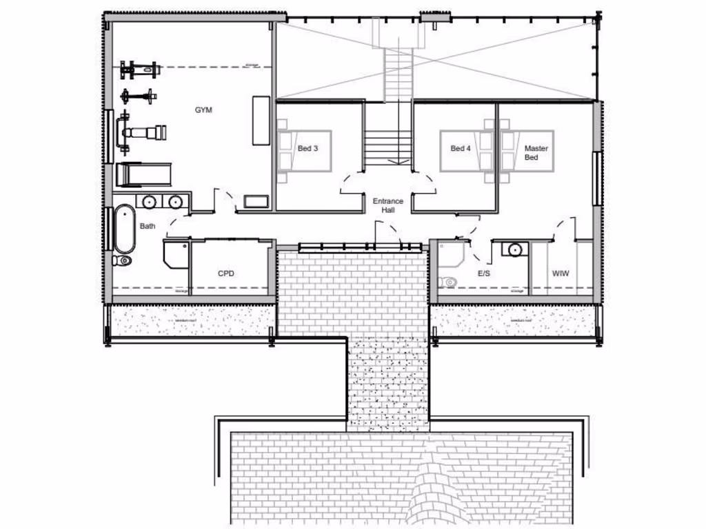
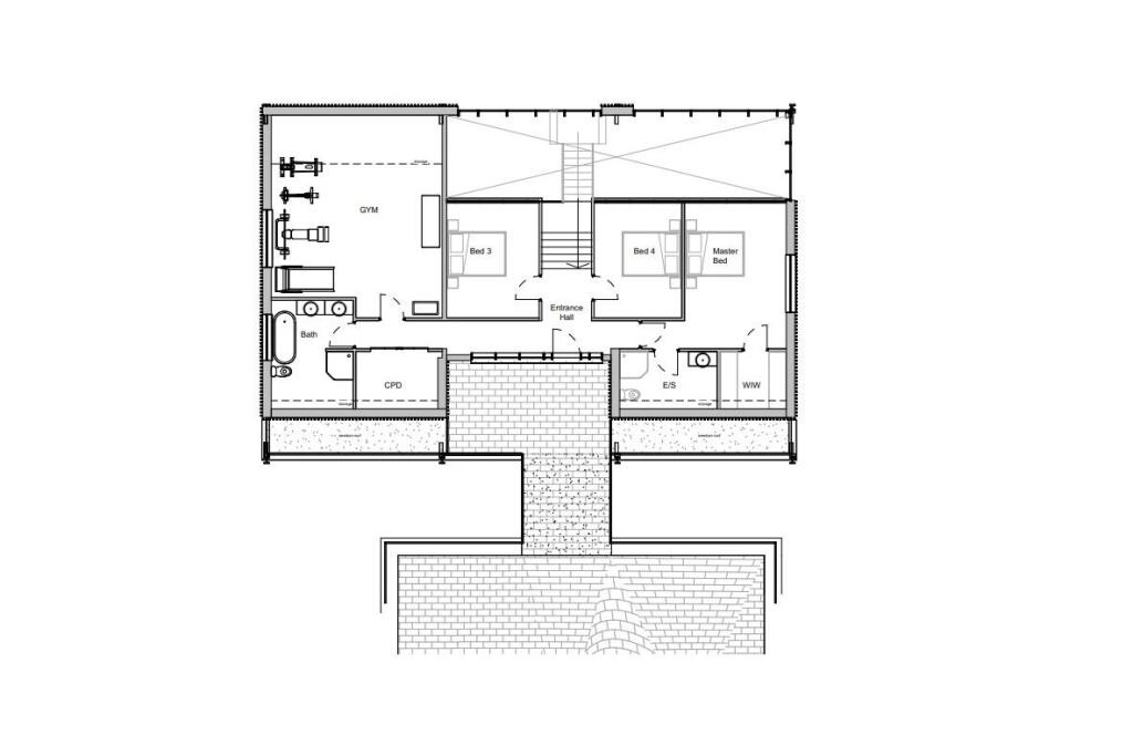
Discover a rare opportunity at Quarry Mead, a planned development site ready for your architectural vision. Spanning over 2.27 acres in the picturesque Gordano Valley, this freehold plot is set to host a stylish detached residence, thoughtfully designed to integrate luxury with the breathtaking natural surroundings. Imagine a sprawling 3,800 sq ft home with expansive glass features to frame the scenic countryside views, a grand entrance bridge, and ample outdoor space perfect for family gatherings or serene retreats.
While the tranquility of rural living is at your doorstep, the vibrant amenities of Clevedon and nearby Portishead are easily accessible, ensuring both convenience and comfort. This property represents a unique investment opportunity for prospective homeowners or developers seeking a canvas for a luxury country dwelling. Act now—secure this exceptional location before it’s gone!
Plot for sale in Development site with full planning, Broadway, Chilcompton, BA3 — £850,000 • 1 bed • 1 bath • 9557 ft²
Land for sale in Old Aust Road, Almondsbury, Bristol, Gloucestershire, BS32 — £750,000 • 1 bed • 1 bath
Equestrian facility for sale in Nempnett Thrubwell, listed barn with full PP for conversion, BS40 — £400,000 • 3 bed • 3 bath • 1948 ft²
Land for sale in Plot 1 Old Aust Road, Almondsbury, BS32 — £350,000 • 1 bed • 1 bath
5 bedroom detached house for sale in The Saddlery, Plot 3 Paddock Rise, BS40 - Custom Build, BS40 — £1,113,778 • 5 bed • 3 bath • 1819 ft²
4 bedroom detached house for sale in House + Cottage | Warmley, BS30 — £420,000 • 4 bed • 3 bath • 1600 ft²






























































































































