**Standout Features:**
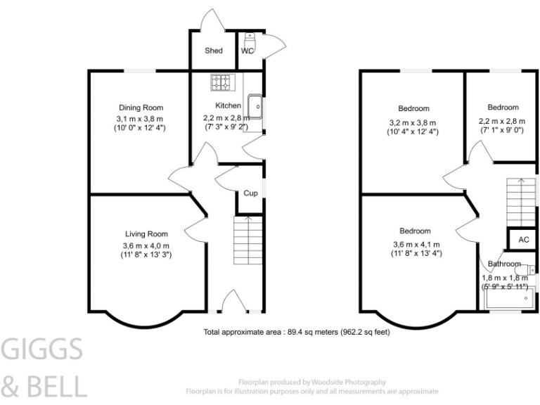
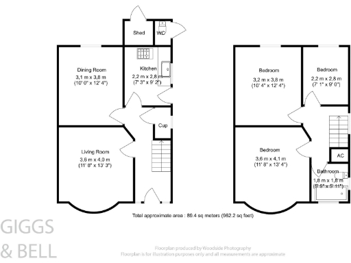
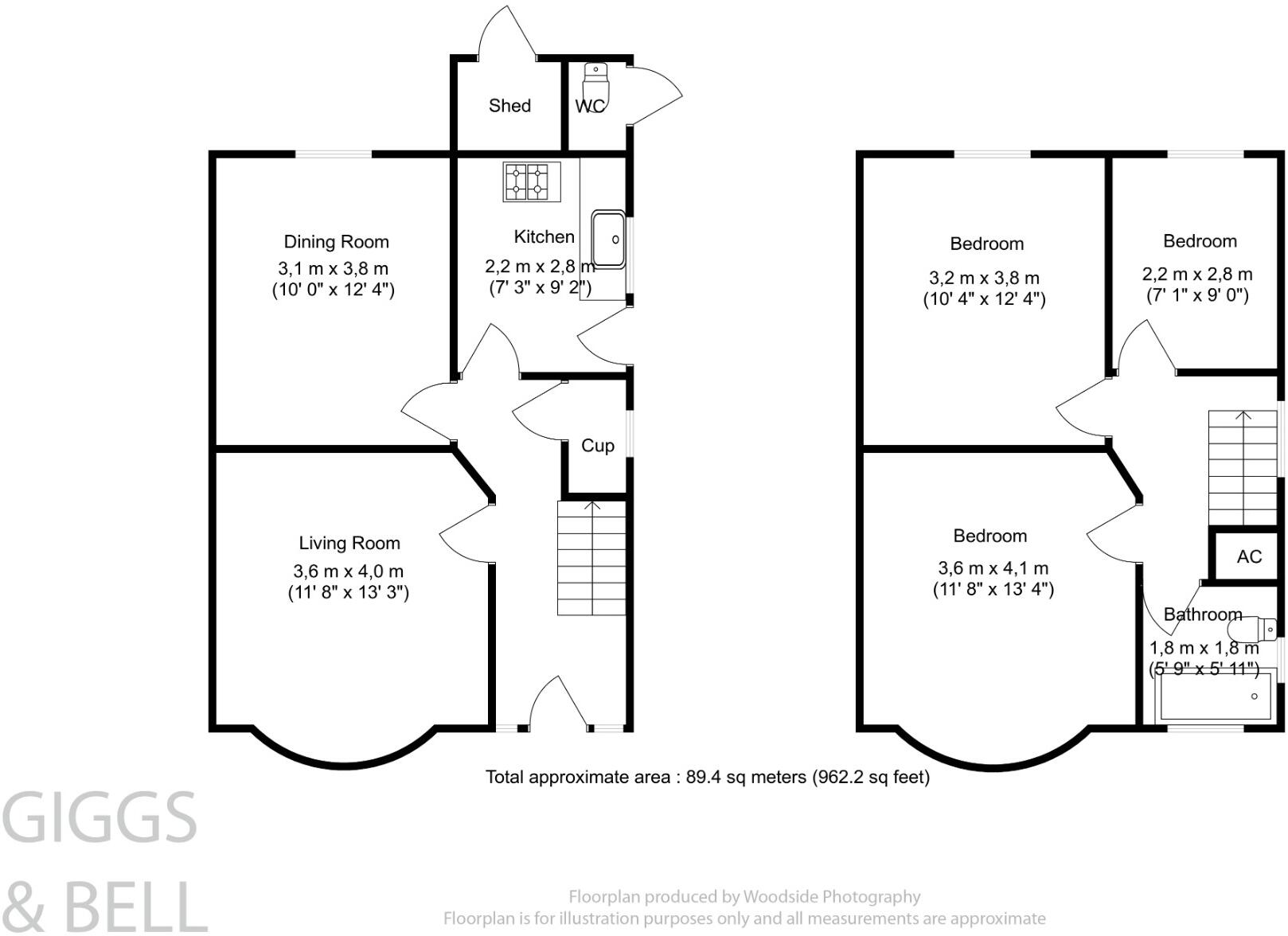
- Traditional 1930s semi-detached architecture
- Three spacious double bedrooms
- Two reception rooms offering ample living space
- Detached garage and off-road parking
- Enclosed rear garden, perfect for families
- Renovation potential with scope for extensions (STPP)
- No upper chain and freehold tenure
- Conveniently located near renowned schools
Nestled in the desirable Saints area, this charming 1930s semi-detached home is a wonderful opportunity for families looking to create a personalized space. Boasting three good-sized bedrooms and two versatile reception rooms, this property lends itself to various living arrangements. The advantages of off-road parking, a detached garage, and a neat rear garden make it ideal for family comfort and convenience.
While the home is in need of modernization, the potential for renovations and extensions (subject to planning permission) allows you to envision your dream layout. This chain-free property is perfectly situated near outstanding schools, making morning commutes a breeze. Easy access to Luton Airport, the mainline train station, and major road networks adds to its appeal.
Don't miss this chance to secure a family home that blends 1930s charm with modern-day possibilities—hurry, as opportunities like this are in high demand!
3 bedroom semi-detached house for sale in St. Michaels Crescent, Luton, Bedfordshire, LU3 — £375,000 • 3 bed • 1 bath • 969 ft²
3 bedroom semi-detached house for sale in St. Margarets Avenue, Luton, Bedfordshire, LU3 — £375,000 • 3 bed • 1 bath • 1268 ft²
4 bedroom semi-detached house for sale in Culverhouse Road, Luton, Bedfordshire, LU3 — £435,000 • 4 bed • 1 bath • 1306 ft²
3 bedroom semi-detached house for sale in St. Augustine Avenue, Luton, LU3 — £350,000 • 3 bed • 2 bath • 1292 ft²
3 bedroom semi-detached house for sale in St Ethelberts Avenue, Luton, LU3 — £350,000 • 3 bed • 1 bath • 1038 ft²
5 bedroom detached house for sale in High Mead, Luton, LU3 — £525,000 • 5 bed • 2 bath • 1498 ft²














































































