Spacious detached home in Upham with gardens, garage and village living.
Four double bedrooms, two with en-suite bathrooms
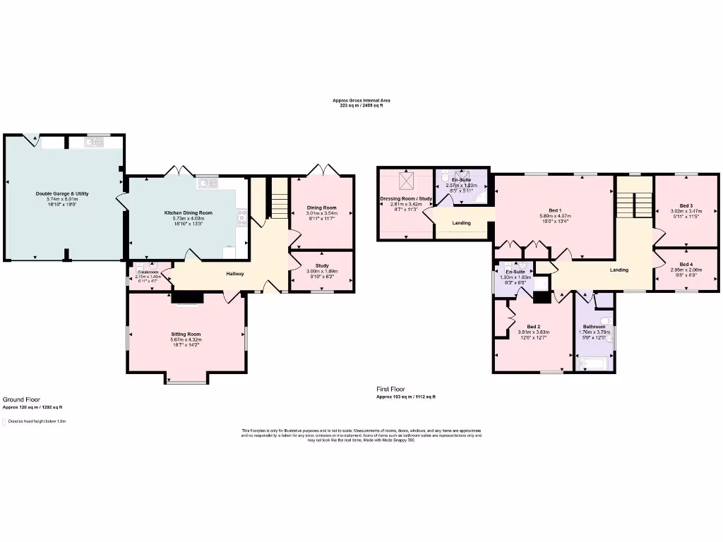
Set in the desirable village of Upham and backing onto the South Downs National Park, this individually designed four-bedroom detached home offers generous family accommodation across approximately 2,405 sq ft. The layout includes a triple-aspect sitting room with inglenook fireplace, separate dining room, study, and a large 18ft kitchen-dining area that opens to the garden — ideal for everyday family life and entertaining.
The substantial plot of around 0.2 acres offers a private, well-maintained rear garden, a sweeping block-paved driveway and a 19ft 9 double garage with utility area. Practical features include fast full-fibre broadband, multiple reception rooms for flexible working or hobbies, and two en-suite bedrooms alongside a family bathroom.
Buyers should note the property uses an oil-fired boiler and private drainage, and the EPC rating is D. Windows are double glazed but were installed before 2002. These are straightforward items to factor into ongoing running costs and potential improvement plans.
This is a comfortable, well-proportioned family home in a thriving village with a popular primary school, pubs, recreation ground and easy access to Winchester, Southampton and nearby market towns. The house suits buyers seeking generous space, village lifestyle and room to personalise or update services over time.
5 bedroom detached house for sale in Upham, Southampton, Hampshire, SO32 — £825,000 • 5 bed • 4 bath • 1972 ft²
4 bedroom detached house for sale in Upham Street, Lower Upham, Hampshire, SO32 — £900,000 • 4 bed • 2 bath • 2000 ft²
3 bedroom semi-detached house for sale in Upham, Southampton, SO32 — £700,000 • 3 bed • 2 bath • 1226 ft²
3 bedroom semi-detached house for sale in Upham Street, Upham, SO32 — £550,000 • 3 bed • 2 bath • 876 ft²
4 bedroom detached house for sale in Stroudwood Lane, Upham, Hampshire, SO32 — £825,000 • 4 bed • 3 bath • 2060 ft²
3 bedroom semi-detached house for sale in Winchester Road, Upham, SO32 — £375,000 • 3 bed • 2 bath • 723 ft²










































































