Chain-free, single-storey living with gardens and driveway in sought-after Great Sutton.
Detached two-bedroom bungalow on a decent plot
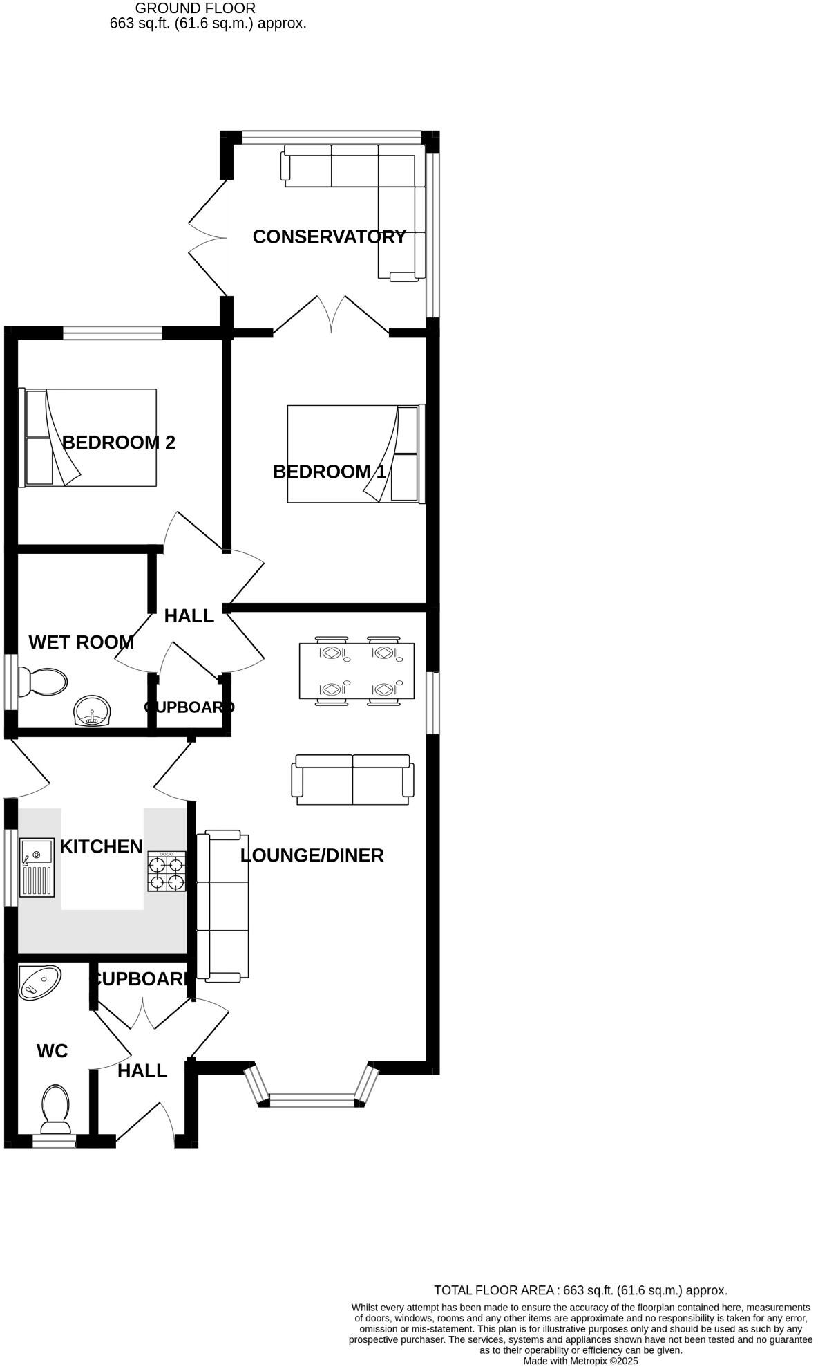
Set on a decent plot in a quiet Great Sutton street, this detached two-bedroom bungalow offers straightforward, single-storey living with no onward chain. The layout includes a spacious lounge/diner with bay window, conservatory, modern wet room and a compact kitchen — a practical home for downsizers or those seeking a low-maintenance base.
The property benefits from UPVC double glazing, gas central heating and off-street parking. Gardens front and rear extend the living space and the driveway provides easy access. Local amenities and good primary schools are within easy reach, while very low crime, excellent mobile signal and fast broadband suit modern daily life.
Rooms are comfortable rather than generous — total floor area is about 663 sq ft — and the bungalow presents as well cared-for but not recently refurbished. Buyers should note services and heating have not been tested, so a survey and routine checks are recommended before commitment. The wet room is modern and practical but there is only the single bathroom.
Overall this freehold, chain-free bungalow is a sensible, affordable option for someone seeking a manageable home in a stable suburban setting, with clear potential to personalise or update the kitchen and interiors to taste.
2 bedroom bungalow for sale in Ploughmans Way, Great Sutton, CH66 — £240,000 • 2 bed • 1 bath • 657 ft²
2 bedroom bungalow for sale in Orchard Close, Great Sutton, Ellesmere Port, CH66 — £250,000 • 2 bed • 1 bath • 824 ft²
2 bedroom detached bungalow for sale in Linden Close, Great Sutton, CH66 — £279,995 • 2 bed • 1 bath • 606 ft²
2 bedroom bungalow for sale in Church Lane, Great Sutton, CH66 — £200,000 • 2 bed • 1 bath • 650 ft²
3 bedroom detached bungalow for sale in Glencoe Road, Great Sutton, CH66 — £295,000 • 3 bed • 1 bath • 992 ft²
2 bedroom bungalow for sale in Glenathol Road, Great Sutton, Ellesmere Port, CH66 — £275,000 • 2 bed • 1 bath


































































