Spacious five-bedroom new build with large plot and modern fittings in rural Mold.
10-year NHBC warranty included
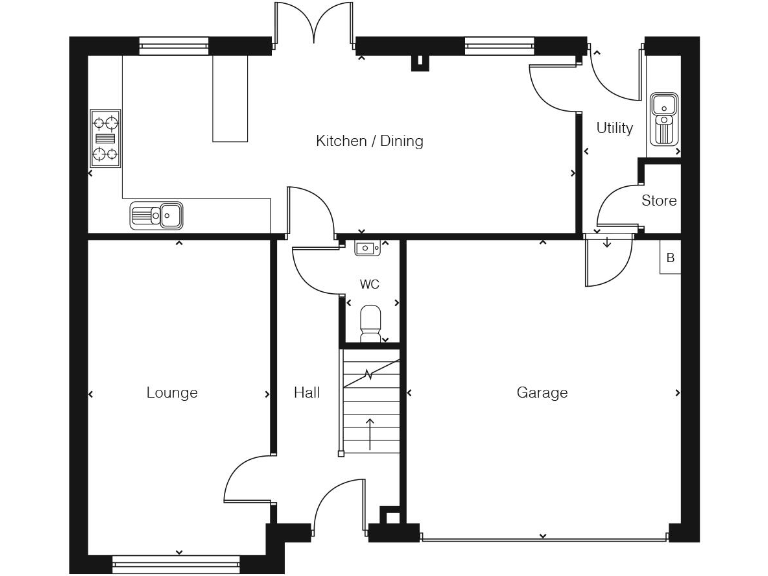
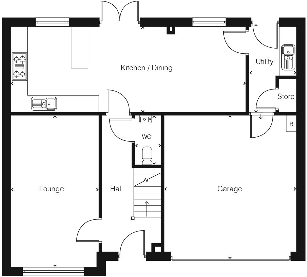
The Delamere is a five-bedroom, new-build detached house on the Bryn Castell development near Mold, offered with a 10-year NHBC warranty. The home suits families seeking modern, flexible accommodation in a rural village setting with good digital connectivity and off-street parking.
Inside, the property features a fully fitted Symphony kitchen with integrated fridge-freezer and dishwasher, brushed-steel hob and oven, and an open-plan kitchen/dining layout that opens to a private enclosed garden. Solar PV panels are provided (quantity and exact location confirmed per plot). The house offers comfortable living across approximately 1,599 sq ft and includes a single bathroom (see drawbacks).
Practical strengths include fast broadband, excellent mobile signal, freehold tenure, and low flood risk. The plot is described as very large, giving scope for garden use or future landscaping. Buyers should note the property is new-build and some fitted choices depend on build stage; garden planting and turf are subject to landscape drawings.
Important negatives: there is only one bathroom serving five bedrooms, which may be a limitation for larger families. The area’s socio-economic indicators show high deprivation locally, which may concern some buyers. Specifics such as the exact number and placement of solar panels, and extent of bathroom tiling, are plot-dependent and should be verified on reservation.
4 bedroom detached house for sale in New Brighton Road,
Mold,
CH7 6ZA, CH7 — £414,995 • 4 bed • 1 bath • 1236 ft²
3 bedroom semi-detached house for sale in New Brighton Road,
Mold,
CH7 6ZA, CH7 — £319,995 • 3 bed • 2 bath • 1002 ft²
3 bedroom semi-detached house for sale in New Brighton Road,
Mold,
CH7 6ZA, CH7 — £299,995 • 3 bed • 2 bath • 942 ft²
3 bedroom terraced house for sale in New Brighton Road,
Mold,
CH7 6ZA, CH7 — £264,995 • 3 bed • 1 bath • 753 ft²
4 bedroom detached house for sale in New Brighton Road,
Mold,
CH7 6ZA, CH7 — £369,995 • 4 bed • 3 bath • 1110 ft²
3 bedroom detached house for sale in New Brighton Road,
Mold,
CH7 6ZA, CH7 — £339,995 • 3 bed • 2 bath • 1002 ft²














































