Ready‑permitted front plot for a large 4‑bed house with seaward outlook — build ready..
Planning permission granted for a 4‑bed, 2,260 sq ft detached house (23 Nov 2023)
Freehold large plot with private drive and detached garage included in plans
Front plot with outlook and views toward the Severn Estuary
Generous garden wrapping three sides; suitable for family outdoor living
No existing dwelling — purchaser responsible for construction and costs
Located off Vinegar Hill in a quiet small‑town fringe setting
Area classified as very deprived; may affect amenities and comparables
Flooding risk: No Risk; broadband fast and mobile signal excellent
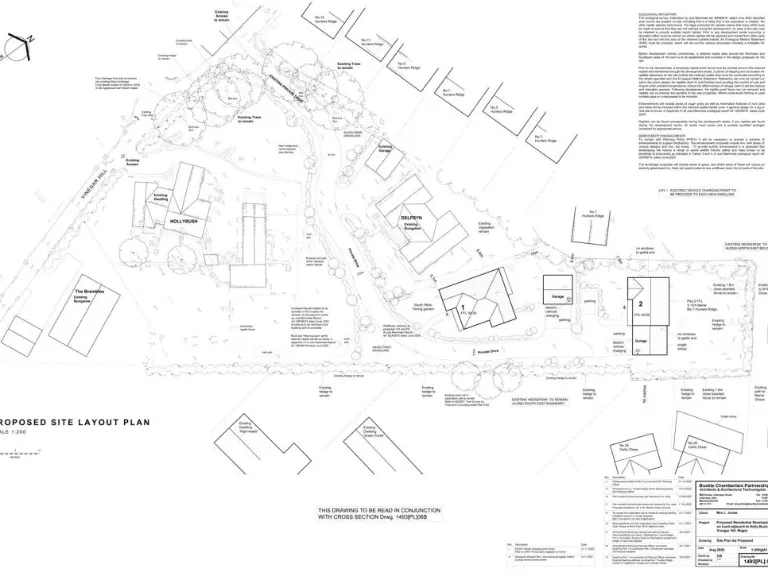
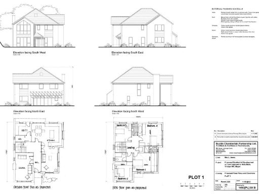
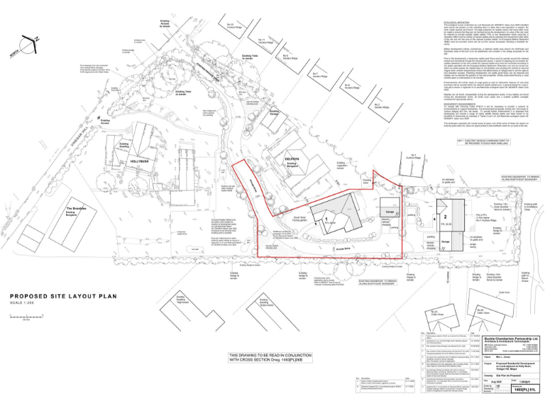
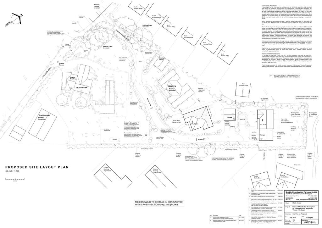
Plot 1 on Vinegar Hill is a substantial freehold development plot with planning permission for a 2,260 sq ft four‑bedroom detached house and garaging. Positioned at the front of the site, it benefits from a strong outlook towards the Severn Estuary and sits off the much‑sought Vinegar Hill in Undy — a quiet, semi‑rural fringe location with mature trees and a generous garden setting.
The approved design provides a family‑friendly layout: open plan ground‑floor living, a separate formal reception, four bedrooms with two ensuites, private drive and a detached double garage. Planning was granted on 23 November 2023, simplifying the route to build for a purchaser who wants a ready development opportunity rather than starting from outline consent.
Important considerations: the plot is a cleared site with no existing dwelling, so the purchaser will need to commission the build and manage construction. The local area is classified as “very deprived” in community indices, which may affect local services and resale comparables. Council tax and certain service connections are not specified in the listing.
This plot will suit a buyer who wants a near‑complete planning package and a modern family home with estuary views, or an investor/developer prepared to complete the build. The location offers calm suburban living with fast broadband and excellent mobile signal, but factor in build costs, access via an extension to the existing driveway, and local socio‑economic considerations when assessing value.
Plot for sale in Vinegar Hill, Undy, Caldicot, Monmouthshire, NP26 — £220,000 • 5 bed • 4 bath • 2195 ft²
Plot for sale in Vinegar Hill, Undy, Caldicot, Monmouthshire, NP26 — £440,000 • 9 bed • 6 bath
Plot for sale in Hardwick Hill, Chepstow, NP16 — £250,000 • 5 bed • 3 bath • 2325 ft²
Plot for sale in Yew Tree Lane, Caerleon, Newport, NP18 — £250,000 • 1 bed • 1 bath
4 bedroom detached house for sale in LAND with PLANNING APPROVAL The Plantation, Undy, Magor, Monmouthshire, NP26 3HR, NP26 — £179,500 • 4 bed • 2 bath
Plot for sale in Sedbury Lane, Tutshill, Chepstow, Gloucestershire, NP16 — £400,000 • 1 bed • 1 bath • 2200 ft²










































