**Standout Features:**
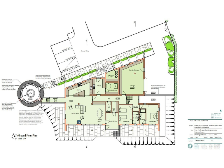
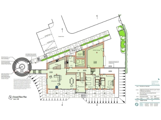
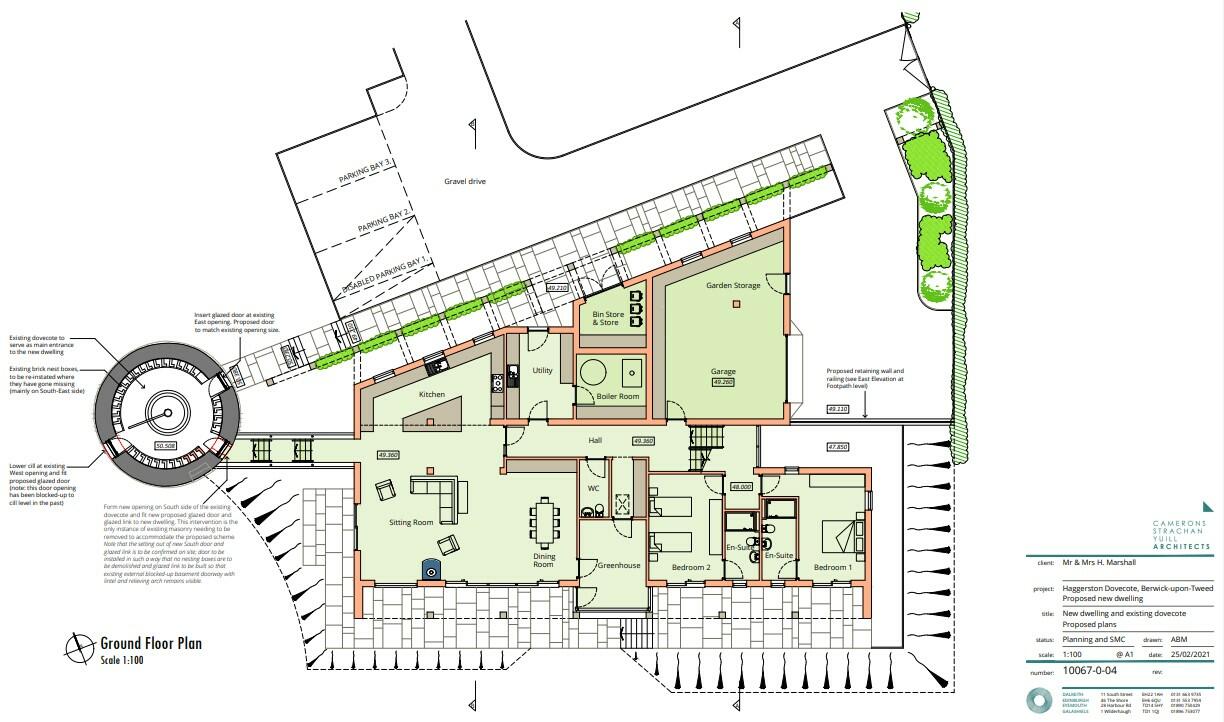
- Historic Dovecote from the 1600s - Scheduled Ancient Monument & Grade II listed
- Full planning permission granted for a modern residential dwelling
- Expansive 6.5-acre plot with stunning views of the Cheviot Hills
- Architect-designed plans available integrating the historic Dovecote into the new home
- Mains services connected (electricity and water)
**Summary:**
Discover an extraordinary self-build opportunity centered around a historic 17th-century Dovecote in Haggerston, offering a unique blend of rustic charm and modern living potential. With full planning permission granted, envision transforming this iconic stone structure into a striking residence featuring open-plan living spaces, four bedrooms, and exceptional countryside views. The architect-designed plans promise a contemporary home that celebrates the Dovecote's historical essence while providing ample space and light filled interiors.
Set on a generous 6.5-acre plot, this property is perfect for buyers looking for a rural retreat rich in character and renovation potential. Enjoy the benefits of fast broadband and excellent mobile signal while being within reach of local amenities in Berwick, just seven miles away. Although the property holds a Grade II listing which may pose renovation challenges, the integration of a living space with an architectural nod to history creates a rare opportunity for an ambitious buyer. Come to experience the sweeping open views and tranquil surroundings that this remarkable site has to offer. Don't miss this exclusive chance to create your dream home that honors a storied past while embracing modern comforts.
3 bedroom detached house for sale in The Old School House, Ancroft, Berwick-upon-Tweed, Northumberland, TD15 — £475,000 • 3 bed • 2 bath • 1859 ft²
3 bedroom detached house for sale in The Garden Cottage, Edrington, Foulden, Berwickshire, TD15 — £565,000 • 3 bed • 1 bath • 2088 ft²
7 bedroom detached house for sale in Chatton, Northumberland, NE66 — £1,200,000 • 7 bed • 4 bath • 1109 ft²
2 bedroom house for sale in The Steading, East Allerdean, Berwick-upon-Tweed, Northumberland, TD15 — £275,000 • 2 bed • 1 bath • 1206 ft²
1 bedroom semi-detached house for sale in Main Street, Lowick, Berwick-Upon-Tweed, TD15 — £295,000 • 1 bed • 1 bath • 1738 ft²
Plot for sale in Drovers Lane, Doddington, Wooler, Northumberland, NE71 — £160,000 • 1 bed • 1 bath










































