Rare mixed-use investment with planning consent and parking near the station.
Shop let to Feb 2026 at £12,720pa; short-term income risk
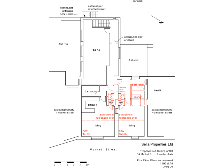
Planning consent to convert two flats into three apartments (HPK/2023/0350)
Approximately 2,576 sq ft including basement with rear loading access
Up to four parking spaces included — rare town-centre benefit
Victorian stone frontage with strong central location and station nearby
Dated interiors require updating to unlock value; refurbishment needed
Medium flood risk; buyers should allow for flood mitigation measures
Local crime levels above average; consider security improvements
A substantial mixed-use building in the centre of Whaley Bridge offering immediate rental income and clear scope for added value. The ground-floor shop is let on a short lease to 28/02/2026, and two upper flats currently provide residential income; planning consent exists to reconfigure the upper floors into three self-contained apartments (HPK/2023/0350). The property extends to about 2,576 sq ft and includes a basement with rear loading and up to four parking spaces — uncommon in the town centre.
The Victorian stone exterior and central position give strong street presence and steady footfall from nearby amenities and the railway station, a three-minute walk away. The accommodation is dated internally and will need updating to maximise rental levels or sales values, which makes this suitable for an investor or developer comfortable with refurbishment. Broadband speeds are average, mobile signal is excellent and the surrounding area is generally affluent.
Buyers should note some practical negatives: the site sits in a medium flood‑risk zone and local crime rates are above average. The retail lease is short-term and one upper flat is vacant, so income profile will change in the short term. The sale is by long leasehold (999 years remaining) with a nominal ground rent of £6.25 per annum.
High street retail property for sale in 34 Market Street, Whaley Bridge, High Peak, SK23 7LP, SK23 — £125,000 • 1 bed • 1 bath • 715 ft²
High street retail property for sale in 104 Buxton Road, Whaley Bridge, High Peak, SK23 7JH, SK23 — £159,950 • 1 bed • 1 bath • 801 ft²
4 bedroom flat for sale in Market Street, High Peak, SK23 — £300,000 • 4 bed • 2 bath • 969 ft²
2 bedroom flat for sale in Market Street, High Peak, SK23 — £160,000 • 2 bed • 1 bath • 914 ft²
2 bedroom flat for sale in Market Street, High Peak, SK23 — £160,000 • 2 bed • 1 bath • 451 ft²
Garage for sale in Market Street, High Peak, Derbyshire, SK23 — £345,000 • 1 bed • 1 bath • 1300 ft²






















































