SK23 7DF - 2 bedroom terraced house for sale in Goyt Road, Whaley Brid…

View on Property Piper

2 bedroom terraced house for sale in Goyt Road, Whaley Bridge, SK23 7DF, SK23

Summary - 6 GOYT ROAD WHALEY BRIDGE HIGH PEAK SK23 7DF

2 bed 1 bath Terraced

**Standout Features:**
- Attractive period stone mid-terrace property
- Sought-after location on the edge of Memorial Park
- Off-street driveway parking for two cars
- Extended accommodation with two separate reception rooms
- Spacious fitted kitchen with Neff cooker
- Two double bedrooms and a boarded loft space
- Newly renovated, including a roof replacement in 2025
- Communal gardens with views over allotments
- Excellent amenities and transport links nearby

This beautifully presented two-bedroom mid-terrace property offers a delightful blend of character and modern living in a desirable locale. Positioned just steps from Memorial Park, it features tasteful touches throughout, including two elegant reception rooms with wood-burning stoves and a spacious kitchen that invites culinary creativity. The approved renovations ensure a worry-free investment, while the ample driveway provides hassle-free parking for two vehicles.

Families and first-time buyers will appreciate the close proximity to reputable primary schools and a vibrant community with cafes, restaurants, and recreational options within walking distance. The charming sun terrace and communal gardens are perfect for relaxing after a busy day. Please note, the property is leasehold with 881 years remaining, and while it boasts excellent condition, prospective buyers should be aware of the average mobile signal and broadband speeds in the area. Given its appealing features and prized location, this gem won’t last long—don't miss your chance to make it your own!

Property Details

Image Descriptions

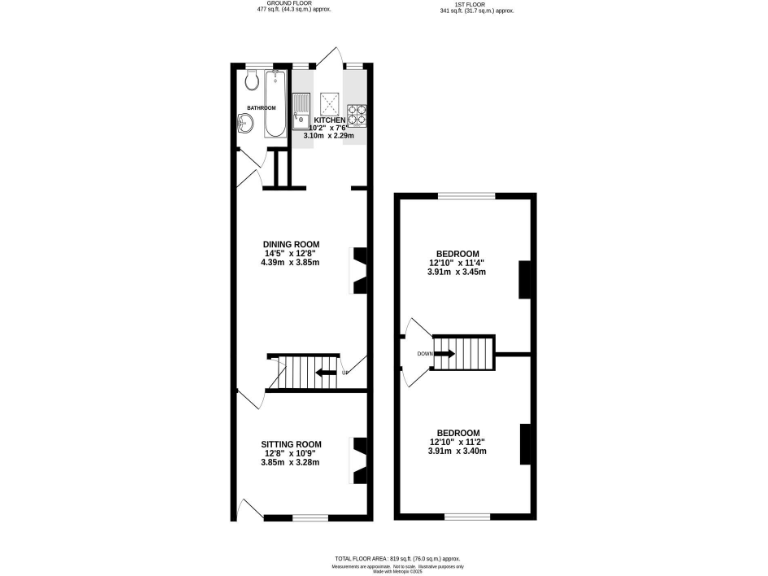
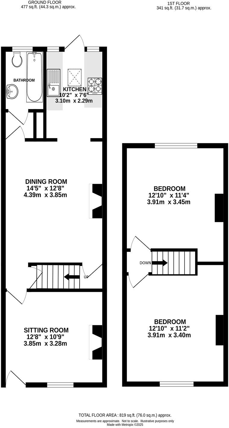
Floorplan Description

Rooms

Textual Property Features

Detected Visual Features

EPC Details

Nearby Schools

Nearest Bars And Restaurants

,,,,}

Nearest General Shops

,,}

Nearest Grocery shops

,,}

Nearest Supermarkets

,,}

Nearest Religious buildings

,,}

Nearest Medical buildings

,,,}

Nearest Airports

}

Nearest Leisure Facilities

,,,,}

Nearest Tourist attractions

,,}

Nearest Train stations

,,,,}

Nearest Bus stations and stops

,,,,}

Nearest Hotels

,,}

Tags

Local Market Stats

AirBnB Data

Similar Properties

Meta

High Res Images

Compatible Images

Low res Images

Thumbnails

Raw Images

High Res Floorplan Images

Compatible Floorplan Images

Low res Floorplan Images

FloorplanImages Thumbnail

Raw Floorplan Images